The Acorn Group is London’s largest multi-brand estate agency. We offer our clients the best brands, with the best people, in the best locations.

 

Close

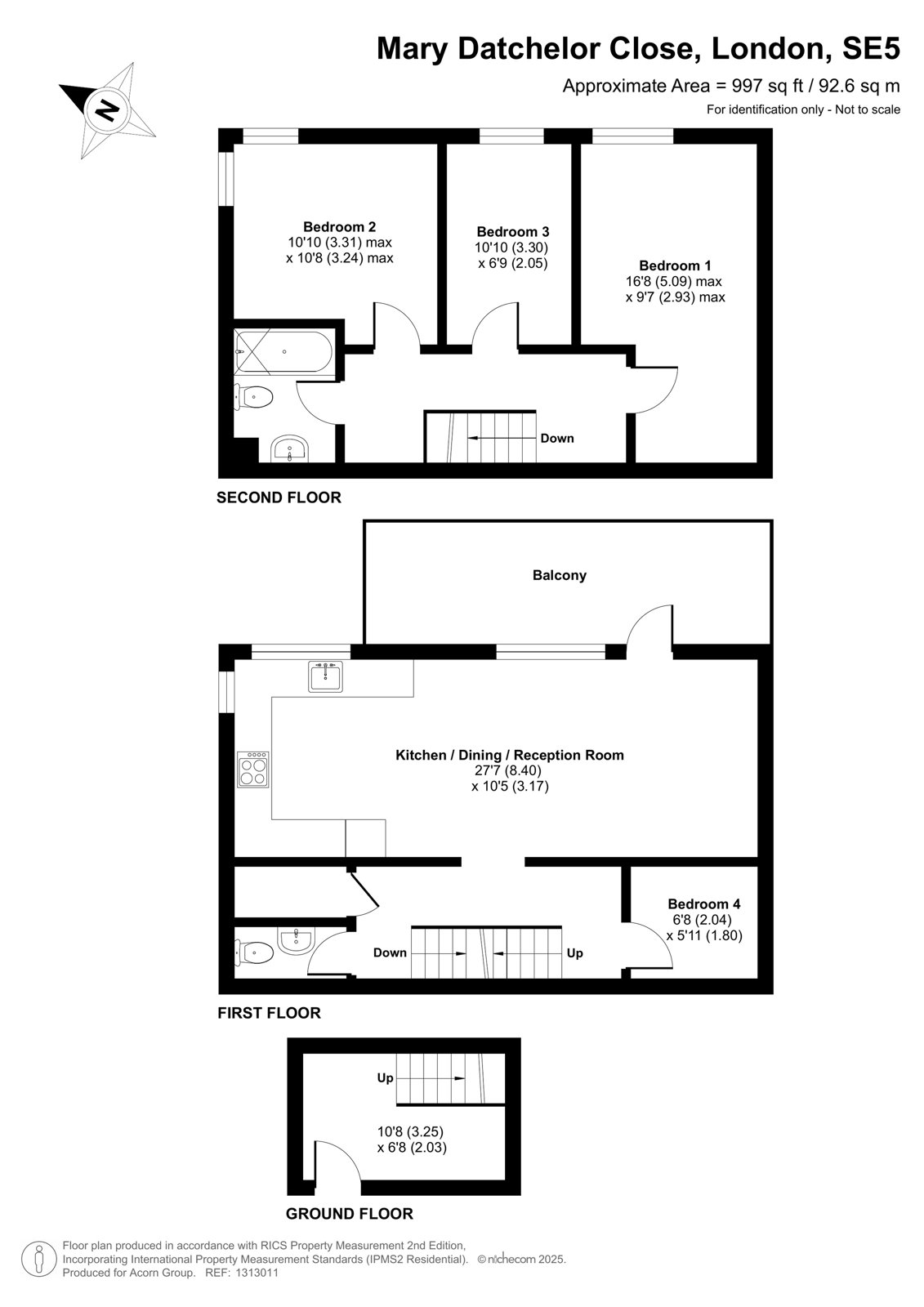
Asking price £500,000 leasehold

Apartment - Mary Datchelor Close, SE5

GUIDE PRICE - £500,000 - £525,000

Placed in the ever popular D'Eynsford Estate, The Acorn Group are delighted to offer this three bedroom apartment to the sales market. This well presented property will serve well as both a residential or investment purchase due to the great yields and great local amenities.

The property has an abundance of space being over 997 sqft and is split level in its layout. Internally the property offers three double bedrooms, a semi open plan living kitchen room which provides direct access to the west facing terrace.

Very central to everything that Camberwell has to offer, you are close to Camberwell Green, Denmark Hill Station and also not too far from Peckham Rye. For further transport, you can easily reach both Oval and Elephant & Castle which is serviced by National Rail and Underground links.

Lease Length: 91 Years
Service Charge: £4205 per annum (inc Hot Water & Heating)
Ground Rent: £10 per annum
Council Tax Band: C
EPC Rating: D

Talk to James Moss from Acorn (Estate agents in Camberwell)

 

Use our calculator to work out potential mortgage repayments and stamp duty costs. Please note, these calculators are for general interest only and must not be relied on. Speak to our Mortgage Scout team for further information and advice. 

Powered by

Total Mortgage

£

Estimated Monthly Mortgage Payment

£

  • Powered by

Camberwell Area Guide

Explore the areas we serve – from parks, entertainment and transport links, to shopping, eating and drinking.

Dive into property knowledge

Visit the AcornIntel knowledge-base, our library of articles to help you make sense of all things property, or send your questions to our panel of property experts.

Get your property valued

Looking to sell or let your property? Get a free property valuation from one of our experts.

Top