The Acorn Group is London’s largest multi-brand estate agency. We offer our clients the best brands, with the best people, in the best locations.

 

Close

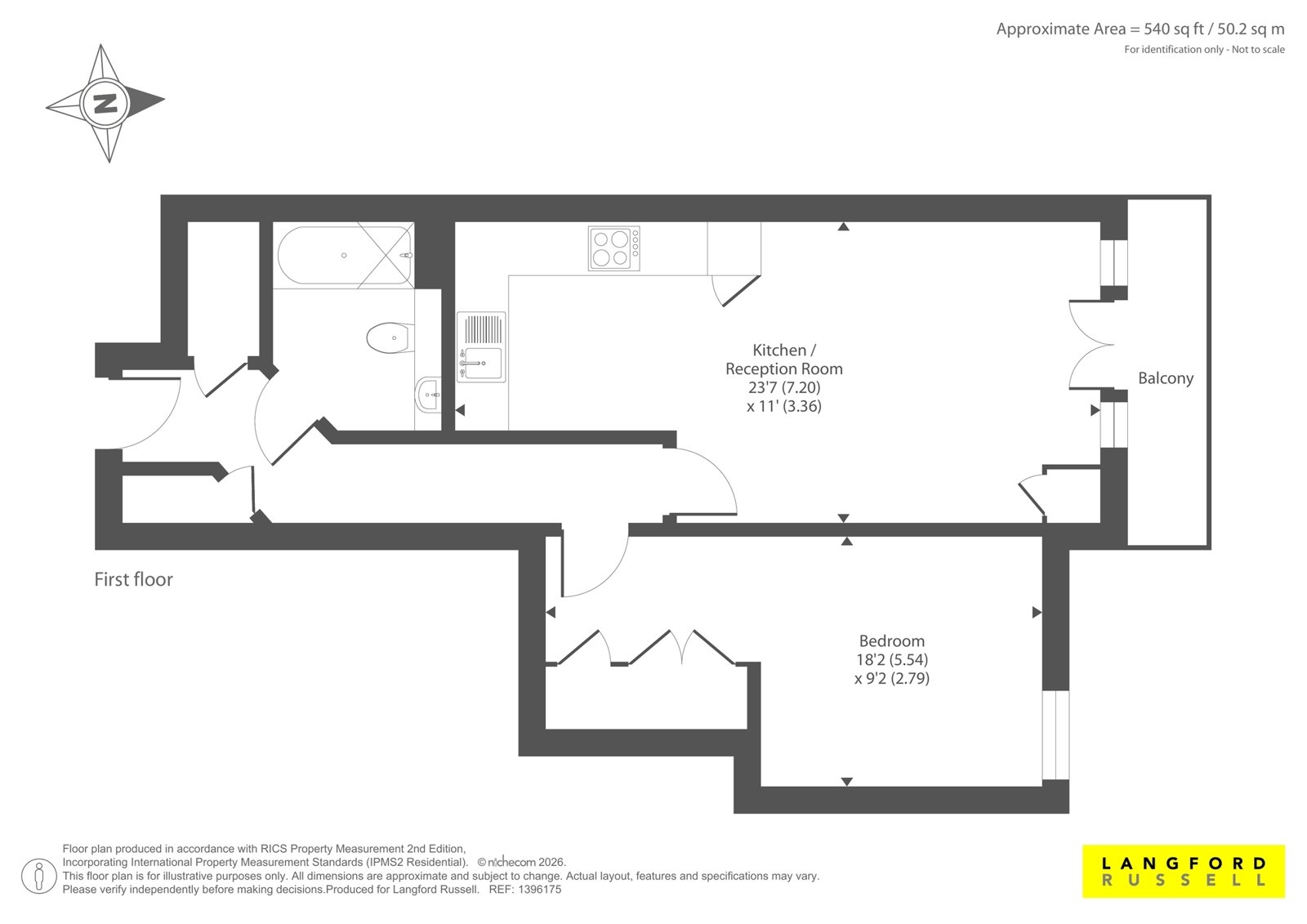
Asking price £265,000 leasehold

Apartment for sale - Main Road, DA14

Langford Russell are delighted to welcome to the market, this one bedroom, first floor modern flat with balcony and allocated parking, situated in quiet residential area in Sidcup.

Internally, the property comprises; an entrance hall, spacious reception room, a modern open plan fitted kitchen with double doors leading onto a north facing balcony.

There is additional storage space, a large bedroom with built in wardrobes and the main bathroom.

The property is situated close to public transport services, the closest station would be New Eltham for trains into London Bridge, Charing Cross and Cannon Street.

Further benefits include allocated parking, north facing balcony and close to amenities.

This home is also within close proximity to schools; Dulverton and Wyborne Primary School are also within walking distance.

Internal viewing is highly recommended.

Service charge - £1617 PA
Ground Rent - £250 PA
Lease Length - 105 years remaining

Tenure – Freehold | Council Tax Band – C
Energy Efficiency Rating - C

Talk to Jack Power from Langford Russell (Estate agents in Sidcup)

 

Use our calculator to work out potential mortgage repayments and stamp duty costs. Please note, these calculators are for general interest only and must not be relied on. Speak to our Mortgage Scout team for further information and advice. 

Powered by

Total Mortgage

£

Estimated Monthly Mortgage Payment

£

  • Powered by

Sidcup Area Guide

Explore the areas we serve – from parks, entertainment and transport links, to shopping, eating and drinking.

Dive into property knowledge

Visit the AcornIntel knowledge-base, our library of articles to help you make sense of all things property, or send your questions to our panel of property experts.

Get your property valued

Looking to sell or let your property? Get a free property valuation from one of our experts.

Top