The Acorn Group is London’s largest multi-brand estate agency. We offer our clients the best brands, with the best people, in the best locations.

 

Close

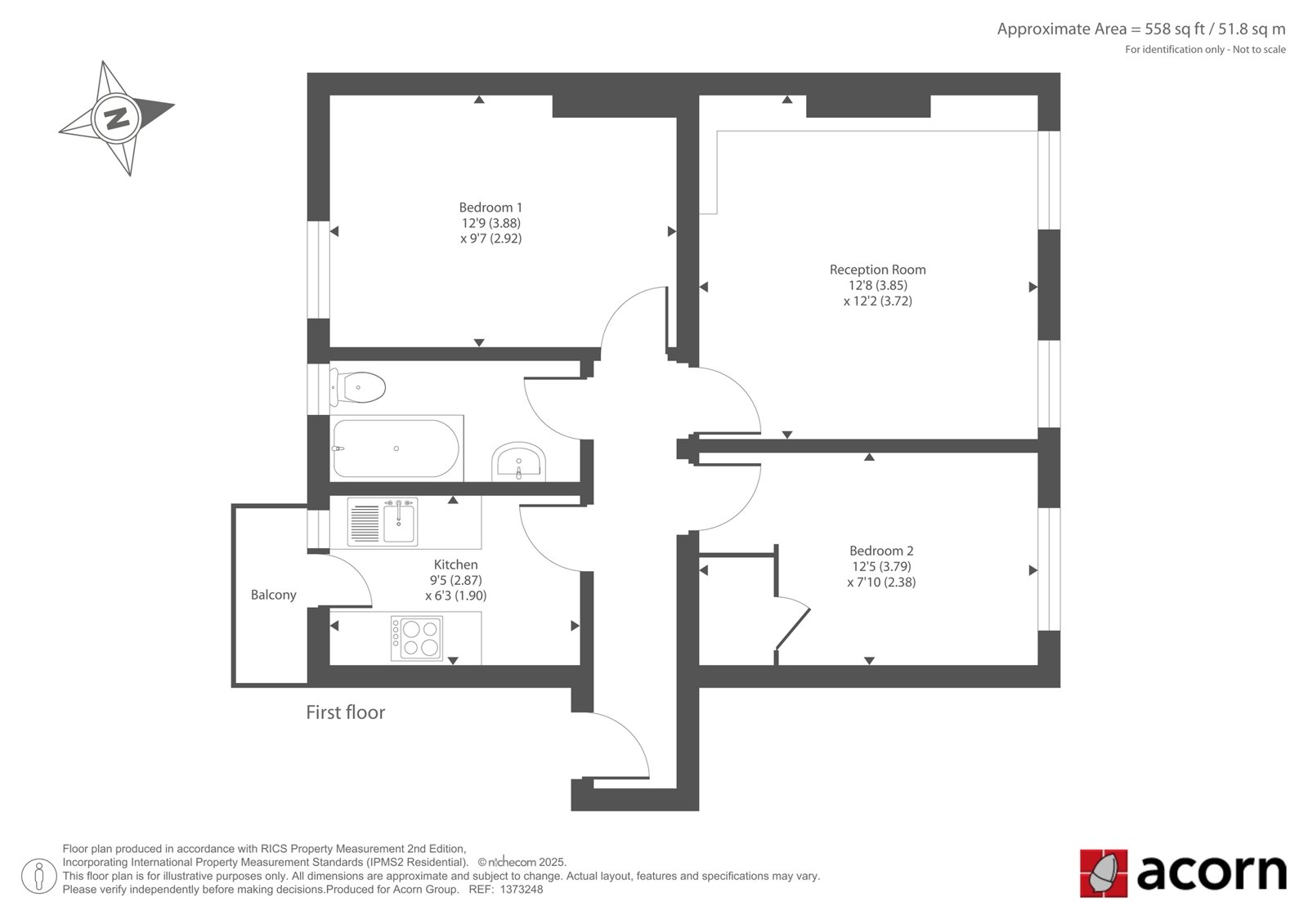
Asking price £275,000 leasehold

Apartment for sale - Lushington Road, SE6

Acorn are delighted to welcome to the market this well presented and bright flat, located well for amenities and transport links.

Offered to the market with no onward chain, the flat has been recently re decorated and comprises two double bedrooms, bathroom, fitted kitchen with ample units, large lounge and private balcony with views over the communal grounds.

With secure residents parking, the flat also has access to the aforementioned communal grounds, and is within a short walk to Beckenham Hill Station and the ever popular Beckenham Place Park.

Leasehold: From 15 December 1997 to 29 April 2115
Service Charge: £1000 PA
Ground Rent: £10 PA

Talk to Jake Blackman from Acorn (Estate agents in Catford)

 

Use our calculator to work out potential mortgage repayments and stamp duty costs. Please note, these calculators are for general interest only and must not be relied on. Speak to our Mortgage Scout team for further information and advice. 

Powered by

Total Mortgage

£

Estimated Monthly Mortgage Payment

£

  • Powered by

Catford Area Guide

Explore the areas we serve – from parks, entertainment and transport links, to shopping, eating and drinking.

Dive into property knowledge

Visit the AcornIntel knowledge-base, our library of articles to help you make sense of all things property, or send your questions to our panel of property experts.

Get your property valued

Looking to sell or let your property? Get a free property valuation from one of our experts.

Top