The Acorn Group is London’s largest multi-brand estate agency. We offer our clients the best brands, with the best people, in the best locations.

 

Close

Offers Over £375,000 leasehold

Apartment for sale - Lorrimore Square, SE17

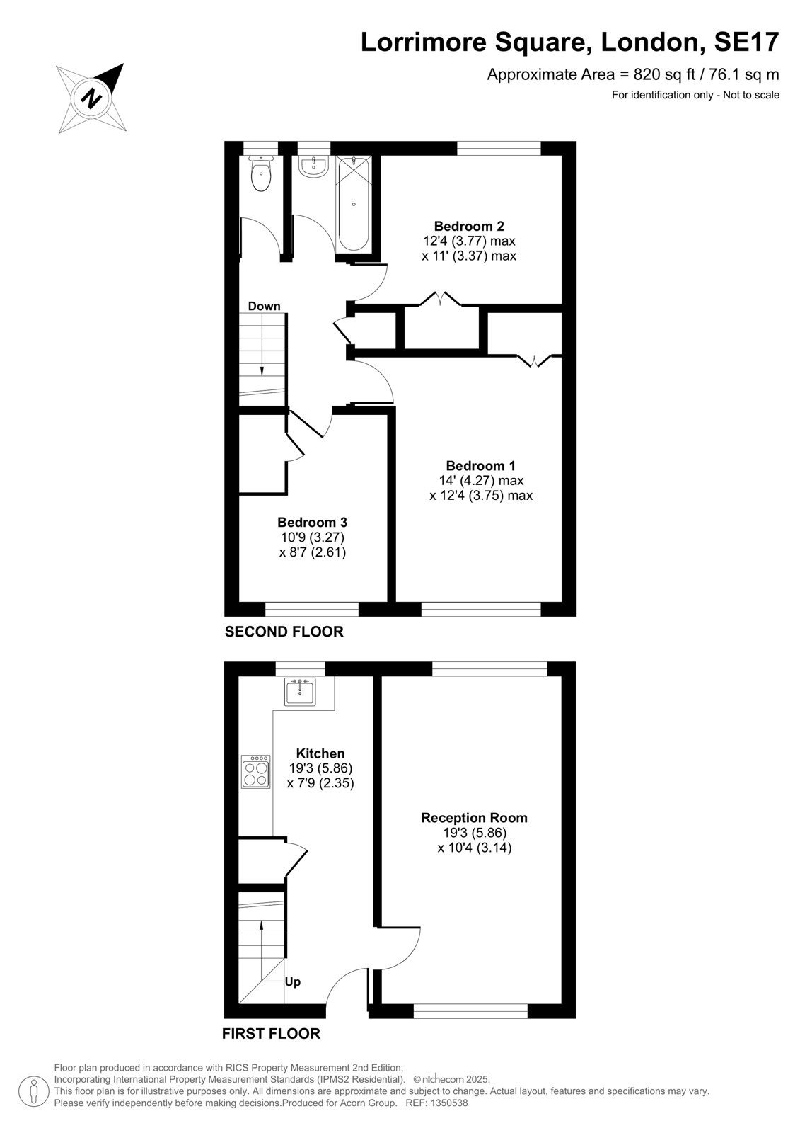
A beautifully presented three bedroom maisonette situated on the upper two floors of a purpose built low rise block on Lorrimore Square, a very popular garden Square. This lovely apartment offers generous space and an abundance of natural light throughout, it is ready to move into and has the potential to make a lovely home and/or excellent investment property. The accommodation comprises a large living room, a fitted kitchen, bathroom with separate WC and three bedrooms.

The property also benefits from easy parking on the square with the possibility of renting one of the underground garages.

Just a short walk from the property is the lovely green space of Kennington Park providing a cafe and a playground. There is also a wonderful Farmer's market nearby at St Marks church opposite Oval underground. Kennington Park Road offers exceptional transport links including both Elephant and Castle and Kennington Underground Stations located a few moments’ walk from the property and numerous bus routes offering easy access to The West End, The City and beyond. Kennington also offers a good selection of popular bars, cafes, shops and restaurants which is also within easy reach.

Lease Length: 93 years (125 years from 20 December 1993)
Ground Rent: £10 pa
Service Charge: £1900pa
EPC Rating: D
Council Tax: C

Talk to Jack Davies from Acorn (Estate agents in Kennington)

 

Use our calculator to work out potential mortgage repayments and stamp duty costs. Please note, these calculators are for general interest only and must not be relied on. Speak to our Mortgage Scout team for further information and advice. 

Powered by

Total Mortgage

£

Estimated Monthly Mortgage Payment

£

  • Powered by

Kennington Area Guide

Explore the areas we serve – from parks, entertainment and transport links, to shopping, eating and drinking.

Dive into property knowledge

Visit the AcornIntel knowledge-base, our library of articles to help you make sense of all things property, or send your questions to our panel of property experts.

Get your property valued

Looking to sell or let your property? Get a free property valuation from one of our experts.

Top