The Acorn Group is London’s largest multi-brand estate agency. We offer our clients the best brands, with the best people, in the best locations.

 

Close

Asking price £400,000 leasehold

Apartment for sale - Linwood Close, London, SE5

Guide Price £400,000 - £425,000

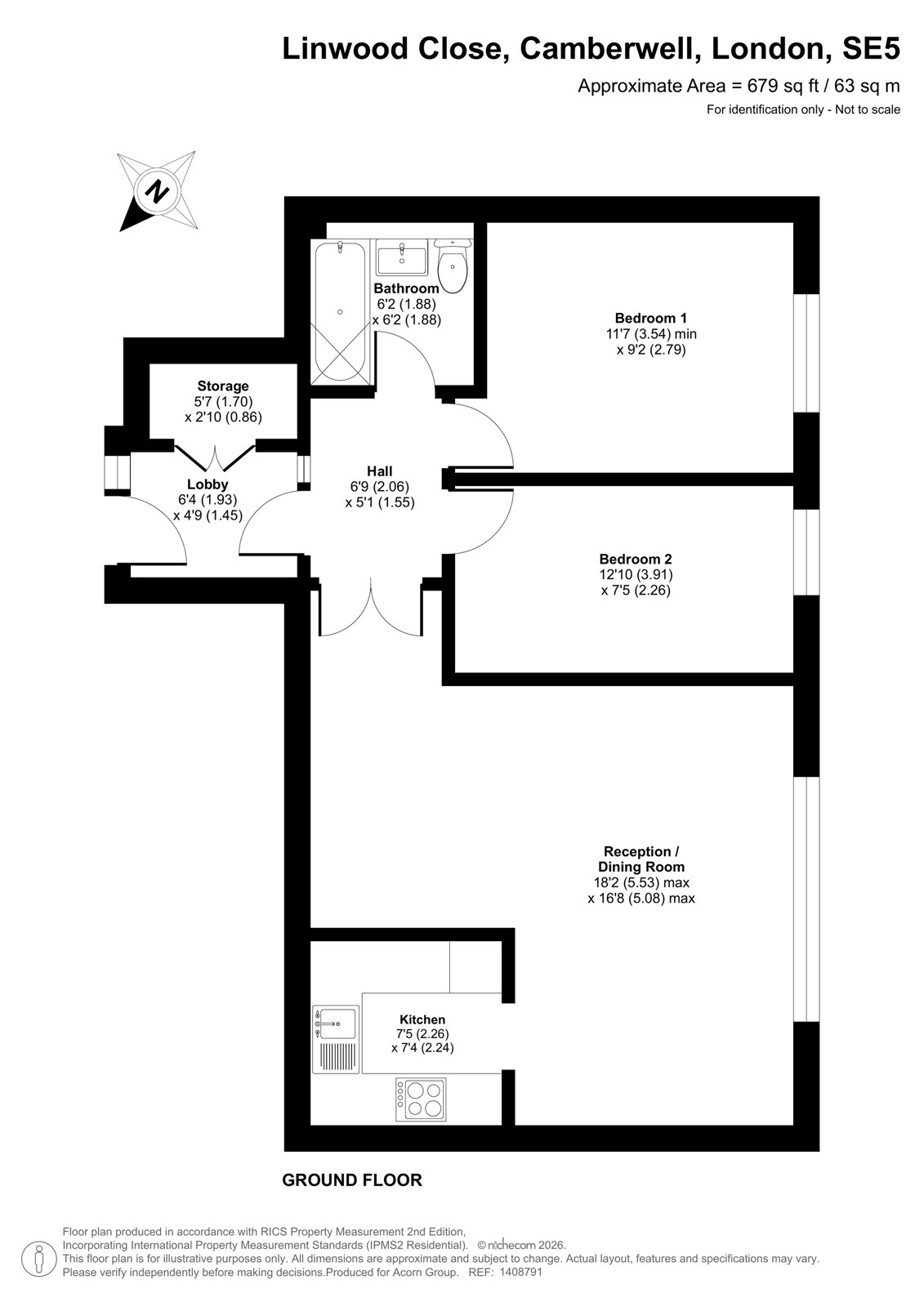
Set within the beautiful surroundings of Linwood Close just on the borders of Camberwell and Peckham Rye, Acorn are delighted to offer this excellent value, two double bedroom apartment to the sales market.

Set on the ground floor and with a private entrance, the property boasts two large double bedrooms,a neutral three-piece bathroom, a good sized reception room and a semi-open plan kitchen. Further benefits include allocated off-road parking, double glazed windows and access to vast communal grounds including the hidden gem that is Linwood Close Woods.

Closely located to a number of stations and amenities, Linwood Close is a mere 0.3 miles from Peckham Rye and only 0.6 miles to Denmark Hill. Bellenden Road, Lordship Lane and Camberwell Church Street are all also close-by welcoming you to an eclectic mix of bars, restaurants and independent shops.

Tenure - Share Of Freehold
Lease Length - 985 Years
Service Charge - £2047.21 P/A
Ground Rent - N/A
Energy Efficiency Rating - D
Council Tax Band - C

Talk to James Moss from Acorn (Estate agents in Camberwell)

 

Use our calculator to work out potential mortgage repayments and stamp duty costs. Please note, these calculators are for general interest only and must not be relied on. Speak to our Mortgage Scout team for further information and advice. 

Powered by

Total Mortgage

£

Estimated Monthly Mortgage Payment

£

  • Powered by

Camberwell Area Guide

Explore the areas we serve – from parks, entertainment and transport links, to shopping, eating and drinking.

Dive into property knowledge

Visit the AcornIntel knowledge-base, our library of articles to help you make sense of all things property, or send your questions to our panel of property experts.

Get your property valued

Looking to sell or let your property? Get a free property valuation from one of our experts.

Top