The Acorn Group is London’s largest multi-brand estate agency. We offer our clients the best brands, with the best people, in the best locations.

 

Close

Offers Over £180,000 leasehold

Apartment for sale - High Street, Rochester, ME2

Situated within walking distance of Strood railway station and the high street is this beautifully presented one bedroom apartment with allocated parking.

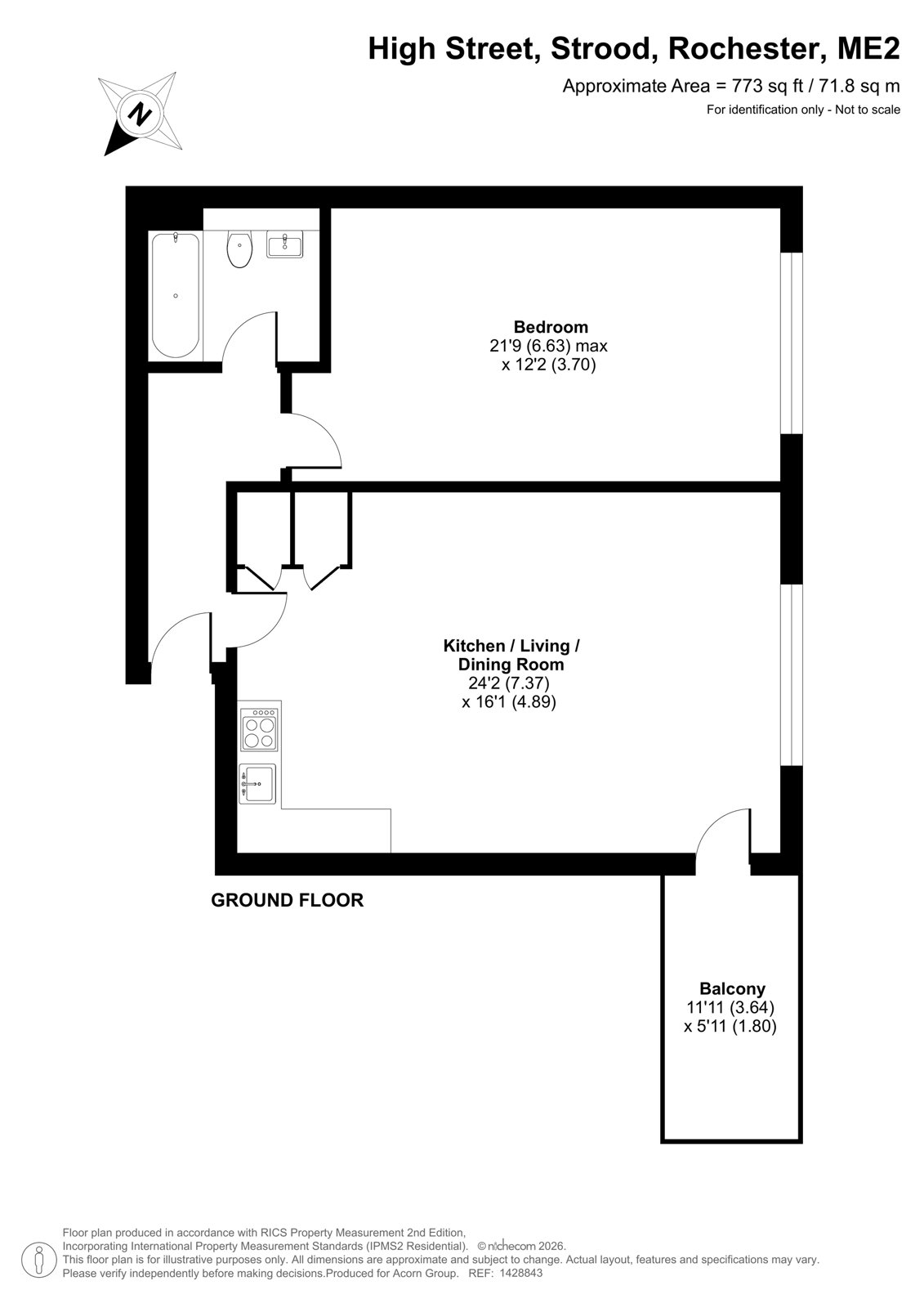
This lovely apartment could be your ideal first purchase and comprises a one bedroom, a bathroom and an open plan kitchen/living room that opens to a balcony - ideal for relaxing on warm summer evenings.

There is an allocated parking space in the car park to the rear of the property.

Call Acorn today to secure your viewing appointment.

Leasehold; 125 Years from 1st Jan 2020.
Ground Rent; £197.50 PA
Service Charge: £2,058.86 PA

Talk to Mark Sugarman from Acorn (Estate agents in Strood)

 

Use our calculator to work out potential mortgage repayments and stamp duty costs. Please note, these calculators are for general interest only and must not be relied on. Speak to our Mortgage Scout team for further information and advice. 

Powered by

Total Mortgage

£

Estimated Monthly Mortgage Payment

£

  • Powered by

Strood Area Guide

Explore the areas we serve – from parks, entertainment and transport links, to shopping, eating and drinking.

Dive into property knowledge

Visit the AcornIntel knowledge-base, our library of articles to help you make sense of all things property, or send your questions to our panel of property experts.

Get your property valued

Looking to sell or let your property? Get a free property valuation from one of our experts.

Top