The Acorn Group is London’s largest multi-brand estate agency. We offer our clients the best brands, with the best people, in the best locations.

 

Close

Guide price £600,000 leasehold

Apartment for sale - Green Dale, SE5

**Guide Price £600,000 - £625,000**

Acorn are proud to present this beautiful three bedroom modern well designed apartment in Denmark Hill.

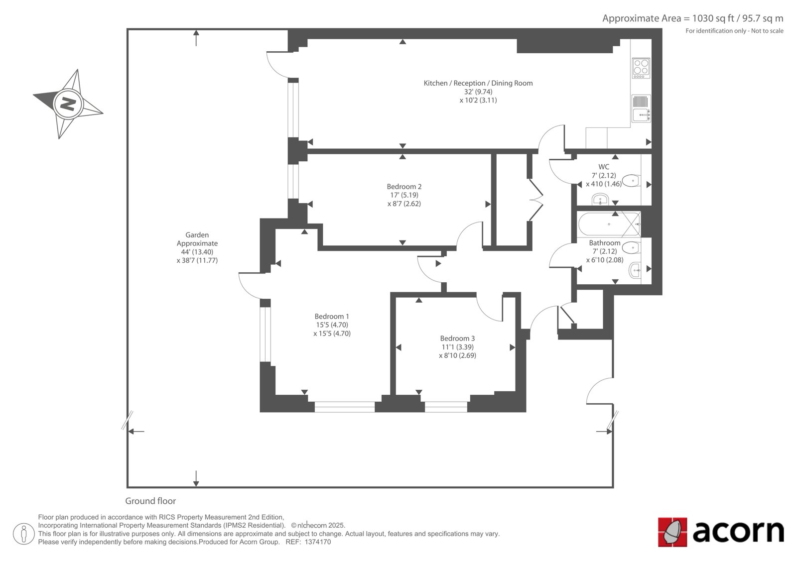
Measuring over a 1000 sq ft, this property is sure to attract small families or couples alike. The property boasts its own private front door, three good sized bedrooms , a modern three piece bathroom, sizeable open plan/kitchen diner and a private courtyard.

Situated in a quiet pocket of Denmark Hill, the property is a short walk from Denmark Hill Station and East Dulwich Station which provides fantastic links into and across London. Green Space is also close by with Ruskin Park just moments away. Local amenities are also closeby with an array of pubs such as the popular 'Fox on the Hill', bars and restaurants all within walking distance.

Leasehold: 113 Years
Ground Rent: £350 per annum
Service Charge: £2000 per annum
Local Authority Southwark Council Tax Band D
Energy Efficiency Rating C

Talk to James Moss from Acorn (Estate agents in Camberwell)

 

Use our calculator to work out potential mortgage repayments and stamp duty costs. Please note, these calculators are for general interest only and must not be relied on. Speak to our Mortgage Scout team for further information and advice. 

Powered by

Total Mortgage

£

Estimated Monthly Mortgage Payment

£

  • Powered by

Camberwell Area Guide

Explore the areas we serve – from parks, entertainment and transport links, to shopping, eating and drinking.

Dive into property knowledge

Visit the AcornIntel knowledge-base, our library of articles to help you make sense of all things property, or send your questions to our panel of property experts.

Get your property valued

Looking to sell or let your property? Get a free property valuation from one of our experts.

Top