The Acorn Group is London’s largest multi-brand estate agency. We offer our clients the best brands, with the best people, in the best locations.

 

Close

Asking price £500,000 shareOfFreehold

Apartment - Gabriel Street, SE23

Acorn are proud to market this stunning share of freehold first floor Victorian home being sold CHAIN FREE

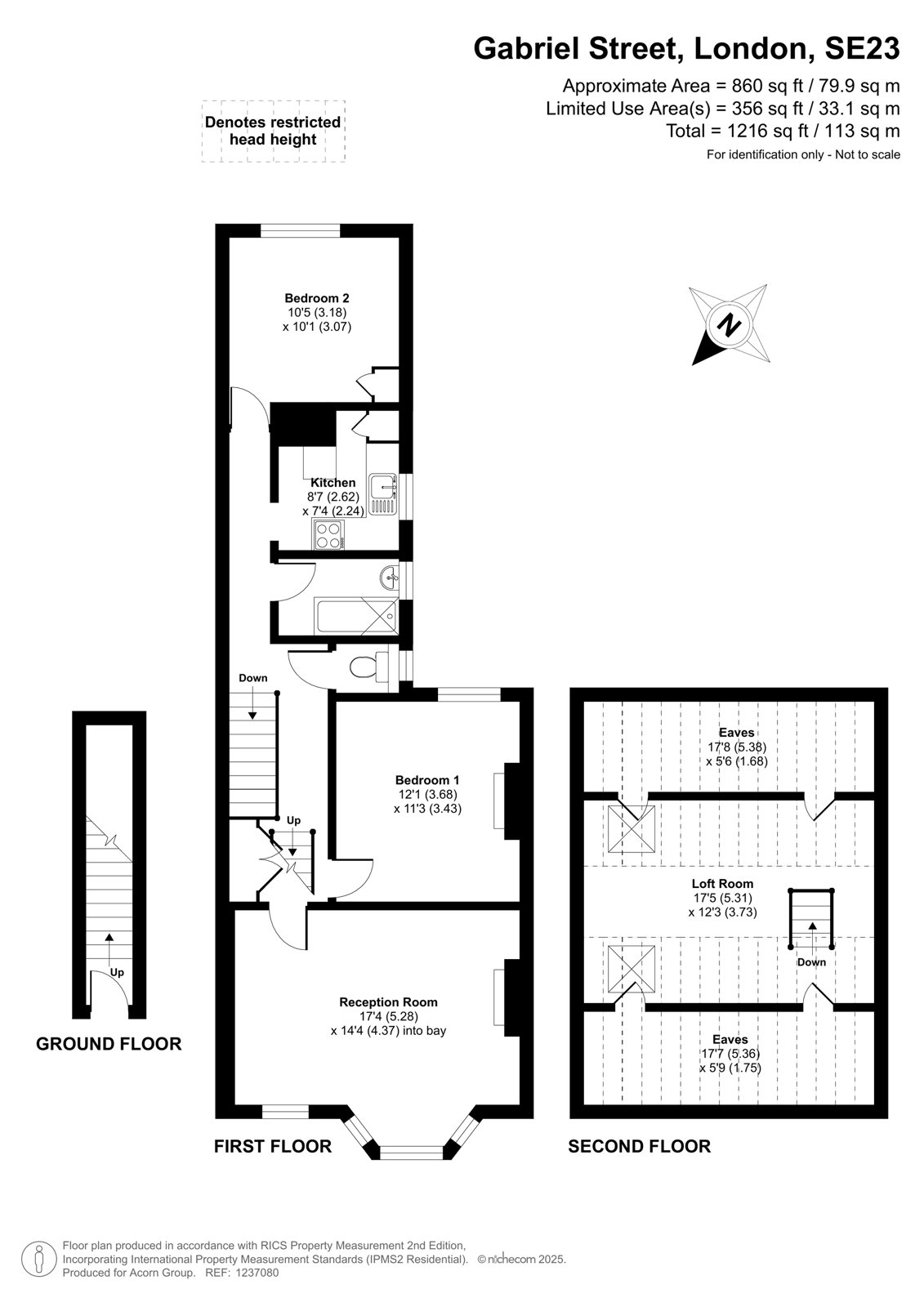
The property boasts two double bedrooms, separate kitchen, a well-appointed bathroom and a separate toilet. The highlight of the home is the generously sized lounge, featuring a charming working gas fireplace, perfect for creating a cosy atmosphere.

Finished to a high standard, the flat is exquisitely decorated in Farrow & Ball paint, creating a high quality and stylish interior. A fantastic bonus is the loft room, ideal as a home office or creative space. Additionally, the loft is
fully insulated and boarded storage cupboards, as well as Velux windows, enhancing both practicality and natural light.

Further benefits include an upgraded electrical board, and a modern boiler installed approximately 18 months ago, ensuring energy efficiency and peace of mind. New sliding sash windows were installed in bedrooms October 2024, including a tilt & slide mechanism enabling windows to be easily cleaned, as well as improving comfort and insulation.

Only a 5-minute walk away from Honor Oak Station and Crofton Park also within easy reach which boast superb connections into London Bridge, London Victoria and the highly rated Overground Line offering fast and easy access into East London via Shoreditch High Street. Locally you are well served with Forest Hill High Street and Honor Oak Parade both just a few minutes’ walk away from the flat which offer an extensive selection of trendy boutiques, cafes, supermarkets and bistros.

A must-see home that seamlessly blends period charm and contemporary living.

Share of Freehold: 988 years | EPC: D | Service charge: Adhoc | Ground Rent: £0 | Council Tax Band: C

Talk to Nellie Fantham from Acorn (Estate agents in Forest Hill)

 

Use our calculator to work out potential mortgage repayments and stamp duty costs. Please note, these calculators are for general interest only and must not be relied on. Speak to our Mortgage Scout team for further information and advice. 

Powered by

Total Mortgage

£

Estimated Monthly Mortgage Payment

£

  • Powered by

Forest Hill Area Guide

Explore the areas we serve – from parks, entertainment and transport links, to shopping, eating and drinking.

Dive into property knowledge

Visit the AcornIntel knowledge-base, our library of articles to help you make sense of all things property, or send your questions to our panel of property experts.

Get your property valued

Looking to sell or let your property? Get a free property valuation from one of our experts.

Top