The Acorn Group is London’s largest multi-brand estate agency. We offer our clients the best brands, with the best people, in the best locations.

 

Close

OIEO £415,000 leasehold

Apartment for sale - Fairby Road, SE12

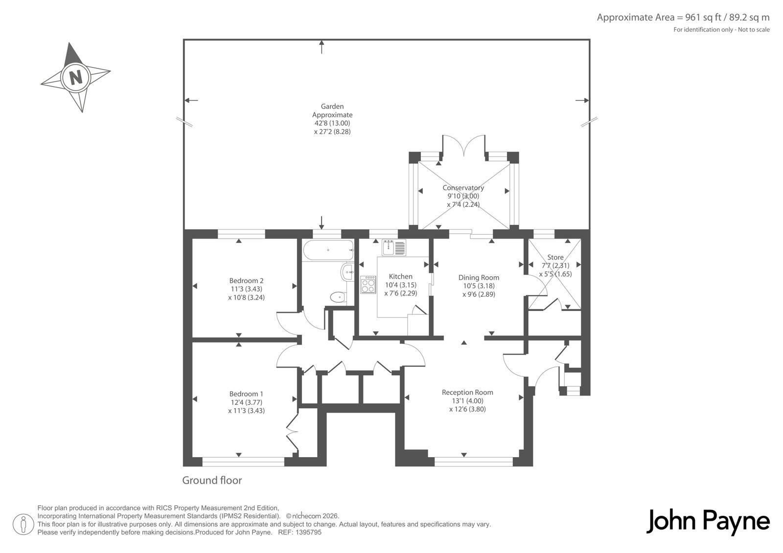
A superb two double bedroom ground floor garden flat set within the highly sought-after Courtlands development.

The property features a private entrance hall leading to a bright and spacious open-plan lounge/dining room, with doors opening into a conservatory that overlooks an established, private rear garden. Additional accommodation includes a modern fitted kitchen, two well-proportioned double bedrooms, and a contemporary bathroom. The flat also benefits from ample built-in storage and a garage en bloc.

Ideally located within the popular Courtlands development, Kidbrooke Village and mainline station are within half a mile, while Lee Station and the charming Blackheath Village—offering a variety of cafés, restaurants, and boutique shops—are all within a one-mile radius.

Early viewing is highly recommended.

Lease - 133 years from 26th November 2015 (122 years remaining)
Service Charge - N/A
Ground Rent - N/A
The Royal Borough of Greenwich - Council Tax Band - C
Energy Efficiency Rating - D

Talk to Chris Wadeson from John Payne (Estate agents in Lee)

 

Use our calculator to work out potential mortgage repayments and stamp duty costs. Please note, these calculators are for general interest only and must not be relied on. Speak to our Mortgage Scout team for further information and advice. 

Powered by

Total Mortgage

£

Estimated Monthly Mortgage Payment

£

  • Powered by

Lee Area Guide

Explore the areas we serve – from parks, entertainment and transport links, to shopping, eating and drinking.

Dive into property knowledge

Visit the AcornIntel knowledge-base, our library of articles to help you make sense of all things property, or send your questions to our panel of property experts.

Get your property valued

Looking to sell or let your property? Get a free property valuation from one of our experts.

Top