The Acorn Group is London’s largest multi-brand estate agency. We offer our clients the best brands, with the best people, in the best locations.

 

Close

Guide price £650,000 leasehold

Apartment for sale - Embleton Road, SE13

Guide Price: £650,000 - £700,000.

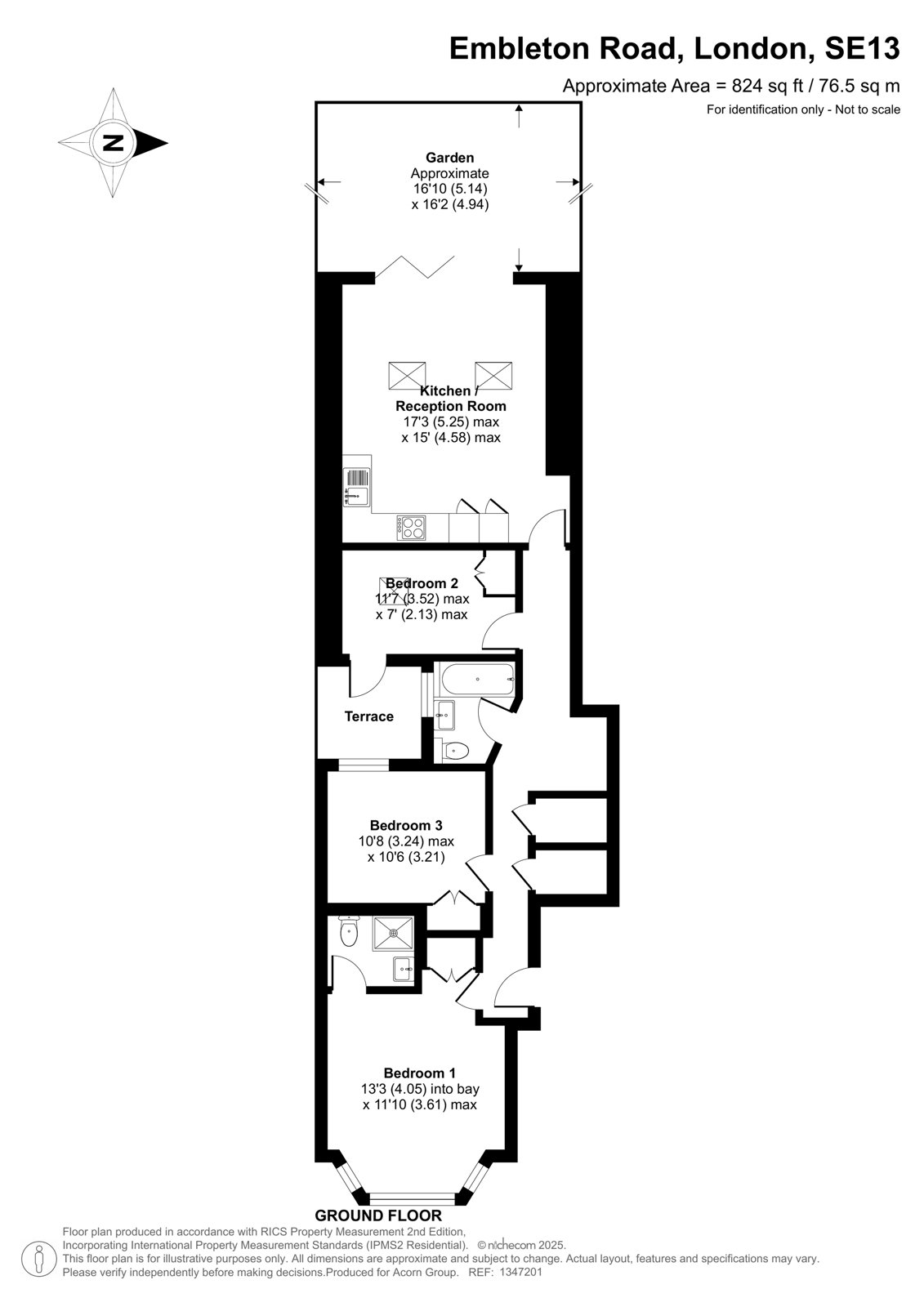
Acorn are pleased to launch to the market this three-bedroom ground floor apartment, set on one of Ladywells prestigious roads, this newly refurbished ground floor apartment that offers a generous open-plan living space, and a private garden and in a prime location.

As you enter the property, you're welcomed by a bright and airy hallway with elegant parquet flooring flowing the entire apartment. At the front of the home is the principal bedroom a spacious room featuring a stunning bay window that floods the room with natural light. This bedroom benefits from its own stylish en suite shower room, complete with shower enclosure, WC, and sink basin, all finished with sleek modern fittings. There’s also built-in wardrobe space for convenient storage. Just adjacent is the second double bedroom, also well-proportioned and featuring its own integrated wardrobe space, making it ideal for guests, children, or a home office setup. Further along the hallway, you’ll find the beautifully appointed family bathroom, designed with a luxurious marble-effect finish and contrasting black fixtures. Towards the rear of the property is the third bedroom, which features a skylight for natural light and a door leading out to a small private courtyard, an ideal spot to have your morning coffee! Now for the heart of home, is undoubtedly the expansive kitchen/diner at the rear. This space is made for entertaining, with high ceilings, modern cabinetry, and ample room for both cooking and dining. Full-width bifold doors open directly onto a private rear garden, extending your living space and creating a seamless indoor-outdoor flow, ideal for summer gatherings or barbeques! Every inch of this apartment has been thoughtfully finished to a high standard, with attention to both aesthetics and practicality. From the newly laid parquet flooring to the stylish bathroom fixtures and generously sized rooms, this is a turn-key property ready to move into.

Just a short stroll away, Ladywell Station provides swift direct trains to London Bridge in just 10 minutes, with onward connections to Waterloo and Charing Cross. For even more travel options, nearby Brockley, Crofton Park, and Lewisham stations (with DLR access) offer seamless routes to destinations like Greenwich and Canary Wharf. Green space is right on your doorstep with Hilly Fields Park is just moments away offering sweeping city views, tennis courts - It’s the ideal spot for morning runs, relaxed weekend picnics, or catching the New Year’s Eve fireworks. A Sainsbury’s Local is just around the corner, while Ladywell Road serves as a buzzing village-style hub packed with independent cafés, restaurants, and shops. “Good”-rated primary schools within a 15-minute walk. For older students, the “Outstanding”-rated Prendergast Ladywell School sits just across Hilly Fields, making the morning school run as easy as a walk through the park.

Lease Length: 999 Years
Service Charge: £0 PA
Ground Rent: £0 PA

Talk to Max Smith from Acorn (Estate agents in Lewisham)

 

Use our calculator to work out potential mortgage repayments and stamp duty costs. Please note, these calculators are for general interest only and must not be relied on. Speak to our Mortgage Scout team for further information and advice. 

Powered by

Total Mortgage

£

Estimated Monthly Mortgage Payment

£

  • Powered by

Lewisham Area Guide

Explore the areas we serve – from parks, entertainment and transport links, to shopping, eating and drinking.

Dive into property knowledge

Visit the AcornIntel knowledge-base, our library of articles to help you make sense of all things property, or send your questions to our panel of property experts.

Get your property valued

Looking to sell or let your property? Get a free property valuation from one of our experts.

Top