The Acorn Group is London’s largest multi-brand estate agency. We offer our clients the best brands, with the best people, in the best locations.

 

Close

OIEO £275,000 leasehold

Apartment for sale - Desvignes Drive, SE13

Acorn are pleased to welcome this one bedroom apartment situated on the second floor, this stylish home features a well-proportioned layout and a modern finish internally.

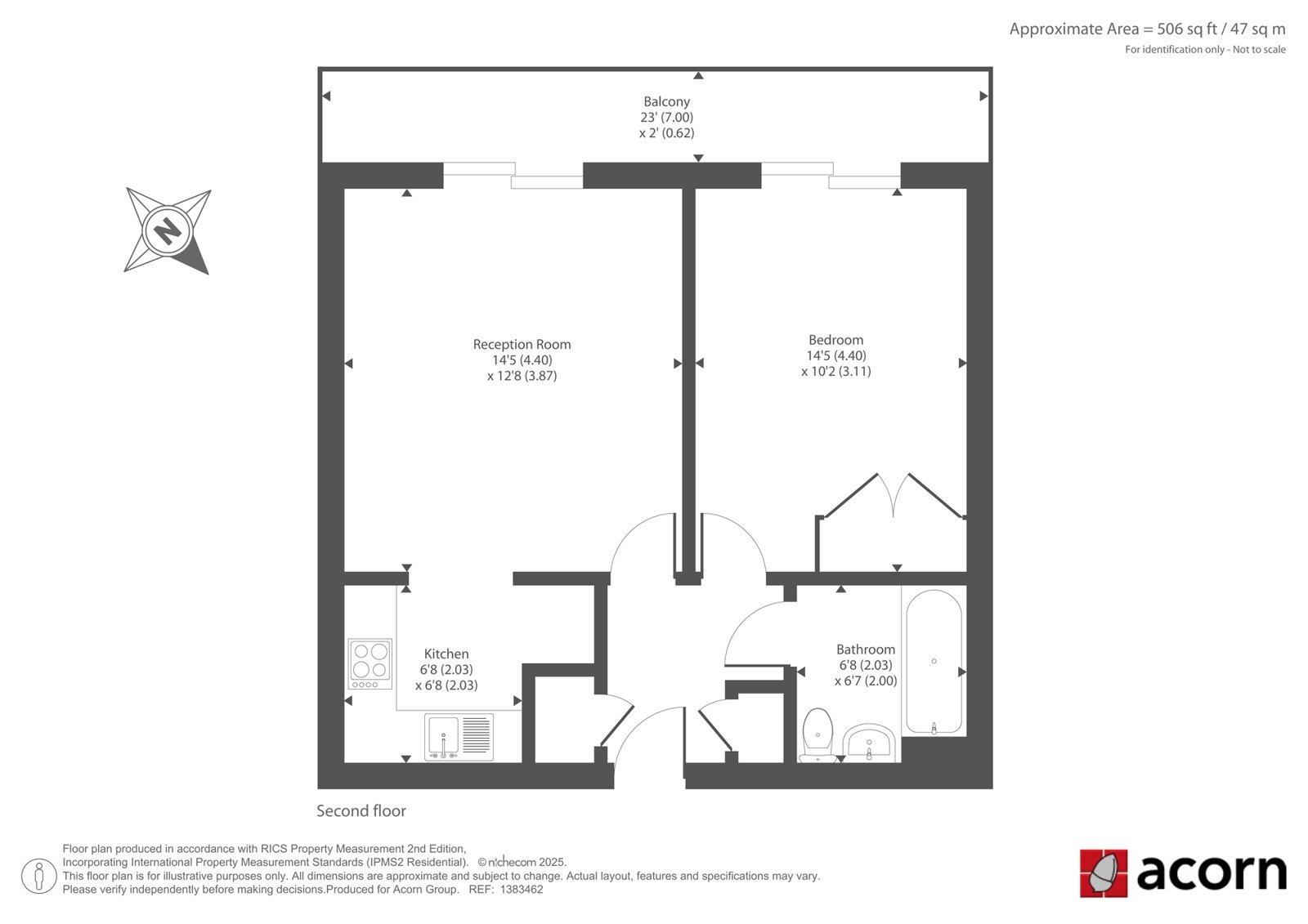
The heart of the property is the generous reception room, a naturally bright space with direct access to a 23 ft balcony that spans the width of both the living area and the bedroom, ideal for relaxing or enjoying a morning coffee. The reception room goes seamlessly into the thoughtfully arranged and efficiently designed kitchen. The bedroom mirrors the reception room in size and light, also benefiting from access to the balcony, while the bathroom is modern and neatly presented with a full-size bath and smart fittings. With approximately 506 sq ft (47 sq m) of internal space, the apartment is well laid out, offering comfortable living and good storage potential. Its modern design, clean lines, and practical flow make it well suited to first-time buyers, downsizers, or investors alike.

Rosse Gardens is in the popular Meridian South Developments, a redeveloped hospital with beautiful landscaped communal grounds also fitted with new security cameras surrounding the development. There is a very handy local Tesco as well as a gym (separate subscription) to take advantage of inside but also more parade of shops along Hither Green Lane with a Local Co-op too. Be sure to meet the very famous caretaker called Bob, who is based at the Clocktower and is extremely nice and helpful and looks after the development. The Park Nursery also located inside, is another popular choice and highly rated Nursery. Mountsfield Park nearby is a stunning park to enjoy with events often planned throughout the year. For commuters, Hither Green Station (Zone 3) is only 0.3m walk and offers great transport into the city, by the station there is a range of boutique shops, cafes, restaurants as well as The Station Pub which serves great food and drinks if you’re looking for a local!

Leasehold:125 years from 25 March 2003 |Service Charge: £2,200 pa |Ground Rent: £175 pa |Council Tax Band: B|

Talk to Jake Blackman from Acorn (Estate agents in Lewisham)

 

Use our calculator to work out potential mortgage repayments and stamp duty costs. Please note, these calculators are for general interest only and must not be relied on. Speak to our Mortgage Scout team for further information and advice. 

Powered by

Total Mortgage

£

Estimated Monthly Mortgage Payment

£

  • Powered by

Lewisham Area Guide

Explore the areas we serve – from parks, entertainment and transport links, to shopping, eating and drinking.

Dive into property knowledge

Visit the AcornIntel knowledge-base, our library of articles to help you make sense of all things property, or send your questions to our panel of property experts.

Get your property valued

Looking to sell or let your property? Get a free property valuation from one of our experts.

Top