The Acorn Group is London’s largest multi-brand estate agency. We offer our clients the best brands, with the best people, in the best locations.

 

Close

OIEO £400,000 shareOfFreehold

Apartment - Coldharbour Lane, London, SE5

** OFFERS IN EXCESS OF £400,000**

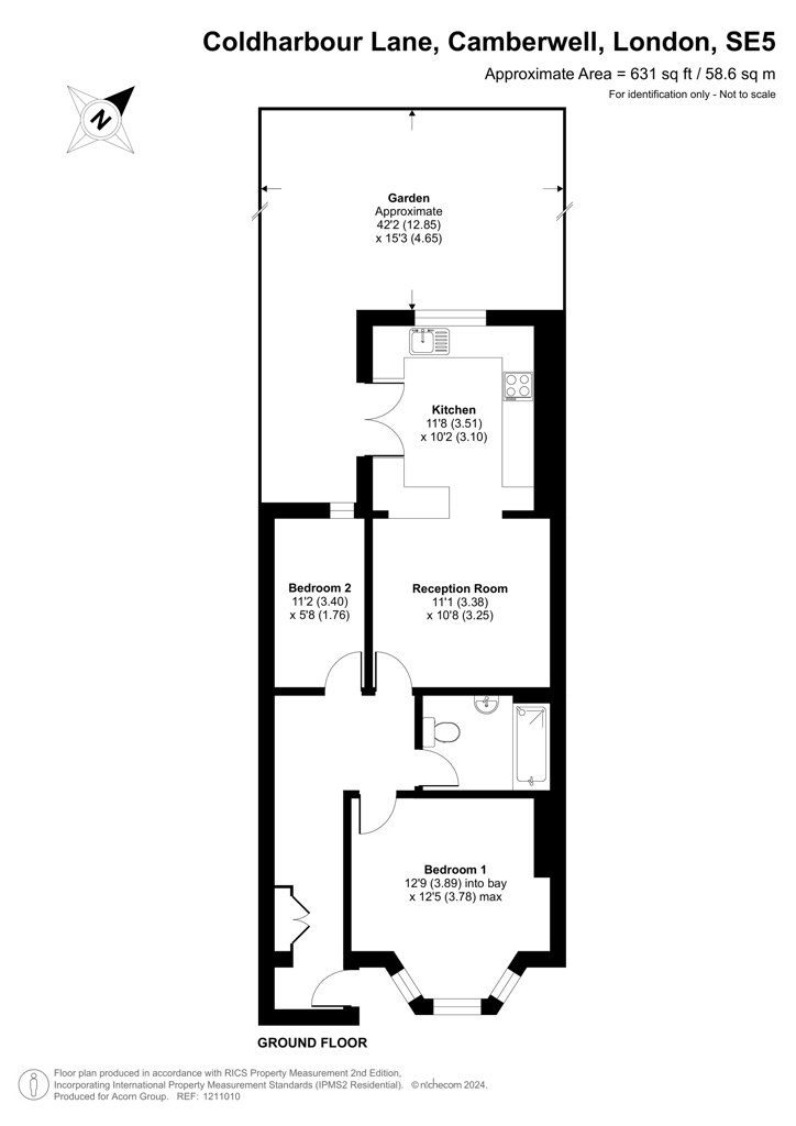
Desirably placed on the Brixton / Camberwell border, Acorn are delighted to offer this exceptional two bedroom conversion flat to the sales market. Set on the lower floor of this impressive Victorian residence, the property offers an unrivalled plot of outdoor space and is not one to overlook.

Inside the property is incredibly well presented and boasts a wide entrance hall (with space for a desk), two bedrooms (one very large double), a good sized three-piece bathroom and an evenly split semi open plan kitchen / reception room. French doors to the rear lead you firstly out to a cosy dining space (reminiscent of an intimate Moroccan wine bar setting) and then on to the huge private garden which is not too short of 40ft long.

The location is perfect for both transport and leisure being just a few moments from both Loughborough Junction and Denmark Hill stations. The increasingly popular Brixton is also within walking distance putting you at the centre of two South London hotspots.

Share Of Freehold
Lease Length: 69 Years
Service charge: £0pa
Ground rent: £100 pa
Council Tax Band: C
Energy Efficiency Rating: D

Talk to James Moss from Acorn (Estate agents in Camberwell)

 

Use our calculator to work out potential mortgage repayments and stamp duty costs. Please note, these calculators are for general interest only and must not be relied on. Speak to our Mortgage Scout team for further information and advice. 

Powered by

Total Mortgage

£

Estimated Monthly Mortgage Payment

£

  • Powered by

Camberwell Area Guide

Explore the areas we serve – from parks, entertainment and transport links, to shopping, eating and drinking.

Dive into property knowledge

Visit the AcornIntel knowledge-base, our library of articles to help you make sense of all things property, or send your questions to our panel of property experts.

Get your property valued

Looking to sell or let your property? Get a free property valuation from one of our experts.

Top