The Acorn Group is London’s largest multi-brand estate agency. We offer our clients the best brands, with the best people, in the best locations.

 

Close

OIEO £225,000 leasehold

Apartment for sale - Chislehurst Road, DA14

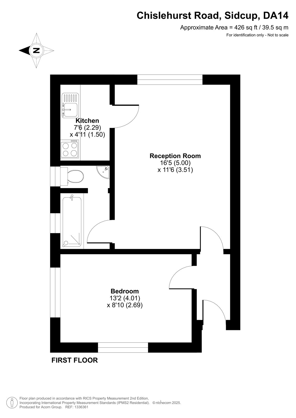
Presented to the Sidcup market, is this bright and airy one bedroom apartment situated in a residential block just a stone’s throw from Sidcup High Street.

Having been maintained meticulously by the current owners, this apartment is ready to move straight into for any perspective buyer. Internally the property comprises, a spacious entrance hall, larger reception room, modern fitted kitchen, family bathroom suite.

This beautiful apartment is flooded with tons of natural light and has been decorated throughout. Further benefits include new lease, parking, and low annual maintenance charges.

Sidcup train station is 0.9 miles away, providing excellent services into London Bridge, Charing Cross and Cannon Street. Sidcup High Street is just a stroll away providing all of the amenities a High Street has to offer with bars, eateries, gyms, and local green space to enjoy.

Tenure: Leasehold
Lease Length : 999 Years From 26th March 1986
Ground Rent : £50 P/A
Service Charge : £1,440 P/A

Energy Efficiency Rating - C
Council Tax Band - C

Talk to Jack Power from Langford Russell (Estate agents in Sidcup)

 

Use our calculator to work out potential mortgage repayments and stamp duty costs. Please note, these calculators are for general interest only and must not be relied on. Speak to our Mortgage Scout team for further information and advice. 

Powered by

Total Mortgage

£

Estimated Monthly Mortgage Payment

£

  • Powered by

Sidcup Area Guide

Explore the areas we serve – from parks, entertainment and transport links, to shopping, eating and drinking.

Dive into property knowledge

Visit the AcornIntel knowledge-base, our library of articles to help you make sense of all things property, or send your questions to our panel of property experts.

Get your property valued

Looking to sell or let your property? Get a free property valuation from one of our experts.

Top