The Acorn Group is London’s largest multi-brand estate agency. We offer our clients the best brands, with the best people, in the best locations.

 

Close

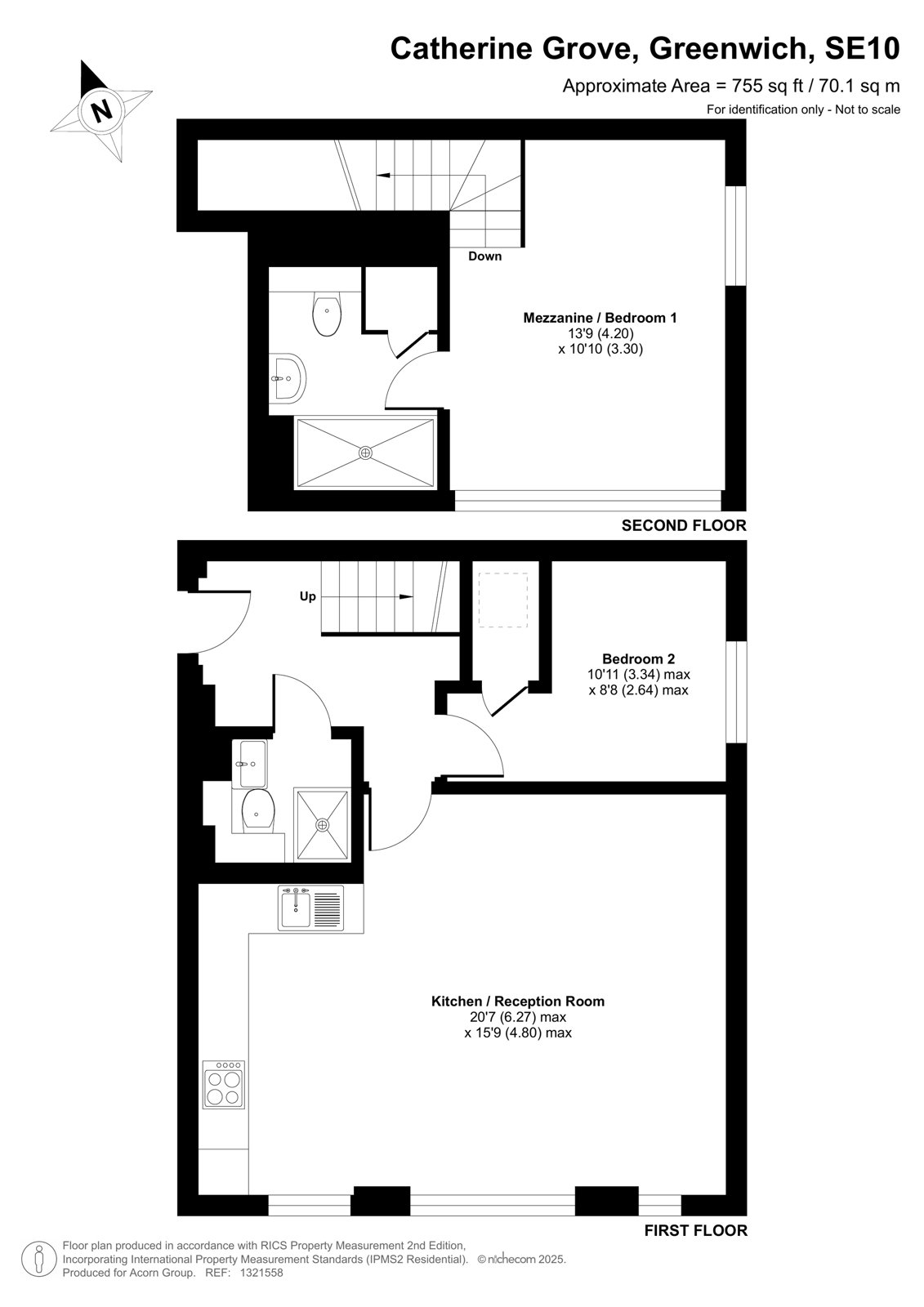
Guide price £500,000 leasehold

Apartment for sale - Catherine Grove, SE10

** GUIDE PRICE - £500,000 - £525,000 **

Extremely spacious, two-bedroom, split level apartment, situated in a renowned converted school, close to transportation and shopping facilities.

Internally the property boasts 755 square feet which comprises; an impressive open plan reception room with an extraordinary feature window which floods the room with an abundance of natural light. There are two spacious double bedrooms, of which the primary enjoys an en-suite shower room. There is a further shower room which services the other bedroom.

Charter Buildings is located on Catherine Grove, within the hugely popular Ashburnham Triangle in West Greenwich. The enviable location of this property makes commuting easy with Greenwich Station and the DLR close by providing links to the City and Canary Wharf in under 15 minutes. Greenwich village is also within easy reach with an array of shops, restaurants, bars and of course the Royal Park and The River Thames.

Lease - 102 Years
Service Charge - £3,963 PA
Ground Rent - £602 PA
The Royal Borough of Greenwich - Council Tax Band - E
Energy Efficiency Rating - E

Talk to Matthew Wright from John Payne (Estate agents in Greenwich West)

 

Use our calculator to work out potential mortgage repayments and stamp duty costs. Please note, these calculators are for general interest only and must not be relied on. Speak to our Mortgage Scout team for further information and advice. 

Powered by

Total Mortgage

£

Estimated Monthly Mortgage Payment

£

  • Powered by

Area Guide

Explore the areas we serve – from parks, entertainment and transport links, to shopping, eating and drinking.

Dive into property knowledge

Visit the AcornIntel knowledge-base, our library of articles to help you make sense of all things property, or send your questions to our panel of property experts.

Get your property valued

Looking to sell or let your property? Get a free property valuation from one of our experts.

Top