The Acorn Group is London’s largest multi-brand estate agency. We offer our clients the best brands, with the best people, in the best locations.

 

Close

Guide price £550,000 shareOfFreehold

Apartment for sale - Camberwell New Road, SE5

** GUIDE PRICE £550,000 - £600,000 **

Acorn are proud to present this characterful two bedroom conversion in the heart of Camberwell.

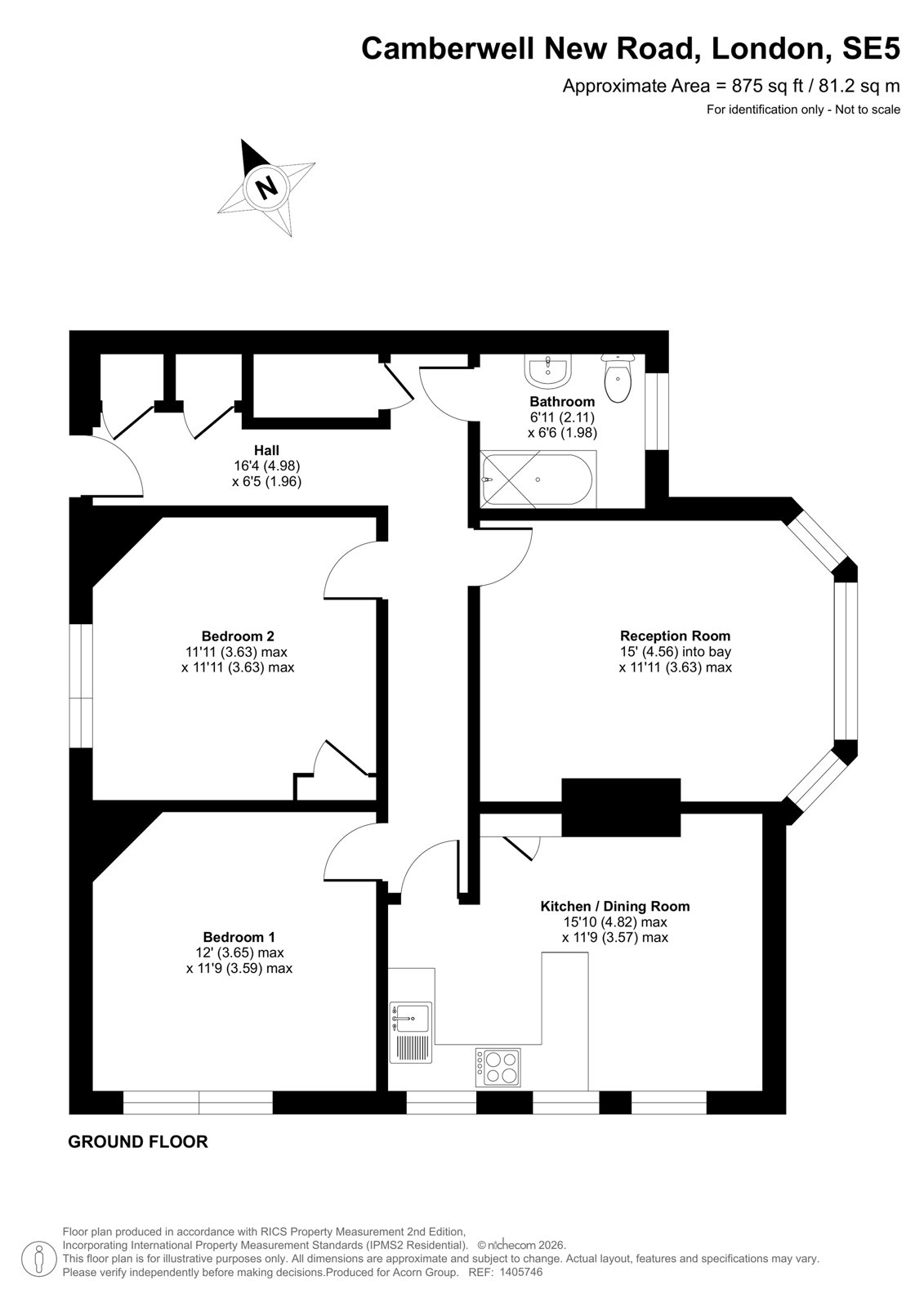
Measuring a whopping 875 sq ft, this spacious property has all the features one could want with tall ceilings, original fireplaces and sash windows throughout. Set on the ground floor, as you come through your own front door you have a large reception, two double bedrooms, a modern three piece bathroom suite and a large kitchen that provides enough space for a dining table.

Superbly located as it is just a short walk from central Camberwell/ Camberwell Green which has a variety of cafes, bars and restaurants. Green space doesn't stop just there as the popular Myatts Field Park is also a short distance away which has its own tennis courts, cafe and football pitches. Transport links are not hard to find with Oval Tube station just a short bus ride away.

Lease - 999 years from 1st January 1976 (949 years remaining)
Service Charge: £3,500 PA
Ground Rent N/A
Southwark Council - Council Tax Band - C
Energy Efficiency Rating - D

Talk to James Moss from Acorn (Estate agents in Camberwell)

 

Use our calculator to work out potential mortgage repayments and stamp duty costs. Please note, these calculators are for general interest only and must not be relied on. Speak to our Mortgage Scout team for further information and advice. 

Powered by

Total Mortgage

£

Estimated Monthly Mortgage Payment

£

  • Powered by

Camberwell Area Guide

Explore the areas we serve – from parks, entertainment and transport links, to shopping, eating and drinking.

Dive into property knowledge

Visit the AcornIntel knowledge-base, our library of articles to help you make sense of all things property, or send your questions to our panel of property experts.

Get your property valued

Looking to sell or let your property? Get a free property valuation from one of our experts.

Top