The Acorn Group is London’s largest multi-brand estate agency. We offer our clients the best brands, with the best people, in the best locations.

 

Close

Asking price £500,000 leasehold

Apartment - Bushey Hill Road, SE5

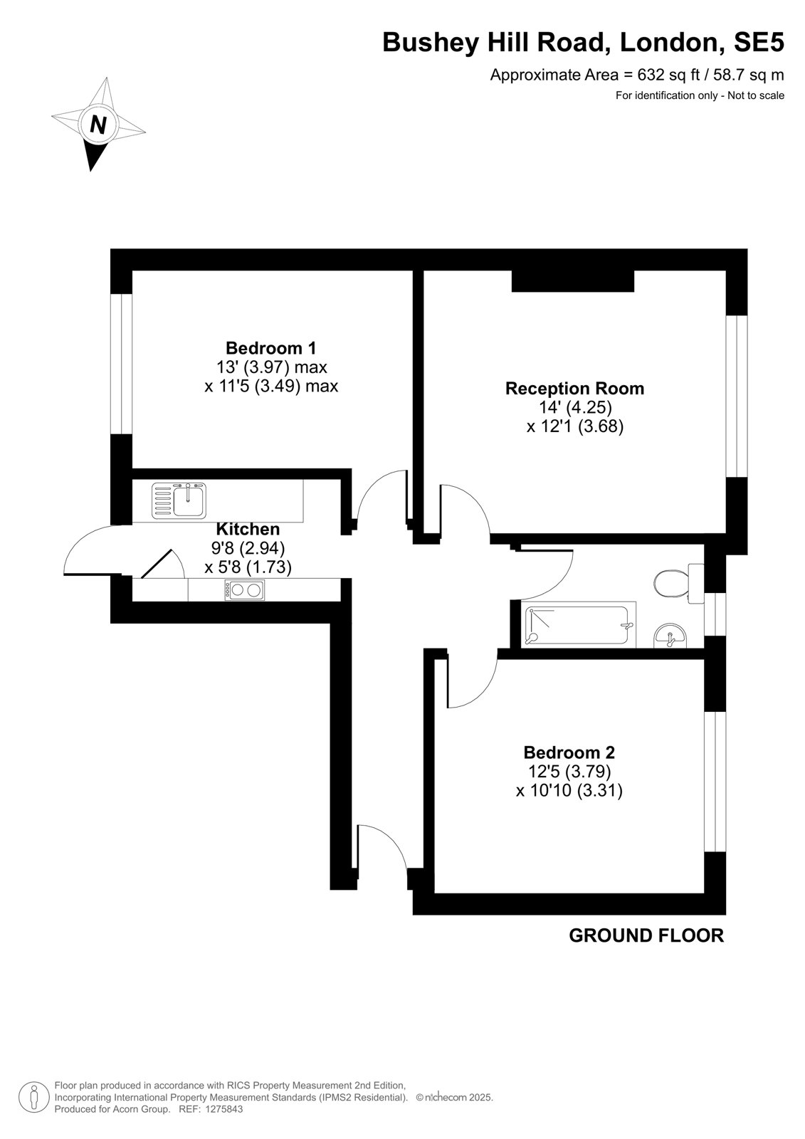
Set within a superb location in the heart of SE5, this charming ground floor flat offers a well-balanced combination of space, practicality, and convenience. Measuring approximately 632 square feet, the property is tastefully decorated throughout, while enjoying the benefits of a clean, contemporary aesthetic.

The layout includes two well-sized bedrooms, a spacious living area, three piece bathroom and a fitted kitchen. All benefiting from double glazed windows, ensuring a warm and quiet interior, and is further enhanced by direct access to beautifully maintained shared gardens. The outdoor space is easily reached via a secure gated side entrance, making it ideal for those who enjoy al fresco relaxation in a peaceful setting.

The location is equally as impressive as the interior - sandwiched between Camberwell SE5 and Peckham Rye SE15, you are within easy distance of a plethora of shops, bars, restaurants and greenspace. Transport is almost on your doorstep with Peckham Rye (0.3 miles), Denmark Hill (0.6 miles) and East Dulwich (0.6 miles) all nearby. Parking is available on-street with a resident’s permit, providing a rare convenience in such a central area. Offered as a leasehold property, this attractive flat is an ideal purchase for first-time buyers, investors, or anyone seeking a low-maintenance home in one of South East London’s most vibrant neighbourhoods.

Leasehold: 88 years | Ground Rent: £80pa | Service Charge: £750pa | Council Tax: C | EPC Rating: C

Talk to James Moss from Acorn (Estate agents in Camberwell)

 

Use our calculator to work out potential mortgage repayments and stamp duty costs. Please note, these calculators are for general interest only and must not be relied on. Speak to our Mortgage Scout team for further information and advice. 

Powered by

Total Mortgage

£

Estimated Monthly Mortgage Payment

£

  • Powered by

Camberwell Area Guide

Explore the areas we serve – from parks, entertainment and transport links, to shopping, eating and drinking.

Dive into property knowledge

Visit the AcornIntel knowledge-base, our library of articles to help you make sense of all things property, or send your questions to our panel of property experts.

Get your property valued

Looking to sell or let your property? Get a free property valuation from one of our experts.

Top