The Acorn Group is London’s largest multi-brand estate agency. We offer our clients the best brands, with the best people, in the best locations.

 

Close

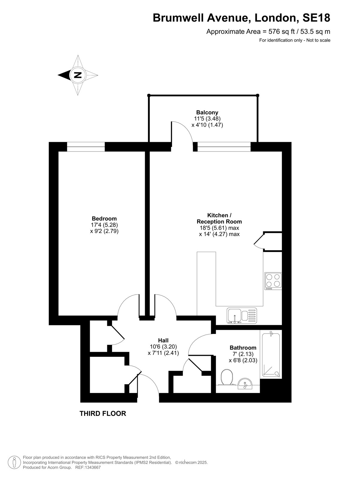
Asking price £325,000 leasehold

Apartment for sale - Brumwell Avenue, SE18

Offered to the market chain free is this one bedroom third floor apartment in the ever popular Trinity Walk development. Convenient for local shops, bus routes, mainline station, DLR and Elizabeth Line.

Comprising a 18ft open plan reception room with high gloss modern kitchen and integrated appliances, an East facing balcony, a large double bedroom, a three piece bathroom with shower over bath and two large hallway storage cupboards. Further benefits include lift access, video entry system, secure bike storage and concierge.

The buildings have been carefully considered to create a strong visual impact, accentuated with sensitive design details to provide a sense of individuality and style.

The apartment has been built to maximize space and light and finished with a high specification to ensure an excellent level of comfort, security and quality.

Trinity Walk is a collection of new build apartments located a few minutes walk to Woolwich town centre. A vibrant location with plenty of eateries, bars, restaurants and shopping facilities. Just 5 minutes to Woolwich Arsenal station offering Thameslink and South-eastern lines and DLR with London City Airport only two stops away; ideal for the jetsetter. The recently opened Elizabeth line provides quicker journeys into the centre of London; with 12 train services an hour, allowing passengers from Woolwich to reach Canary Wharf in eight minutes, Liverpool Street in 14 minutes and Bond Street in just 22 minutes.

Original Lease Term:125 years from and including 1 April 2017
Unexpired Lease: 118 Years
Ground Rent: None
Service Charge: £146 Pcm

Talk to William Chidley from John Payne (Estate agents in Woolwich)

 

Use our calculator to work out potential mortgage repayments and stamp duty costs. Please note, these calculators are for general interest only and must not be relied on. Speak to our Mortgage Scout team for further information and advice. 

Powered by

Total Mortgage

£

Estimated Monthly Mortgage Payment

£

  • Powered by

Woolwich Area Guide

Explore the areas we serve – from parks, entertainment and transport links, to shopping, eating and drinking.

Dive into property knowledge

Visit the AcornIntel knowledge-base, our library of articles to help you make sense of all things property, or send your questions to our panel of property experts.

Get your property valued

Looking to sell or let your property? Get a free property valuation from one of our experts.

Top