The Acorn Group is London’s largest multi-brand estate agency. We offer our clients the best brands, with the best people, in the best locations.

 

Close

Asking price £930,000 leasehold

Apartment for sale - Bermondsey Square, SE1

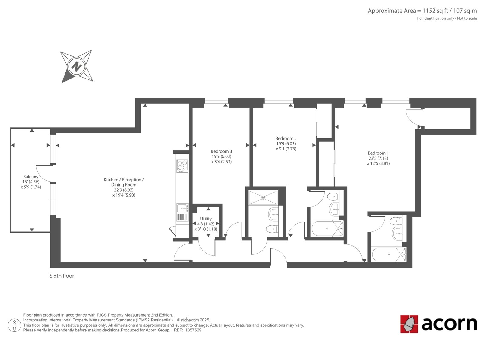
Set within the popular Bermondsey Square development is this simply stunning, 1152 sqft, three-bedroom, three-bathroom apartment. Boasting one of SE1’s most enviable and sought after addresses, this exceptional apartment offers luxurious, flexible living space throughout. Set on the sixth floor enjoying views across St Mary Magdelene Park towards The City this property is offered in excellent condition and offers a level of living space and quality that is extremely rare to the market.

On entering, you discover a generous hallway that features a large utility/storage cupboard. The main reception is a hugely impressive space at just shy of 24ft. Dividing neatly into substantial seating and dining areas the space is further enhanced by those far-reaching views. Floor to ceiling windows let in an abundance of light and offer direct access out to a large, east-facing balcony capturing the sunrise over the City! The perfect spot for a morning coffee. The kitchen sits neatly to the far end and is both stylish and practical with additional space available to extend should you wish. All three bedrooms are fantastic doubles and substantially larger than most. The master extends to 23ft ft and includes a large ensuite, a large walk-in cupboard, and additional fitted wardrobes. Bedroom two measures 20ft and again boasts a substantial ensuite and fitted wardrobes. Bedroom three again measures 20ft with access to the large family bathroom that sits off the hallway. The perfect layout for those looking to rent out a room or two. The family bathroom is immaculate, spacious, and very much in keeping with the feel and quality throughout. Further benefits include, solid wood flooring, central heating, secure entry, lift access and 24-hour concierge.

The Bermondsey Street location is quite simply a joy and really is perfect for those looking to enjoy a unique village lifestyle within Central London. Delights on your doorstep include some of the best restaurants, galleries, and watering holes that London has to offer and the delightful parks of Tanner Street and Leathermarket Gardens. Furthermore, London Bridge Station is just moments away. Available chain free.

Lease Length: 125 years from 29 September 2007, Ground Rent: £350pa, Service Charge £7757pa.

Talk to Stuart Challis from Acorn (Estate agents in London Bridge)

 

Use our calculator to work out potential mortgage repayments and stamp duty costs. Please note, these calculators are for general interest only and must not be relied on. Speak to our Mortgage Scout team for further information and advice. 

Powered by

Total Mortgage

£

Estimated Monthly Mortgage Payment

£

  • Powered by

London Bridge Area Guide

Explore the areas we serve – from parks, entertainment and transport links, to shopping, eating and drinking.

Dive into property knowledge

Visit the AcornIntel knowledge-base, our library of articles to help you make sense of all things property, or send your questions to our panel of property experts.

Get your property valued

Looking to sell or let your property? Get a free property valuation from one of our experts.

Top