The Acorn Group is London’s largest multi-brand estate agency. We offer our clients the best brands, with the best people, in the best locations.

 

Close

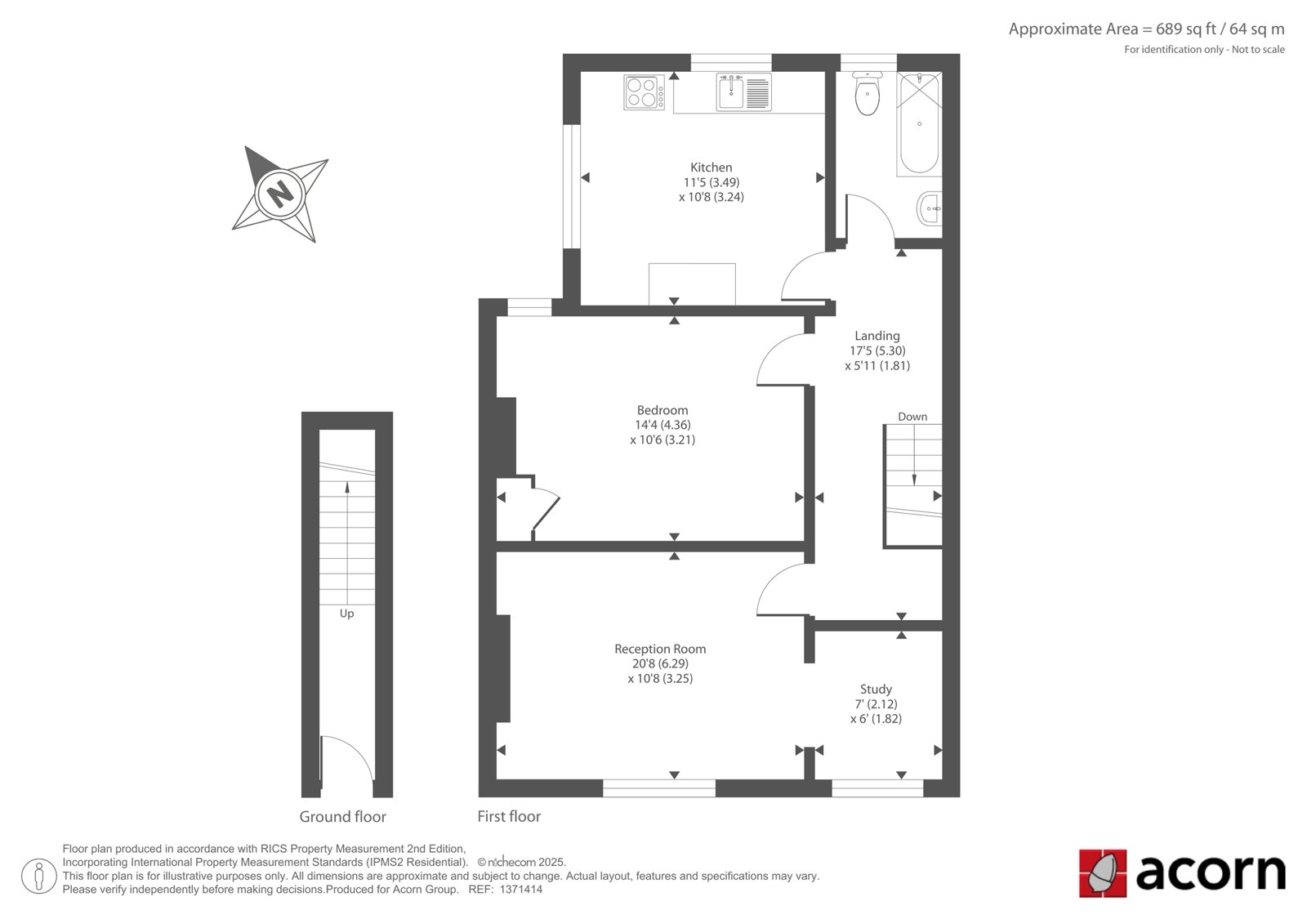
Asking price £375,000 leasehold

Apartment for sale - Ambergate Street, SE17

One bedroom First Floor Period residence, Set in a central SE17 location in need of some love!

Generous in its proportions, this first floor property is a perfect blank canvas for a new buyer to put their stamp on. the propetry is complete with no chain.

Situated on Ambergate Street, the property is moments from Kennington underground station (Northern Line) and within easy reach of Elephant & Castle stations (National Rail, Bakerloo & Northern Line). Frequent bus routes serve the area, while Kennington Cross, with its cafés, shops, and restaurants, is just a short walk away. Residents also enjoy the green open space of Kennington Park.

Leasehold

Talk to Jack Davies from Acorn (Estate agents in Kennington)

 

Use our calculator to work out potential mortgage repayments and stamp duty costs. Please note, these calculators are for general interest only and must not be relied on. Speak to our Mortgage Scout team for further information and advice. 

Powered by

Total Mortgage

£

Estimated Monthly Mortgage Payment

£

  • Powered by

Kennington Area Guide

Explore the areas we serve – from parks, entertainment and transport links, to shopping, eating and drinking.

Dive into property knowledge

Visit the AcornIntel knowledge-base, our library of articles to help you make sense of all things property, or send your questions to our panel of property experts.

Get your property valued

Looking to sell or let your property? Get a free property valuation from one of our experts.

Top