The Acorn Group is London’s largest multi-brand estate agency. We offer our clients the best brands, with the best people, in the best locations.

 

Close

Asking price £900,000 shareOfFreehold

Apartment for sale - 179-181, London, SE1

Public Notice:
Address: Flat 19, Bermondsey Exchange, 179-181, Bermondsey Street, London, SE1 3UW
We are acting in the sale of the above property and have received an offer of £795,000
Any interested parties must submit any higher offers in writing to the selling agent before exchange of contracts takes place
EPC - E


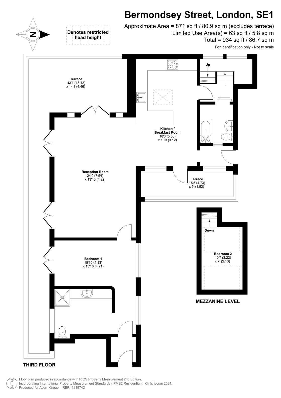
Set within a former warehouse within a secure gated courtyard at the very heart of the ever popular and rather splendid Bermondsey Street is this striking period conversion. Boasting one of SE1’s most enviable addresses, this premier loft apartment boasts character and flexible living space throughout. Sympathetically designed with just shy of 934 sq ft of accommodation, this two-bedroom, two-bathroom home is a genuine rarity to the market and offers further scope to upgrade and redesign.

The apartment immediately reveals itself to be refreshingly different. The grand, 25ft reception room is stunning, brickwork and wooden beams pay homage to the building’s industrial past. Several sets of French doors allow natural light to flood in and offer views out to the mightily impressive 43ft wraparound terrace. The open plan kitchen occupies a separate 18ft space, sunken from the main reception offering ample room for a large dining table. Original exposed brick and a stunning vaulted ceiling make this a truly unique space. The master bedroom is a generous 15ft with access to a substantial ensuite bathroom. Bedroom two is set across two floors offering a sleeping deck, changing area and ensuite. Again, boasting brickwork and original beams the space offers further potential. Outside the Southwest facing terrace is just exceptional and offers ample space for seating and dining. Another substantial terrace from the dining area provides further outside space and views over the internal courtyard. Further benefits include a share of the freehold, secure entry and lift access.

The Bermondsey Street the location is quite simply a Joy and really is perfect for those looking to enjoy a unique village lifestyle within Central London. Delights on your doorstep include some of the best restaurants, galleries, and watering holes that London has to offer along with the delightful parks of Tanner Street and Leathermarket Gardens. With, London Bridge Station just moments away at the top of the road transport links could not be better. Properties within this development are extremely rare to the market. Offered chain free.

Lease Length: 972 Years
Service Charge: £3,227 pa
Ground Rent: £250 pa

Talk to Stuart Challis from Acorn (Estate agents in London Bridge)

 

Use our calculator to work out potential mortgage repayments and stamp duty costs. Please note, these calculators are for general interest only and must not be relied on. Speak to our Mortgage Scout team for further information and advice. 

Powered by

Total Mortgage

£

Estimated Monthly Mortgage Payment

£

  • Powered by

London Bridge Area Guide

Explore the areas we serve – from parks, entertainment and transport links, to shopping, eating and drinking.

Dive into property knowledge

Visit the AcornIntel knowledge-base, our library of articles to help you make sense of all things property, or send your questions to our panel of property experts.

Get your property valued

Looking to sell or let your property? Get a free property valuation from one of our experts.

Top