The Acorn Group is London’s largest multi-brand estate agency. We offer our clients the best brands, with the best people, in the best locations.

 

Close

£2,750 per month | Security Deposit Required - £3173

Terraced House to rent - Cottonwood Close, Orpington, BR6

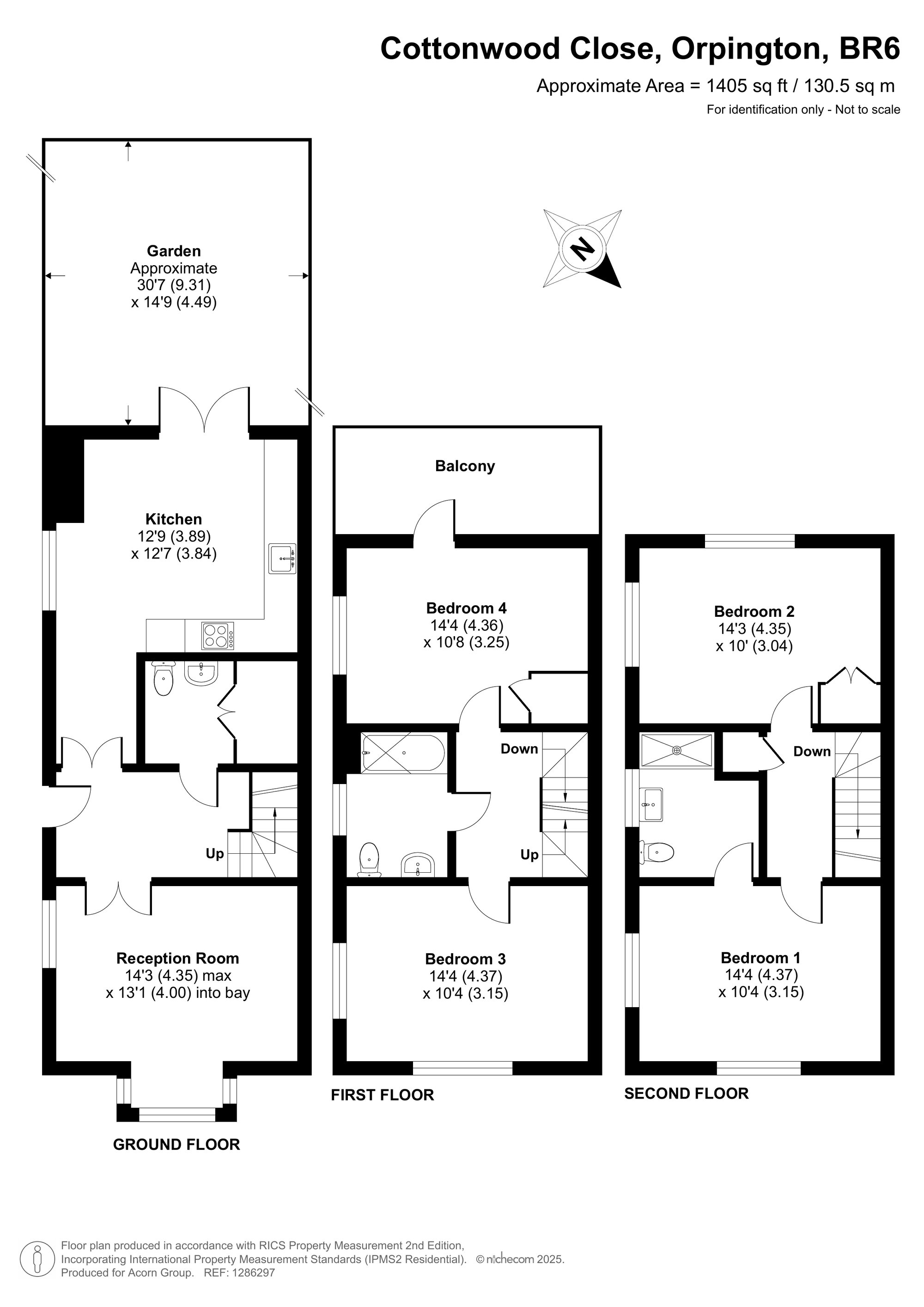
Upon entering the ground floor, you are welcomed by a spacious entrance hall that leads into a generous open-plan kitchen and dining area, featuring contemporary fitted units and direct access to a private rear garden—perfect for entertaining. This level also includes a bright, dual-aspect living room, a cloakroom, and a separate WC.

The first floor hosts a stylish family bathroom and two well-proportioned bedrooms, one of which enjoys access to a private balcony. The top floor completes the home with two additional bedrooms, including a principal suite with its own en suite shower room.

Additional features include designated off-street parking for two cars and secure entry to the development.

Cottonwood Close benefits from an excellent location within catchment for several sought-after schools, including Darrick Wood Primary and Secondary, Farnborough Primary, and is also easily accessible to Tubbenden Primary. The home is just a short walk from both Locksbottom and Farnborough villages, which offer a mix of supermarkets, boutique shops, cafés, and independent restaurants. Orpington Station lies under two miles away, providing fast and frequent services to London Bridge (approx. 14 minutes), Cannon Street, and Victoria.

Nature lovers and families will also appreciate nearby green spaces such as Darrick Wood, High Elms Country Park, and Tugmutton Common, all popular for walking, running, and home to local cricket and tennis clubs.


Offered - Unfurnished
Available NOW
Energy Efficiency Rating - B
Council Tax Band - F
Deposit - £3,173

All known suppliers for mobile and broadband services are available in this area.

Gas Central Heating & Mains Electric

Reception Room 14'3 x 13'1 (4.35m x 4.00m), Kitchen 12'9 x 12'7 (3.89m x 3.84m), Garden 30'7 x 14'9 (9.31m x 4.49m), Bedroom 3 14'4 x 10'4 (4.37m x 3.16m), Bedroom 4 14'4 x 10'8 (4.36m x 3.25m), Bedroom 1 14'4 x 10'4 (4.37m x 3.15m), Bedroom 2 14'3 x 10' (4.35m x 3.04m) To check broadband and mobile phone coverage please visit Ofcom here ofcom.org.uk/phones-telecoms-and-internet/advice-for-consumers/advice/ofcom-checker

Talk to Christopher Forde from Langford Russell (Estate agents in Locksbottom)

Locksbottom Area Guide

Explore the areas we serve – from parks, entertainment and transport links, to shopping, eating and drinking.

Dive into property knowledge

Visit the AcornIntel knowledge-base, our library of articles to help you make sense of all things property, or send your questions to our panel of property experts.

Get your property valued

Looking to sell or let your property? Get a free property valuation from one of our experts.

Top