The Acorn Group is London’s largest multi-brand estate agency. We offer our clients the best brands, with the best people, in the best locations.

 

Close

£3,800 per month

Semi-detached House to rent - Cecil Way, Bromley, BR2

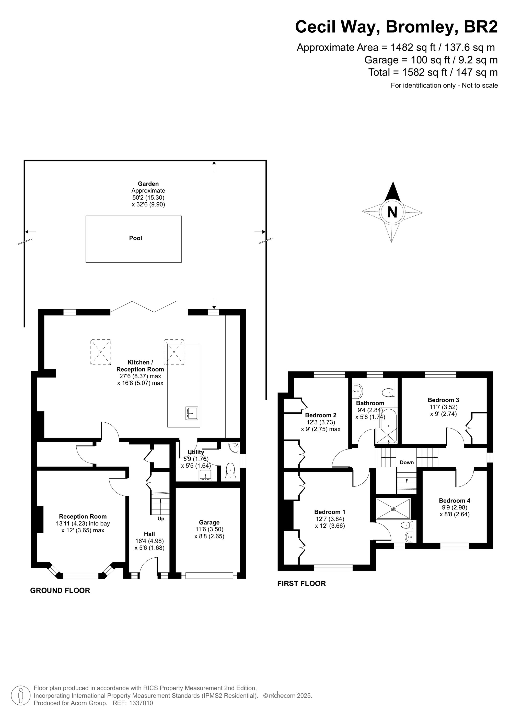
The property comprises a large entrance hall off of which lies a cosy living room, followed by a huge open plan kitchen diner with a fully fitted top of the range kitchen, bi folding doors onto the magnificent garden with swimming pool and beautiful sceneries, a utility room and private garage. Upstairs comprises four good sized bedrooms, three with fitted wardrobes and one with en-suite plus a family bathroom.

This house in a MUST SEE so please call now to secure your viewing.

Reception 13'11 x 12' (4.23m x 3.65m), Hallway 16'4 x 5'8 (4.98m x 1.88m), Garage 11'6 x 8'8 (3.50m x 2.65m), Utility Room 5'9 x 5'5 (1.76m x 1.64m), Kitchen/Reception 27'8 x 16'8 (8.37m x 5.07m), Bedroom 1 12'7 x 12' (3.84m x 3.86m), Bedroom 2 12'3 x 9' (3.73m x 2.75m), Bedroom 3 11'7 x 9' (3.52m x 2.74m), Bedroom 4 9'9 x 8'8 (2.98m x 2.64m), Bathroom 9'4 x 5'8 (2.84m 1.74m)

Offered Part-Furnished
Available From 15th September
Energy Efficiency Rating - D
Council Tax Band - F
Deposit - £4,615
Holding Deposit Required –

All known suppliers for mobile and broadband services are available in this area.
Gas Central Heating & Mains Electric To check broadband and mobile phone coverage please visit Ofcom here ofcom.org.uk/phones-telecoms-and-internet/advice-for-consumers/advice/ofcom-checker

Talk to Lilia Ghenim from Langford Russell (Estate agents in Bromley)

Bromley Area Guide

Explore the areas we serve – from parks, entertainment and transport links, to shopping, eating and drinking.

Dive into property knowledge

Visit the AcornIntel knowledge-base, our library of articles to help you make sense of all things property, or send your questions to our panel of property experts.

Get your property valued

Looking to sell or let your property? Get a free property valuation from one of our experts.

Top