The Acorn Group is London’s largest multi-brand estate agency. We offer our clients the best brands, with the best people, in the best locations.

 

Close

£900 per month

House Share to rent - Hillcourt Road, East Dulwich, SE22

Double room to rent in a well presented semi detached house, located on a quiet residential road close to transport links and local amenities. The property includes shared use of the kitchen, lounge and bathroom with use of the rear garden. Council tax included. Utility bills shared between tenants.

Energy Efficiency Rating E.
Council Tax Band: D

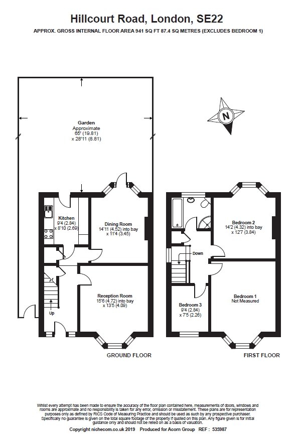
Dinning Room 14'11 x 11'4 Reception 15'6 x 13'5 Bedroom 2 14'2 x 12'7 Bedroom 1 not measurements Bedroom 3 9'4 x 7'5
All broadband and mobile services evacuate in this area
Heating: Gas
Electrics & Water; Mains To check broadband and mobile phone coverage please visit Ofcom here ofcom.org.uk/phones-telecoms-and-internet/advice-for-consumers/advice/ofcom-checker

Talk to Liam Horton from Acorn (Estate agents in Dulwich)

Dulwich Area Guide

Explore the areas we serve – from parks, entertainment and transport links, to shopping, eating and drinking.

Dive into property knowledge

Visit the AcornIntel knowledge-base, our library of articles to help you make sense of all things property, or send your questions to our panel of property experts.

Get your property valued

Looking to sell or let your property? Get a free property valuation from one of our experts.

Top