The Acorn Group is London’s largest multi-brand estate agency. We offer our clients the best brands, with the best people, in the best locations.

 

Close

£3,300 per month

Flat to rent - Westerham Road, Keston, BR2

As you enter the flat, you are greeted by a large hallway with the entrance to study, with built in storage. Following from this, the kitchen dining area which is perfect for entertaining. The kitchen is fully fitted with integrated appliances. The property offers an abundance of light, with large windows facing the private patio area and beautiful communal gardens.

The property also benefits from two double bedrooms, both with en suites and built in storage.

It sits within attractive communal gardens, backing onto the Keston ponds ideal for local walks, whilst also being a short walk from Keston village. This property is situated within a private gated development, but is close to local bus routes leading to both Orpington and Bromley South mainline stations.

Available to be moved into immediately.

Offered - Unfurnished
Available From - 01/11/2025
Energy Efficiency Rating - C
Council Tax London Borough Of Bromley Tax Band - D
Deposit - £3808

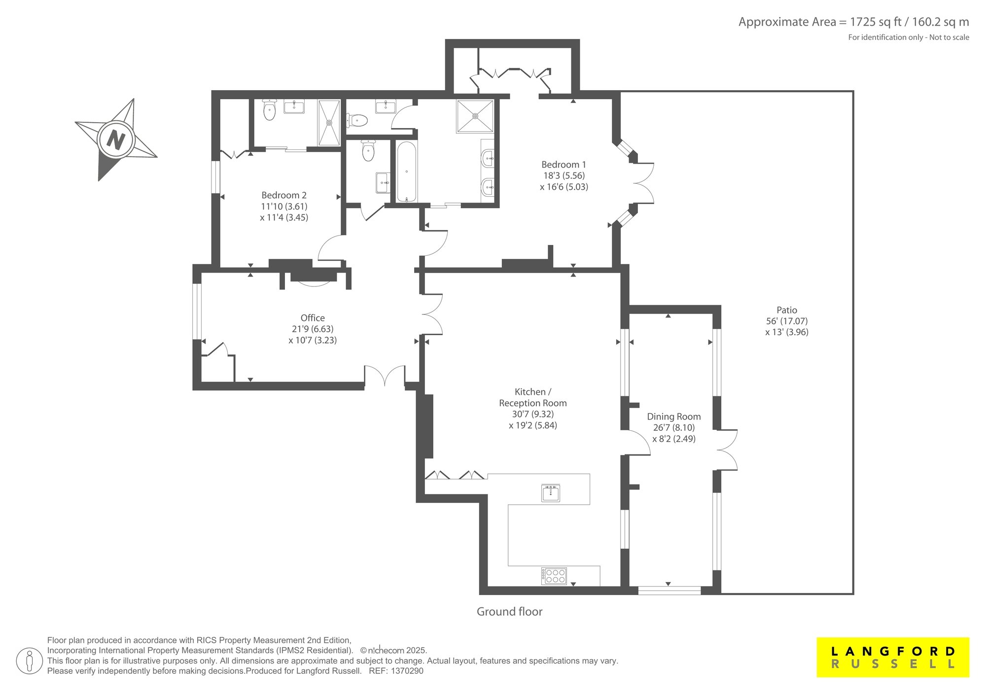
Office 21'9 (6.63) x 10'7 (3.23)
Bedroom Two 11'10 (3.61) x 11'4 (3.45)
Bedroom One 18'3 (5.56) x 16'6 (5.03)
Kitchen/Reception Room 30.7 (9.32) x 19'2 (5.84)
Dining Room 26'7 (8.10) x 8'2(2.49)
Patio 56 (17.07) x 13(3.96)

Gas Central Heating & Mains Electric

Broadband and Mobile Phone: Ofcom suggest that Standard broadband is available to this property and 5g Mobile signal may be available on some networks. Information regarding broadband options and phone signal can be obtained from the Ofcom broadband and mobile coverage checker. To check broadband and mobile phone coverage please visit Ofcom here ofcom.org.uk/phones-telecoms-and-internet/advice-for-consumers/advice/ofcom-checker

Talk to Christopher Forde from Langford Russell (Estate agents in Locksbottom)

Locksbottom Area Guide

Explore the areas we serve – from parks, entertainment and transport links, to shopping, eating and drinking.

Dive into property knowledge

Visit the AcornIntel knowledge-base, our library of articles to help you make sense of all things property, or send your questions to our panel of property experts.

Get your property valued

Looking to sell or let your property? Get a free property valuation from one of our experts.

Top