The Acorn Group is London’s largest multi-brand estate agency. We offer our clients the best brands, with the best people, in the best locations.

 

Close

£2,500 per month | Security Deposit Required - £2827

Flat to rent - Pilton Place, London, SE17

The area is currently under a massive regeneration project which makes this location an excellent part of the world to live in.
Burgess park, a 140 acre green space with tennis courts a lovely café and BMX track, is also just short distance from the property.

Local Authority Southwark London Band B
Energy Performance Rating: D

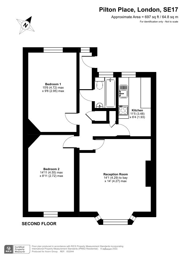
Reception: 13'1 x 14' Bedroom 1: 15'6 x 9'8 Bedroom 2: 14'11 x 8'11 Kitchen: 11'5 x 6'4 Bathroom: Room dimensions pending verification.

All known suppliers for mobile and broadband services are available in this area.

Heating type: Mains Gas
Electricity: mains
Water and Sewerage: Mains

Flood Risk:
Surface: Very Low
Rivers & Seas: Very Low To check broadband and mobile phone coverage please visit Ofcom here ofcom.org.uk/phones-telecoms-and-internet/advice-for-consumers/advice/ofcom-checker

Talk to Jack Davies from Acorn (Estate agents in Kennington)

Kennington Area Guide

Explore the areas we serve – from parks, entertainment and transport links, to shopping, eating and drinking.

Dive into property knowledge

Visit the AcornIntel knowledge-base, our library of articles to help you make sense of all things property, or send your questions to our panel of property experts.

Get your property valued

Looking to sell or let your property? Get a free property valuation from one of our experts.

Top