The Acorn Group is London’s largest multi-brand estate agency. We offer our clients the best brands, with the best people, in the best locations.

 

Close

£1,675 per month

Flat to rent - Havelock Drive, Greenhithe, DA9

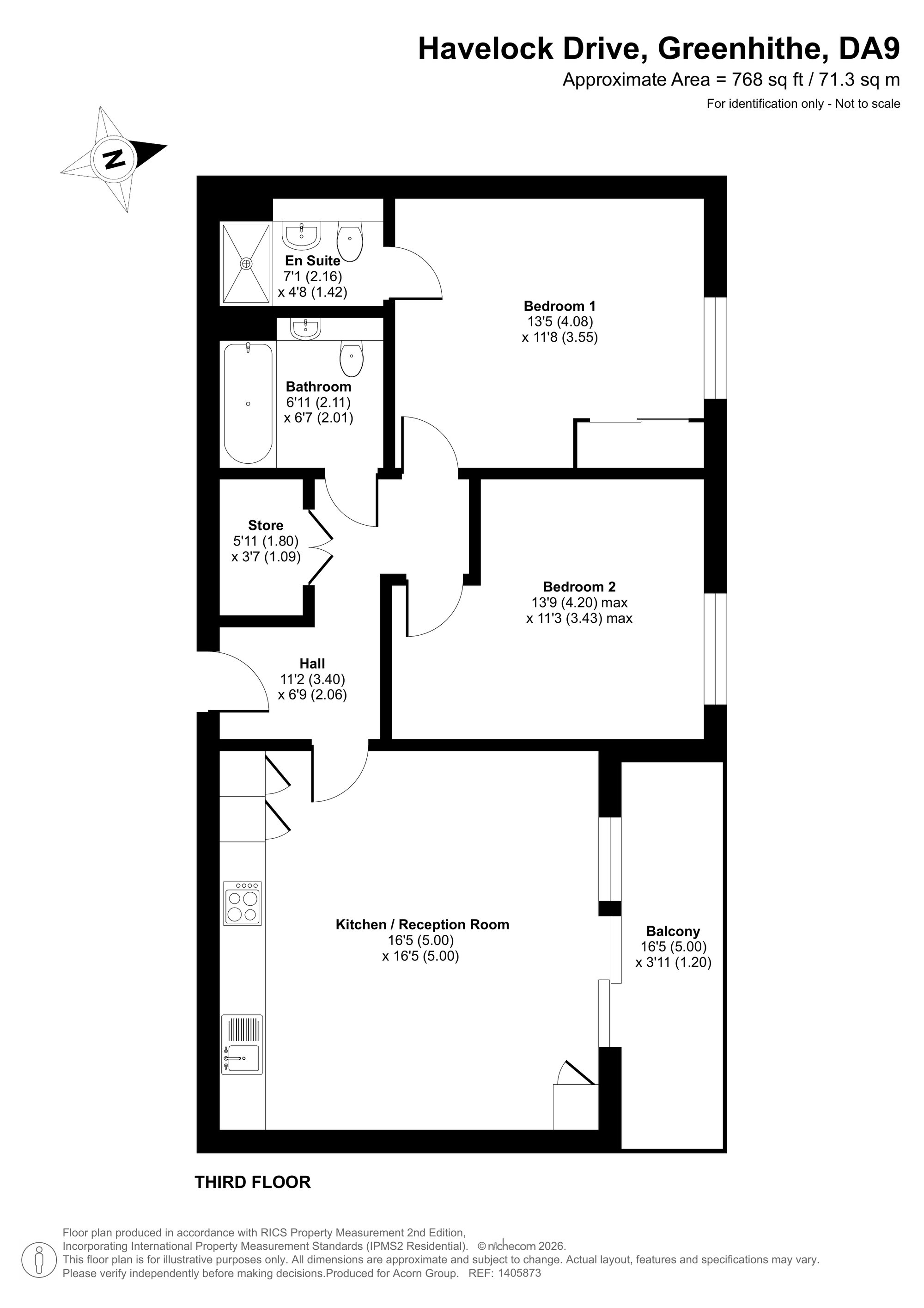
Filled with an abundance of natural lighting, this exceptional two bedroom apartment comprises of a large open-plan living space with French doors leading onto a gorgeous private balcony. Two exceptional double bedrooms, Main bedroom complete with a gorgeous en-suite, large family bathroom and ample storage solutions throughout.

Complete with allocated parking, amenities on site and an impeccable location!

Call us now on 01322 478 555 to book your viewing!

EPC Rating: B
Council Tax: D

Deposit payable is £1,932.69, this is based on the advertised rent. A Holding Deposit of £386.54, this will be required to reserve this property. Min Term 12 months.

Kitchen/Reception 16’5 x 16’5 (5m x 5m), Balcony 16’5 x 3’11 (5m x 1.2m), Hall 11’2 x 6’9 (3.4m x 2.06m), Bedroom 1 13’5 x 11’8 (4.08m x 3.55m), Bedroom 2 13’9 x 11’3 (4.2m x 3.43m), En Suite 7’1 x 4’8 (2.16m x 1.42m), Bathroom 6’11 x 6’7 (2.11m x 2.01m), Store 5’11 x 3.7 (1.8m x 1.09m)

Broadband and Mobile Phone: Ofcom suggest that Ultrafast broadband is available to this property and 5g Mobile signal may be available on some networks. Information regarding broadband options and phone signal can be obtained from the Ofcom broadband and mobile coverage checker. To check broadband and mobile phone coverage please visit Ofcom here ofcom.org.uk/phones-telecoms-and-internet/advice-for-consumers/advice/ofcom-checker

Talk to Aidan Harding from Acorn (Estate agents in Dartford)

Dartford Area Guide

Explore the areas we serve – from parks, entertainment and transport links, to shopping, eating and drinking.

Dive into property knowledge

Visit the AcornIntel knowledge-base, our library of articles to help you make sense of all things property, or send your questions to our panel of property experts.

Get your property valued

Looking to sell or let your property? Get a free property valuation from one of our experts.

Top