The Acorn Group is London’s largest multi-brand estate agency. We offer our clients the best brands, with the best people, in the best locations.

 

Close

£1,950 per month

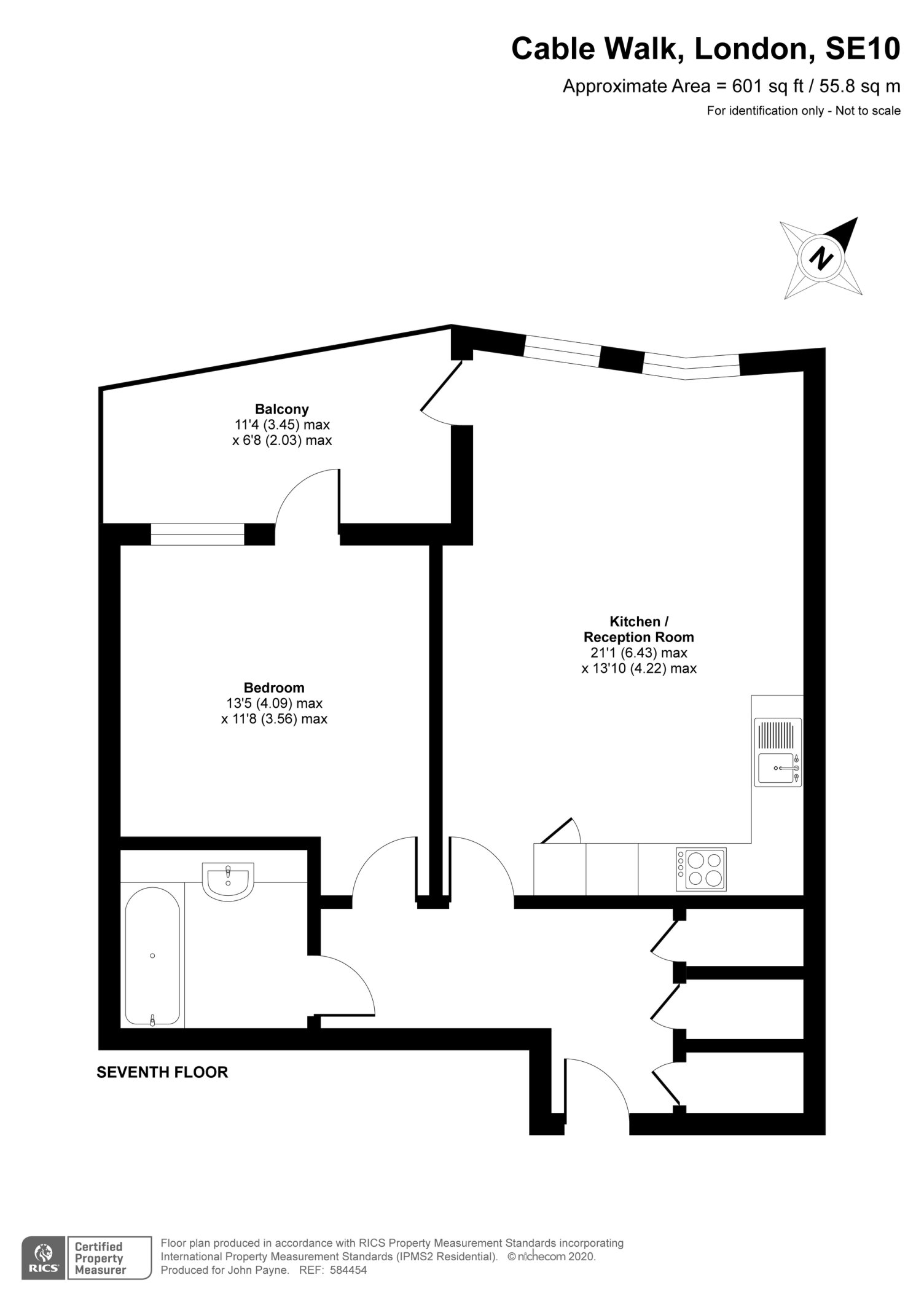
Flat to rent - Cable Walk, Greenwich, SE10

Extremely well presented, this contemporary property comprises a spacious double bedroom with built in wardrobes, private covered balcony with access from bedroom and living area, family bathroom, and open plan living/dining room with high gloss fully fitted kitchen with integrated appliances.

Additional advantages include on site free gym, lift access, twenty-four hour concierge and communal gardens.

Ideally located, the Apartment Block sits moments from the Thames River Path - a pleasant walk to Greenwich Town Centre, offering an array of bars, shops, restaurants, the Cutty Sark and the renowned Greenwich Market. Also located here are the DLR Station (Cutty Sark) and the Thames Clipper Ferry Station.

The Royal Greenwich Park and Maze Hill Rail Station are just 0.4 miles away.

The property is a 15 minute walk or a 5 min bus ride to the Jubilee line at North Greenwich tube station and the O2 complex.

EPC Rating: B
Council Tax: B
HMO licence restricts number of tenants for this property, please refer to Greenwich Council Website for further information.

Deposit payable is £2,307.70. A Holding Deposit of £461.54 this is based on the advertised rent; this will be required to reserve this property. Min Term 6 months.

Kitchen/Reception 6.43m x 4.22m (21'1" x 13’10")
Bedroom One 4.09m x 3.56m (13’5" x 11’8")


Broadband and Mobile Phone: Ofcom suggest that Ultrafast broadband is available to this property and 5g Mobile signal may be available on some networks. Information regarding broadband options and phone signal can be obtained from the Ofcom broadband and mobile coverage checker.

Offered Furnished
Available From 4th May 2026 To check broadband and mobile phone coverage please visit Ofcom here ofcom.org.uk/phones-telecoms-and-internet/advice-for-consumers/advice/ofcom-checker

Talk to Luke McConville from John Payne (Estate agents in Greenwich East)

Area Guide

Explore the areas we serve – from parks, entertainment and transport links, to shopping, eating and drinking.

Dive into property knowledge

Visit the AcornIntel knowledge-base, our library of articles to help you make sense of all things property, or send your questions to our panel of property experts.

Get your property valued

Looking to sell or let your property? Get a free property valuation from one of our experts.

Top