The Acorn Group is London’s largest multi-brand estate agency. We offer our clients the best brands, with the best people, in the best locations.

 

Close

£2,500 per month | Security Deposit Required - £2885

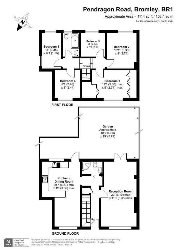
End Of Terrace House to rent - Pendragon Road, Bromley, BR1

We are delighted to present this wonderfully sized five bedroom end of terrace house!

Internal layout comprises; welcoming entrance hall, a sweeping cavernous double reception room its size perfect for accommodating guests, a separate fitted kitchen/dining room, with access out to a huge garden plot. The property has a highly convenient downstairs shower room, five well sized bedrooms accommodating all sizes of families and to cap of this unique property a tiled themed three piece bathroom family suite.

Pendragon is quiet yet expedient for local amenities including schools, parks, shops and transport links. The street is just a 0.5 of a mile from Grove Park Station, that offers direct trains into London Bridge, Charing Cross, Waterloo East & Cannon Street in as little as 14 minutes. In addition, fitness lovers will be pleased to know that Downham Health & Leisure Centre is 500m from the property boasting a swimming pool & gym/fitness suite.

Energy Efficiency Rating - D.

Council Tax – Local Authority London Borough of Lewisham Band: C.

Kitchen 20'7 x 12'0 (6.27m x 3.66m) Reception 20'0 x 11'1 (6.10m x 3.38m) Bedroom 1 11'1 x 9'0 (3.38m x 2.74m) Bedroom 2 10'11 x 9'0 (3.33m x 2.74m) Bedroom 3 11'0 x 6'1 (3.35m x 1.85m) Bedroom 4 8'1 x 8'0 (2,46m x 2.44m)
All known suppliers for mobile and broadband services are available in this area.
Surface Water Flood Risk: High To check broadband and mobile phone coverage please visit Ofcom here ofcom.org.uk/phones-telecoms-and-internet/advice-for-consumers/advice/ofcom-checker

Talk to Jake Blackman from Acorn (Estate agents in Grove Park)

Grove Park Area Guide

Explore the areas we serve – from parks, entertainment and transport links, to shopping, eating and drinking.

Dive into property knowledge

Visit the AcornIntel knowledge-base, our library of articles to help you make sense of all things property, or send your questions to our panel of property experts.

Get your property valued

Looking to sell or let your property? Get a free property valuation from one of our experts.

Top