The Acorn Group is London’s largest multi-brand estate agency. We offer our clients the best brands, with the best people, in the best locations.

 

Close

£3,750 per month

Detached House to rent - Westbury Road, Bromley, BR1

Outside, the property benefits from a large rear garden and a private driveway for multiple cars.
Westbury Road offers a peaceful setting within easy reach of Bickley and Bromley South stations, providing fast links into central London. Excellent local schools, parks, and a wide range of shops and cafés are all nearby, making this an ideal home for families seeking space and convenience.
Offered unfurnished and available now, please contact our friendly lettings team to arrange a viewing.

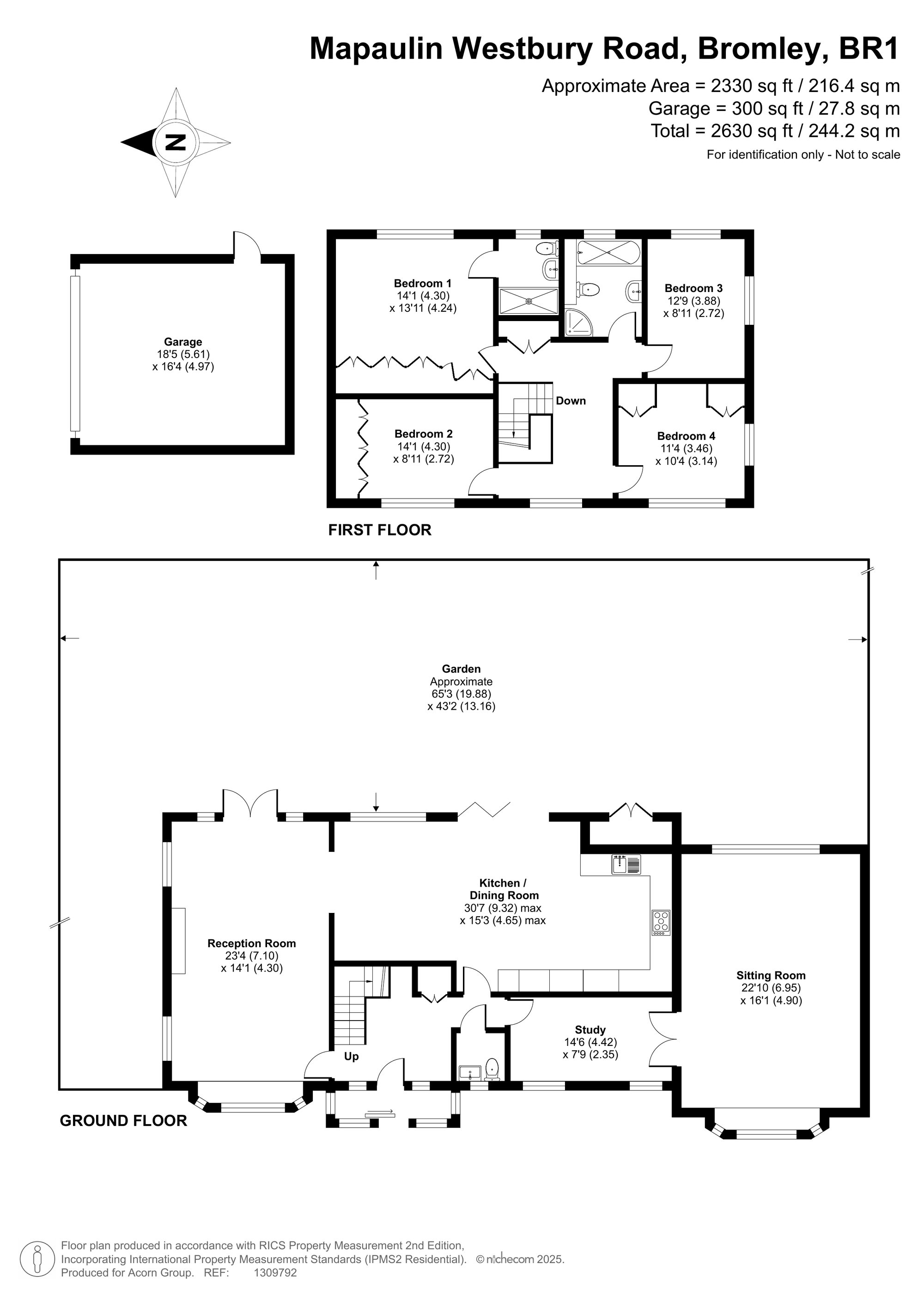
Reception Room 23'4 x 14'1 (7.1m x 4.3m), Kitchen 3.'7 x 15'3 (9.32m x 4.65m), Study 14'6 x 7'9 (4.42m x 2.35m), Sitting Room 22'10 x 16'1 (8.95m x 4.9m), Bedroom 1 14'1 x 13'xx (4.3m x 4.24m), Bedroom 2 14'1 x 8'11 (4.3m x 2.72m), Bedroom 3 12'9 x 8'11 (3.88m x 2.72m), Bedroom 4 11'4 x 10'4 (3.46m x 3.14m), Garage 18'5 x 16'4 (5.61m x 4.97m)

Offered Furnished.
Available Immediately
Energy Efficiency Rating - D
Council Tax Band - G
Deposit - £4,326.92
Holding Deposit Required – £865.39

All known suppliers for mobile and broadband services are available in this area.
Gas Central Heating & Mains Electric To check broadband and mobile phone coverage please visit Ofcom here ofcom.org.uk/phones-telecoms-and-internet/advice-for-consumers/advice/ofcom-checker

Talk to Christopher Forde from Langford Russell (Estate agents in Chislehurst)

Chislehurst Area Guide

Explore the areas we serve – from parks, entertainment and transport links, to shopping, eating and drinking.

Dive into property knowledge

Visit the AcornIntel knowledge-base, our library of articles to help you make sense of all things property, or send your questions to our panel of property experts.

Get your property valued

Looking to sell or let your property? Get a free property valuation from one of our experts.

Top