The Acorn Group is London’s largest multi-brand estate agency. We offer our clients the best brands, with the best people, in the best locations.

 

Close

£4,250 per month

Detached House to rent - The Spinneys, Bromley, BR1

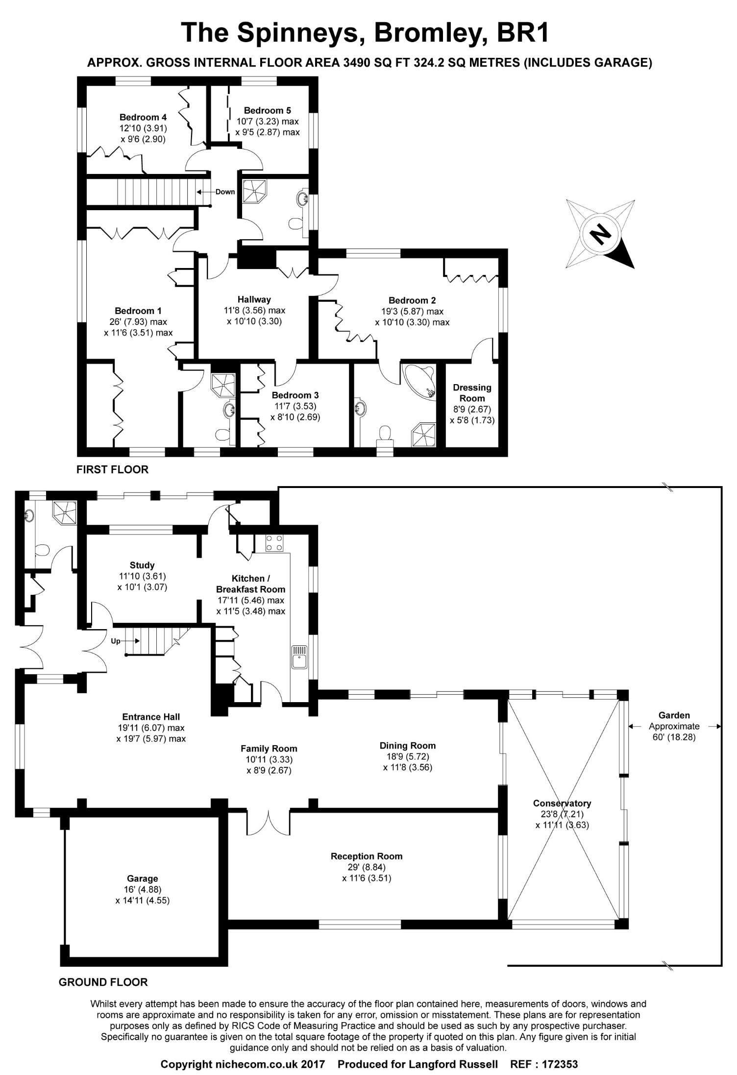
Accommodation comprises large entrance reception, dining room, second reception leading to a conservatory overlooking a well-maintained garden, modern kitchen/breakfast room with utility area and pantry, study, WC and shower room.

Upstairs, five double bedrooms, four of which benefit from fitted wardrobes, two en-suite bathrooms, family bathroom and sitting/study area.

Externally there is a large, secluded garden, driveway, and garage.

A selection of highly regarded schools are within close proximity including Bickley Park, Bromley High and Bullers Wood Secondary School.

Please call our friendly lettings team to arrange a viewing.

Offered Unfurnished
Available From - 29/09/2025
Energy Efficiency Rating - D
Council Tax London Borough Of Bromley Tax Band - G
Deposit - £5,192

All known suppliers for mobile and broadband services are available in this area.

Gas Central Heating & Mains Electric

Entrance Hall 19'11 x 19'7 (6.07m x 5.97m), Garage 16' x 14'11 (4.88m x 4.55m), Study 11'10 x 10'1 (3.61m x 3.07m), Kitchen/Breakfast Room 17'11 x 11;5 (5.46m x 3.48m), Family Room 10'11 x 8'9 (3.33m x 2.67m), Dining Room 18'9 x 11'8 (5.72m x 3.56m), Reception Room 29' x 11'6 (8.84m x 3.51m), Conservatory 23'8 x 11'11 (7.21m x 3.63m), Garden 60' (18.28m), First Floor Hallway 11'8 x 10'10 (3.56m x 3.30m), Bedroom 1 26' x 11'6 (7.93m x 3.51m), Bedroom 2 19'3 x 10'10 (5.87m x 3.30m), Dressing Room 8'9 x 5'8 (2.67m x 1.73m), Bedroom 3 11'7 x 8'10 (3.53m x 2.69m), Bedroom 4 12'10 x 9'6 (3.91m x 2.90m), Bedroom 5 10'7 x 9'6 (3.23m x 2.87m) To check broadband and mobile phone coverage please visit Ofcom here ofcom.org.uk/phones-telecoms-and-internet/advice-for-consumers/advice/ofcom-checker

Talk to Christopher Forde from Langford Russell (Estate agents in Chislehurst)

Chislehurst Area Guide

Explore the areas we serve – from parks, entertainment and transport links, to shopping, eating and drinking.

Dive into property knowledge

Visit the AcornIntel knowledge-base, our library of articles to help you make sense of all things property, or send your questions to our panel of property experts.

Get your property valued

Looking to sell or let your property? Get a free property valuation from one of our experts.

Top