The Acorn Group is London’s largest multi-brand estate agency. We offer our clients the best brands, with the best people, in the best locations.

 

Close

£5,500 per month

Detached House to rent - Chelsfield Hill, Orpington, BR6

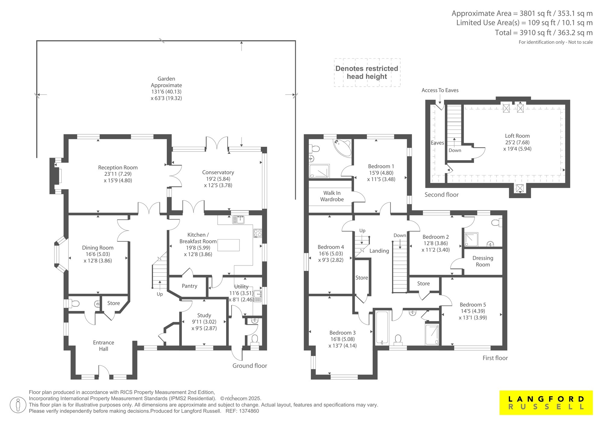
The ground floor comprises a large entrance hall, with a downstairs W/C with two storage cupboards and study at the front of the property. Followed by two large reception rooms and a fully fitted kitchen/diner with a conservatory perfect for entertaining. Another W/C and utility room completes the ground floor.

The first floor has five double bedrooms, with the master and second bedrooms completed with en suites and a walk-in wardrobe. A large three-piece family bathroom completes the first floor.

The final room located on the second floor, can be used as a sixth bedroom, entertaining room, or a study. The room is also fitted with eaves which is perfect for storage.

The property also benefits from a double garage, which is opened by a fob. The garage is designed perfectly to fit two cars. The property is secure and gated with a vast driveway.

Chelsfield Station and Knockholt Station are within proximity to the property and being close to great schools within the Orpington Area.

Local Authority Bromley Tax Band H
Energy Efficiency Rating C

Garden Approx 131'6 (40.13) x 63'3 (19.32)
Reception Room 21'11 (7.29) x 15'9 (4.80)
Dining Room 16'6 (5.03) x 12'8 (3.86)
Study 9'11 (3.02) x 9'5 (2.87)
Utility Room 11'6 (3.51) x 8'1 (2.46)
Kitchen/Breakfast Room 19'8 (5.99) x 12'8( 3.86)
Conservatory 19'2 (5.84) x 12'5 (3.78)
Bedroom One 15'9 (4.80) x 11'5 (3.48)
Bedroom Four 16'6 (5.03) x 9'3 (2.82)
Bedroom Three16'8 (5.08) x 13'7 (4.14)
Bedroom Two 12'8 (3.86) x 11'2 (3.40)
Bedroom Five 14'5 (4.39) x 13'1 (3.99)

Broadband and Mobile Phone: Ofcom suggest that Ultrafast broadband is available to this property and 5g Mobile signal may be available on some networks. Information regarding broadband options and phone signal can be obtained from the Ofcom broadband and mobile coverage checker. To check broadband and mobile phone coverage please visit Ofcom here ofcom.org.uk/phones-telecoms-and-internet/advice-for-consumers/advice/ofcom-checker

Talk to Christopher Forde from Langford Russell (Estate agents in Locksbottom)

Locksbottom Area Guide

Explore the areas we serve – from parks, entertainment and transport links, to shopping, eating and drinking.

Dive into property knowledge

Visit the AcornIntel knowledge-base, our library of articles to help you make sense of all things property, or send your questions to our panel of property experts.

Get your property valued

Looking to sell or let your property? Get a free property valuation from one of our experts.

Top