The Acorn Group is London’s largest multi-brand estate agency. We offer our clients the best brands, with the best people, in the best locations.

 

Close

Guide price £425,000 freehold

Town House - Dryhill Road, DA17

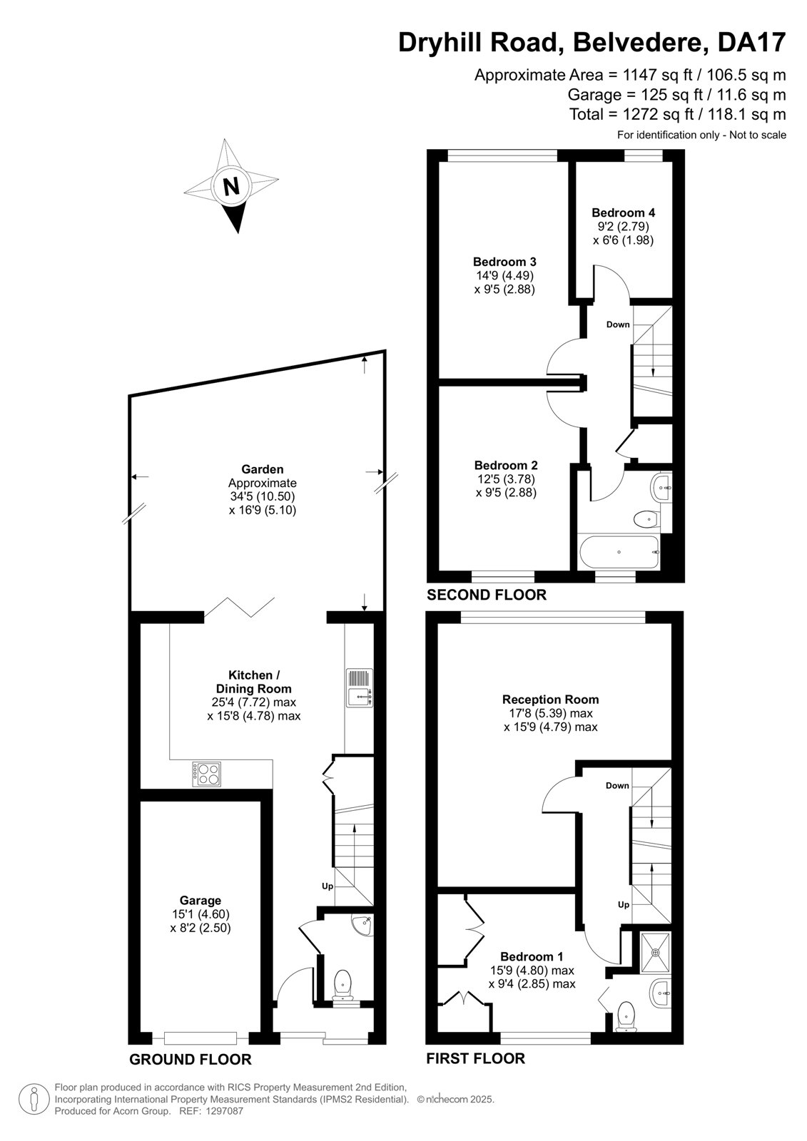
This family home is located within a quiet residential road in Belvedere near Nuxley Village! The accommodation offers an impressive 1147sqft of floorspace split over three floors and an integral garage with potential to create more space internally.

As you enter, the ground floor has access to a handy w/c with access to the garage on the opposite side followed by a broad kitchen space. The garage could be converted and knocked through into the kitchen space to create a huge entertaining area (STPP) to have an open plan living arrangement which leads directly out to the garden. You’ll be pleased to know the garden is South-facing and a suntrap throughout the day! The garden is easy to maintain and an ideal space for garden furniture being mostly paved with some garden beds.

The first floor comprises a huge L-shaped reception room with plenty of space for a dining table/area. There is also the master bedroom which benefits from an en-suite, The top floor has a traditional layout with access into three double bedrooms all generous size as well as the main family bathroom. The bathroom has a stylish and modern design with white gloss units complimented with stone-effect tiling across the walls and floor.
This home oozes with natural light throughout and is well maintained ready for new owners to move straight into whilst still having the opportunity to put your own stamp on it overtime. Additional benefit includes double glazing, gas central heating throughout and off-street parking.

Dryhill Road is superbly located with plenty of local amenities nearby and a great choice of schools! Nuxley Village nearby offers a range of shops which includes coffee shops, cafes, boutique stores, takeaways, and a local Co-op. There are some lovely parks to enjoy nearby with Belvedere Beach & Recreation Grounds, Frank’s park or Lesnes Abbey Woods which host events and has interesting history of being an important site for early Tertiary fossils. For commuters, you can hop on the 422 along Bedonwell Road directly to Bexleyheath Station which operates the Southeastern Line into London Bridge, Charing Cross or London Victoria. Alternatively, you can also get on the 469 bus along Woolwich Road (nearby) heading directly to Abbey Wood Station with similar options and more with the new Elizabeth Line which has even more options into the city, fast and frequently!

We expect this house to be a popular choice, please give us a call to arrange a viewing or ask any questions.

Talk to Arikson Franco from Acorn (Estate agents in Belvedere)

 

Use our calculator to work out potential mortgage repayments and stamp duty costs. Please note, these calculators are for general interest only and must not be relied on. Speak to our Mortgage Scout team for further information and advice. 

Powered by

Total Mortgage

£

Estimated Monthly Mortgage Payment

£

  • Powered by

Belvedere Area Guide

Explore the areas we serve – from parks, entertainment and transport links, to shopping, eating and drinking.

Dive into property knowledge

Visit the AcornIntel knowledge-base, our library of articles to help you make sense of all things property, or send your questions to our panel of property experts.

Get your property valued

Looking to sell or let your property? Get a free property valuation from one of our experts.

Top