The Acorn Group is London’s largest multi-brand estate agency. We offer our clients the best brands, with the best people, in the best locations.

 

Close

Offers in the Region of £450,000 freehold

Terraced House - Upper Holly Hill Road, DA17

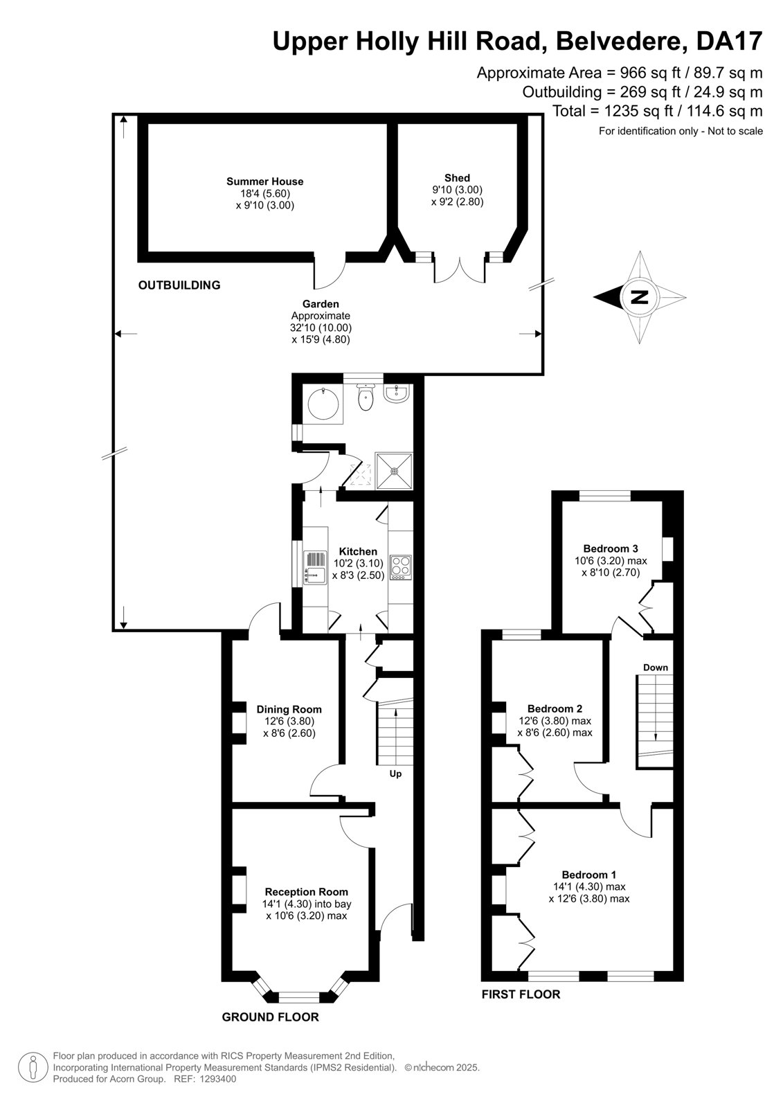
This charming period home is situated within a quiet residential road in Belvedere near Nuxley Village, the accommodation offers an impressive 966sqft of floorspace internally. As you enter, you’ll find the front traditional reception room which is well presented with original floorboards, coving, plantation shutters and a beautiful cast iron fireplace. Next along is the separate dining room which has the potential to be knocked through into the reception to create a through longue or perhaps connected as part of a side-extension into the kitchen (STPP). You’ll notice the dining room retains most of the original features with another fireplace, coving and floorboards flowing throughout. The smart kitchen has a wooden design with integrated appliances and plenty of worktop space. At the back is the stylish bathroom suite with a four-piece set-up which has a LED mirror cabinet, Japanese tub and enclosed shower unit complimented with tiling across the walls and floor.

The garden has been designed with easy maintenance in mind being completed paved, idea for garden furniture and a suntrap throughout the day! You’ll find a summerhouse at the back fitted with electrics and a bespoke matching shed alongside for extra storage. Upstairs offers access to three double bedrooms all benefiting from built-in storage and fitted with fireplaces upkeeping with the character of this home; The master bedroom is very impressive being the whole width of the house. The second and third bedroom are quite equal in size, both comfortably fitting double beds. This home also has further potential to be extended into the loft (STPP) to create even more space internally. Additional benefits include gas central heating, double glazing, ample storage, underfloor heating in the kitchen & bathroom and free parking along the road.

Upper Holly Hill Road is superbly located with plenty of local amenities nearby and a great choice of schools! Nuxley Village nearby offers a range of shops which includes coffee shops, cafes, boutique stores, takeaways, and a local Co-op. There is also a great choice of parks to enjoy nearby with Belvedere Beach & Recreation Grounds, Frank’s Park or Lesnes Abbey Woods which host events and has interesting history of being an important site for early Tertiary fossils. For commuters, Belvedere is 0.8m walk which operates the Southeastern Line into London Bridge and is one stop away from Abbey Wood with the new Elizabeth Line which has even more options into the city, fast and frequently!

We expect this house to be a popular choice, please give us a call to arrange a viewing or ask any questions.

London Borough of Bexley - Council Tax Band - C
Energy Efficiency Rating - E

Talk to Arikson Franco from Acorn (Estate agents in Belvedere)

 

Use our calculator to work out potential mortgage repayments and stamp duty costs. Please note, these calculators are for general interest only and must not be relied on. Speak to our Mortgage Scout team for further information and advice. 

Powered by

Total Mortgage

£

Estimated Monthly Mortgage Payment

£

  • Powered by

Belvedere Area Guide

Explore the areas we serve – from parks, entertainment and transport links, to shopping, eating and drinking.

Dive into property knowledge

Visit the AcornIntel knowledge-base, our library of articles to help you make sense of all things property, or send your questions to our panel of property experts.

Get your property valued

Looking to sell or let your property? Get a free property valuation from one of our experts.

Top