The Acorn Group is London’s largest multi-brand estate agency. We offer our clients the best brands, with the best people, in the best locations.

 

Close

OIEO £450,000 freehold

Terraced House - Ravenscar Road, BR1

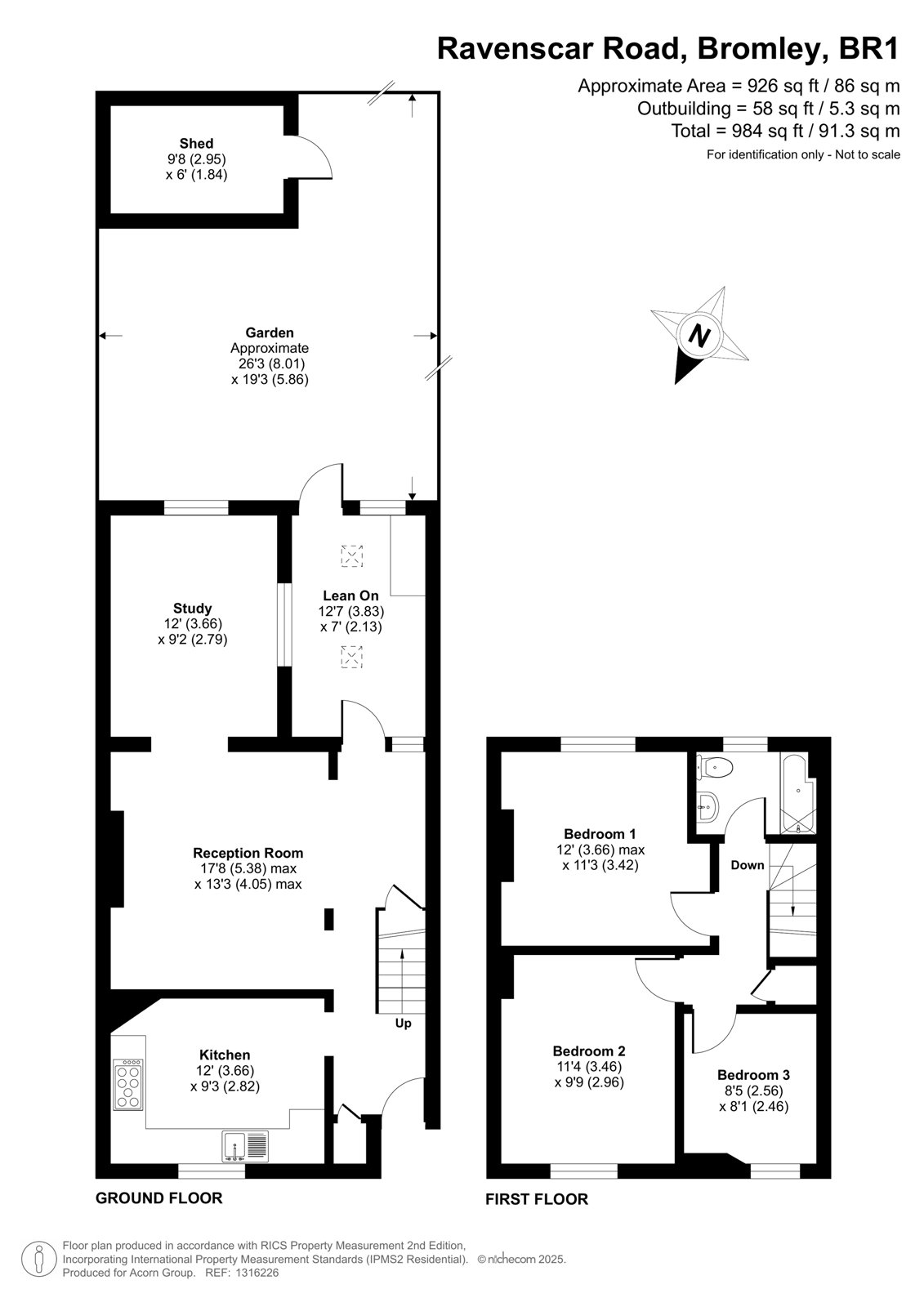
Acorn are pleased to present this well-maintained and extended three-bedroom terraced house offers a perfect blend of modern comfort and practical living space – ideal for families, first-time buyers, or investors alike.

The ground floor offers generous and versatile living space, including a sleek modern fitted kitchen, a bright front reception room and a thoughtfully designed rear extension– ideal for entertaining or relaxing. You also have a lean too, which is great for extra storage in the house which then leads out to the garden.

Upstairs, you'll find three bedrooms, including two doubles and a well-sized single, all serviced by a modern family three-piece bathroom.

To the rear, you'll find a private, south-facing garden that's been attractively paved—perfect and low-maintenance, along with a spacious garage providing excellent storage and convenient off-street parking to the front of the house.

Situated in a sought-after area of Grove Park, the property benefits from excellent local amenities, good schools, and superb transport links including Grove Park Station (Zone 4), offering direct services into London Bridge, Charing Cross, and Cannon Street.

Freehold
Council Tax Band: C

Talk to Jake Blackman from Acorn (Estate agents in Grove Park)

 

Use our calculator to work out potential mortgage repayments and stamp duty costs. Please note, these calculators are for general interest only and must not be relied on. Speak to our Mortgage Scout team for further information and advice. 

Powered by

Total Mortgage

£

Estimated Monthly Mortgage Payment

£

  • Powered by

Grove Park Area Guide

Explore the areas we serve – from parks, entertainment and transport links, to shopping, eating and drinking.

Dive into property knowledge

Visit the AcornIntel knowledge-base, our library of articles to help you make sense of all things property, or send your questions to our panel of property experts.

Get your property valued

Looking to sell or let your property? Get a free property valuation from one of our experts.

Top