The Acorn Group is London’s largest multi-brand estate agency. We offer our clients the best brands, with the best people, in the best locations.

 

Close

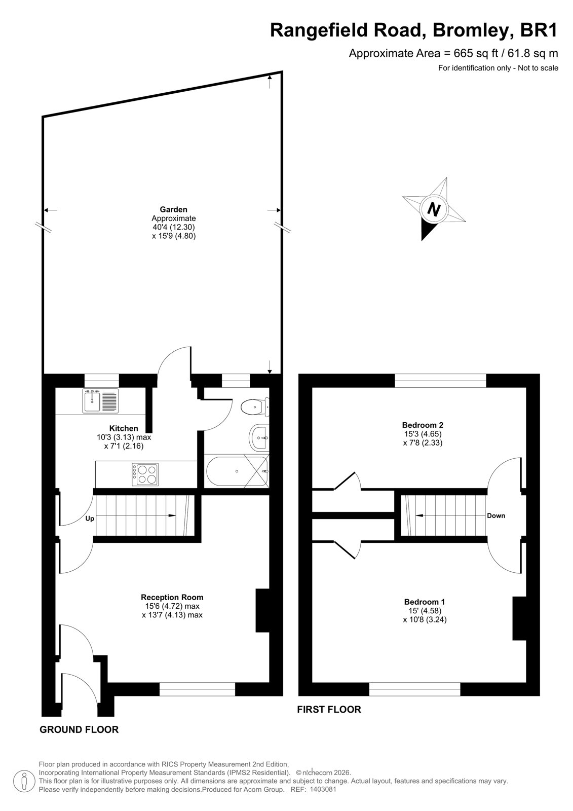
Asking price £395,000 freehold

Terraced House for sale - Rangefield Road, BR1

Acorn are delighted to welcome to the market this bright mid terraced freehold house, close to ample transport links and amenities.

Offered to the market chain free, the ground floor accommodation comprises large front lounge, bathroom, and fitted kitchen with ample units. The first floor comprises two large double bedrooms, both with fitted storage.

Externally, there is a paved front garden which can easily be used as off street parking subject to planning permissions, and a good size rear garden.

Within a mile of Grove Park Station, the house has a number of amenities and good schools close by.

Tenure Freehold
Local Authority Lewisham Council Tax Band C
Energy Efficiency Rating C

Talk to Jake Blackman from Acorn (Estate agents in Grove Park)

 

Use our calculator to work out potential mortgage repayments and stamp duty costs. Please note, these calculators are for general interest only and must not be relied on. Speak to our Mortgage Scout team for further information and advice. 

Powered by

Total Mortgage

£

Estimated Monthly Mortgage Payment

£

  • Powered by

Grove Park Area Guide

Explore the areas we serve – from parks, entertainment and transport links, to shopping, eating and drinking.

Dive into property knowledge

Visit the AcornIntel knowledge-base, our library of articles to help you make sense of all things property, or send your questions to our panel of property experts.

Get your property valued

Looking to sell or let your property? Get a free property valuation from one of our experts.

Top