The Acorn Group is London’s largest multi-brand estate agency. We offer our clients the best brands, with the best people, in the best locations.

 

Close

Asking price £750,000 freehold

Terraced House for sale - Plumstead Common Road, London, SE18

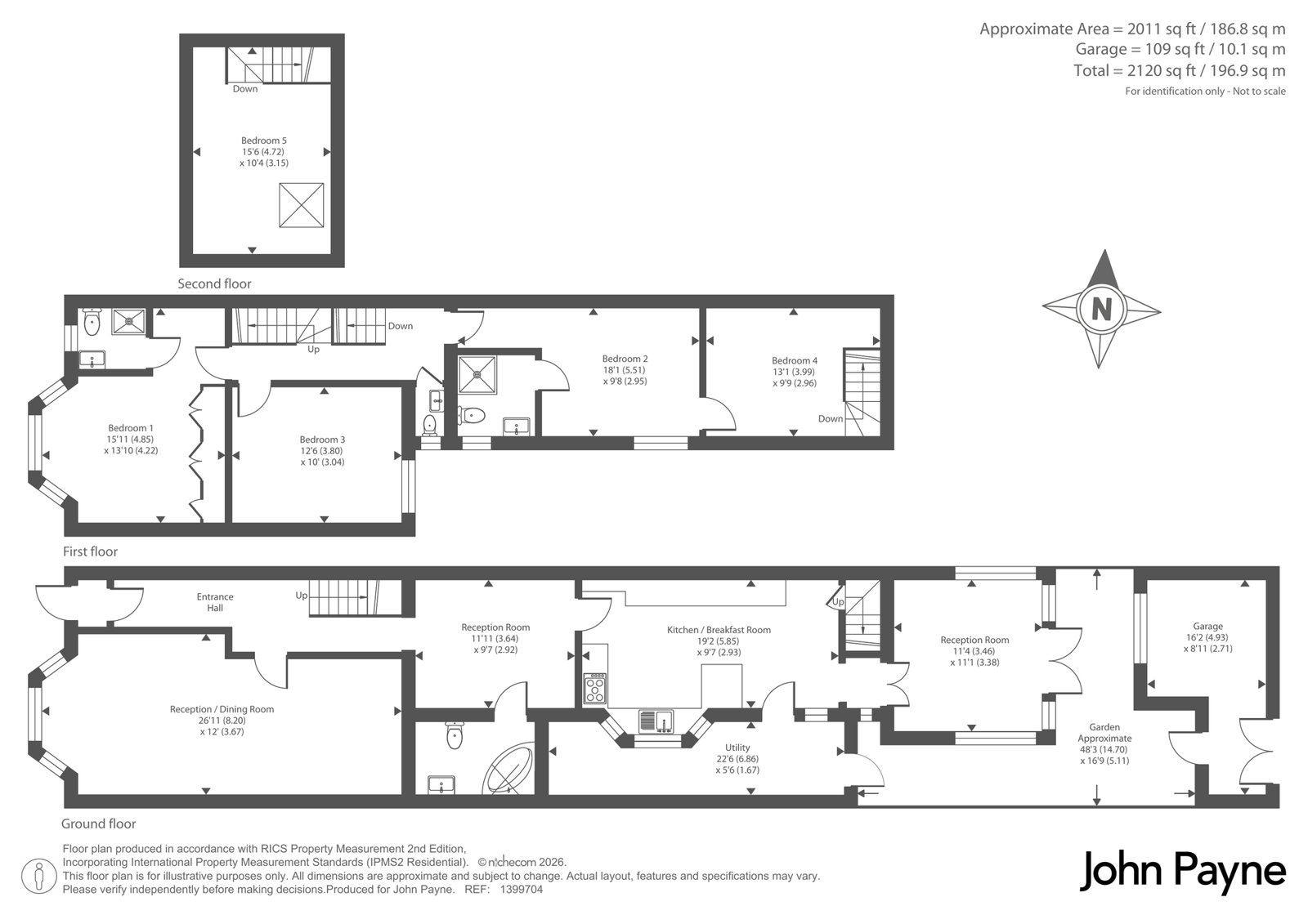
A larger than average and extended, four bedroom, three reception room, double bay, period home in one of Plumstead's prime locations, directly over looking Plumstead Common and benefitting off street parking. Conveniently located for local shops, schools, bus routes and access into Woolwich for mainline station DLR and Elizabeth Line (Crossrail).

On entering the property you are welcomed to a spacious 26ft Through Lounge with wood laminate flooring, original coving, original ceiling roses and double glazed bay window to front. To the rear of the property you will find a further reception room with wood laminate flooring and doors to the kitchen and ground floor bathroom. The Kitchen/Breakfast room is 19ft and fitted with a range of modern wall and base units with complimentary work surfaces. Range oven with five ring gas hob and filter hood. Space for further appliances. Off of the kitchen you will find a utility room plumbed for washing machine and also a further reception room overlooking the rear garden. From the kitchen there is also a staircase leading to the upstairs and bedroom four. The ground floor bathroom is fitted with a three piece suite comprising a corner bath, wc and wash hand basin.

To the first floor you will find four double bedrooms. The master bedroom with built in wardrobe space, double glazed bay window to front overlooking Plumstead common and an En-suite Shower room. The second bedroom with built in wardrobes and also with an en-suite shower room. Door also leading to bedroom four. The third bedroom has wood laminate flooring and double glazed window. Bedroom four has wood laminate flooring velux window and stairs to ground floor. Off of the landing you wll find a WC and also staircase leading to the loft room/bedroom 5 with velux window.

Externally there is a private rear garden with paved patio along with a 16ft garage/outbuilding to the rear. To the front there is a driveway providing off street parking. Currently with an electrical charging point.

Talk to William Chidley from John Payne (Estate agents in Plumstead Common)

 

Use our calculator to work out potential mortgage repayments and stamp duty costs. Please note, these calculators are for general interest only and must not be relied on. Speak to our Mortgage Scout team for further information and advice. 

Powered by

Total Mortgage

£

Estimated Monthly Mortgage Payment

£

  • Powered by

Area Guide

Explore the areas we serve – from parks, entertainment and transport links, to shopping, eating and drinking.

Dive into property knowledge

Visit the AcornIntel knowledge-base, our library of articles to help you make sense of all things property, or send your questions to our panel of property experts.

Get your property valued

Looking to sell or let your property? Get a free property valuation from one of our experts.

Top