The Acorn Group is London’s largest multi-brand estate agency. We offer our clients the best brands, with the best people, in the best locations.

 

Close

OIEO £675,000 freehold

Terraced House - Minard Road, SE6

Acorn are delighted to welcome to the market this spacious and well presented Period family home, set on a highly sought after road on the Catford/Hither Green borders.

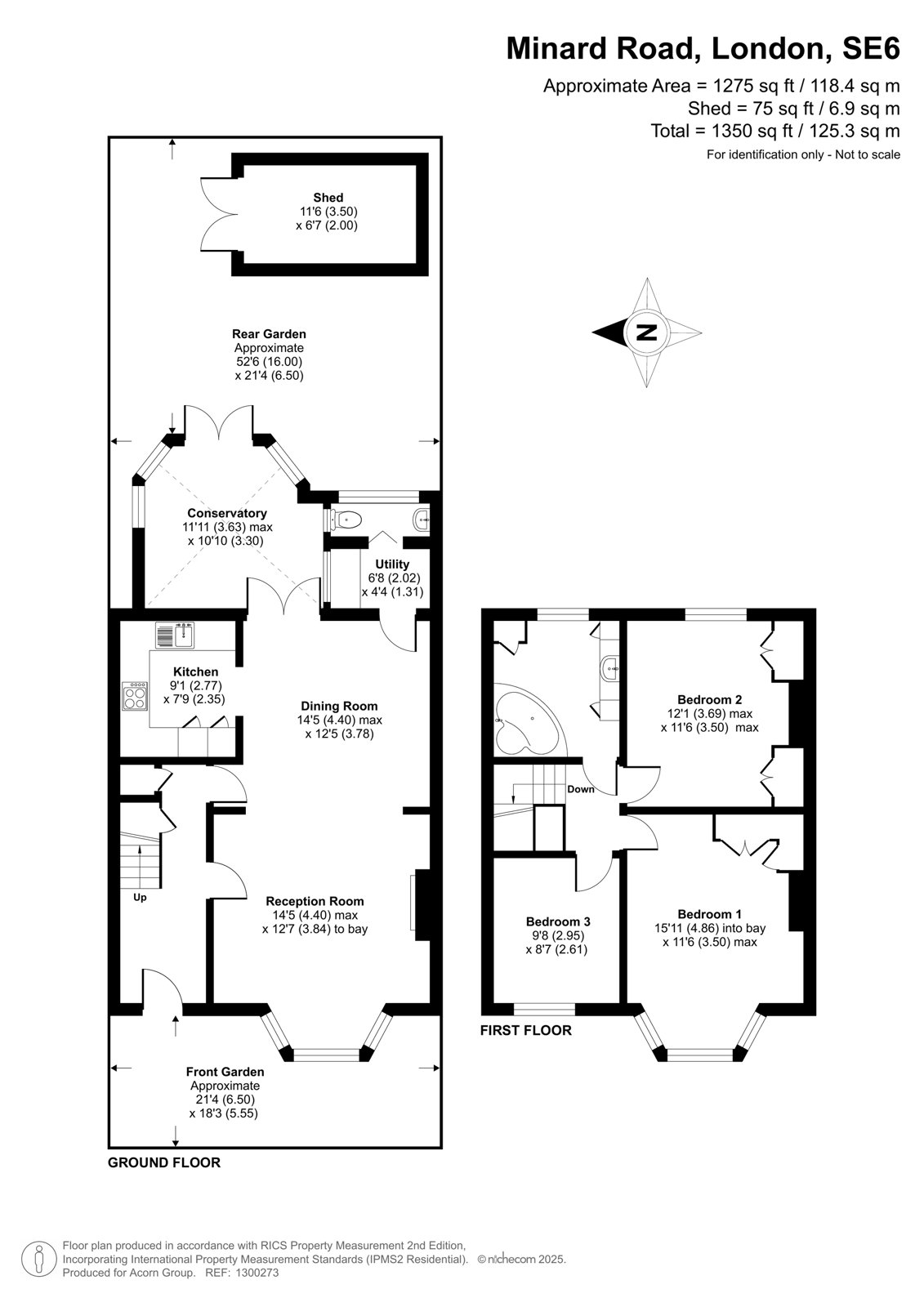
Offered to the market in good order, the ground floor accommodation comprises bright entrance hall, 29ft through lounge diner with front bay window, fitted kitchen with ample appliances, utility room with separate WC, and a large rear conservatory overlooking the garden.

The first floor boasts three double bedrooms and family bathroom with corner tub.

Externally the house offers off street parking by way of front drive and a large rear garden with patio and lawn areas.

Talk to Jake Blackman from Acorn (Estate agents in Catford)

 

Use our calculator to work out potential mortgage repayments and stamp duty costs. Please note, these calculators are for general interest only and must not be relied on. Speak to our Mortgage Scout team for further information and advice. 

Powered by

Total Mortgage

£

Estimated Monthly Mortgage Payment

£

  • Powered by

Catford Area Guide

Explore the areas we serve – from parks, entertainment and transport links, to shopping, eating and drinking.

Dive into property knowledge

Visit the AcornIntel knowledge-base, our library of articles to help you make sense of all things property, or send your questions to our panel of property experts.

Get your property valued

Looking to sell or let your property? Get a free property valuation from one of our experts.

Top