The Acorn Group is London’s largest multi-brand estate agency. We offer our clients the best brands, with the best people, in the best locations.

 

Close

Guide price £585,000 freehold

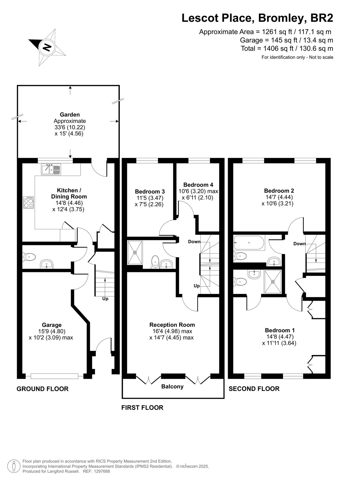
Terraced House for sale - Lescot Place, BR2

** GUIDE PRICE £585,000 - £600,000 **

Offered to the market is this four-bedroom, three-bathroom, house located in the popular Trinity Village development in Bromley close to transport links and local shops.

Built to a high specification, the impeccable and generous accommodation is arranged over three levels comprising: open planned kitchen/dining room with built in appliances and WC on the ground floor, along with access to the rear garden. There is also a garage which can be converted into an additional room (SSTP). The first floor has two double bedrooms, and a shower room, separate reception room with a roof terrace. On the second floor there’s a separate family bathroom, two equal size double bedrooms, the master benefits from having a en-suite shower room. The loft benefits from being boarded as it’s got easy access for storage space.

Trinity Village is perfectly situated to provide access to Bromley town centre with its excellent array of shops, transport links and areas of nearby green parkland. Bromley South Station provides frequent and fast trains to London Victoria/Blackfriars making this location perfect for commuters and first time buyers alike.

Tenure - Freehold
London Borough of Bromley - Council Tax Band - F
Energy Efficiency Rating - B

Talk to Jake Fahey from Langford Russell (Estate agents in Bromley)

 

Use our calculator to work out potential mortgage repayments and stamp duty costs. Please note, these calculators are for general interest only and must not be relied on. Speak to our Mortgage Scout team for further information and advice. 

Powered by

Total Mortgage

£

Estimated Monthly Mortgage Payment

£

  • Powered by

Bromley Area Guide

Explore the areas we serve – from parks, entertainment and transport links, to shopping, eating and drinking.

Dive into property knowledge

Visit the AcornIntel knowledge-base, our library of articles to help you make sense of all things property, or send your questions to our panel of property experts.

Get your property valued

Looking to sell or let your property? Get a free property valuation from one of our experts.

Top