The Acorn Group is London’s largest multi-brand estate agency. We offer our clients the best brands, with the best people, in the best locations.

 

Close

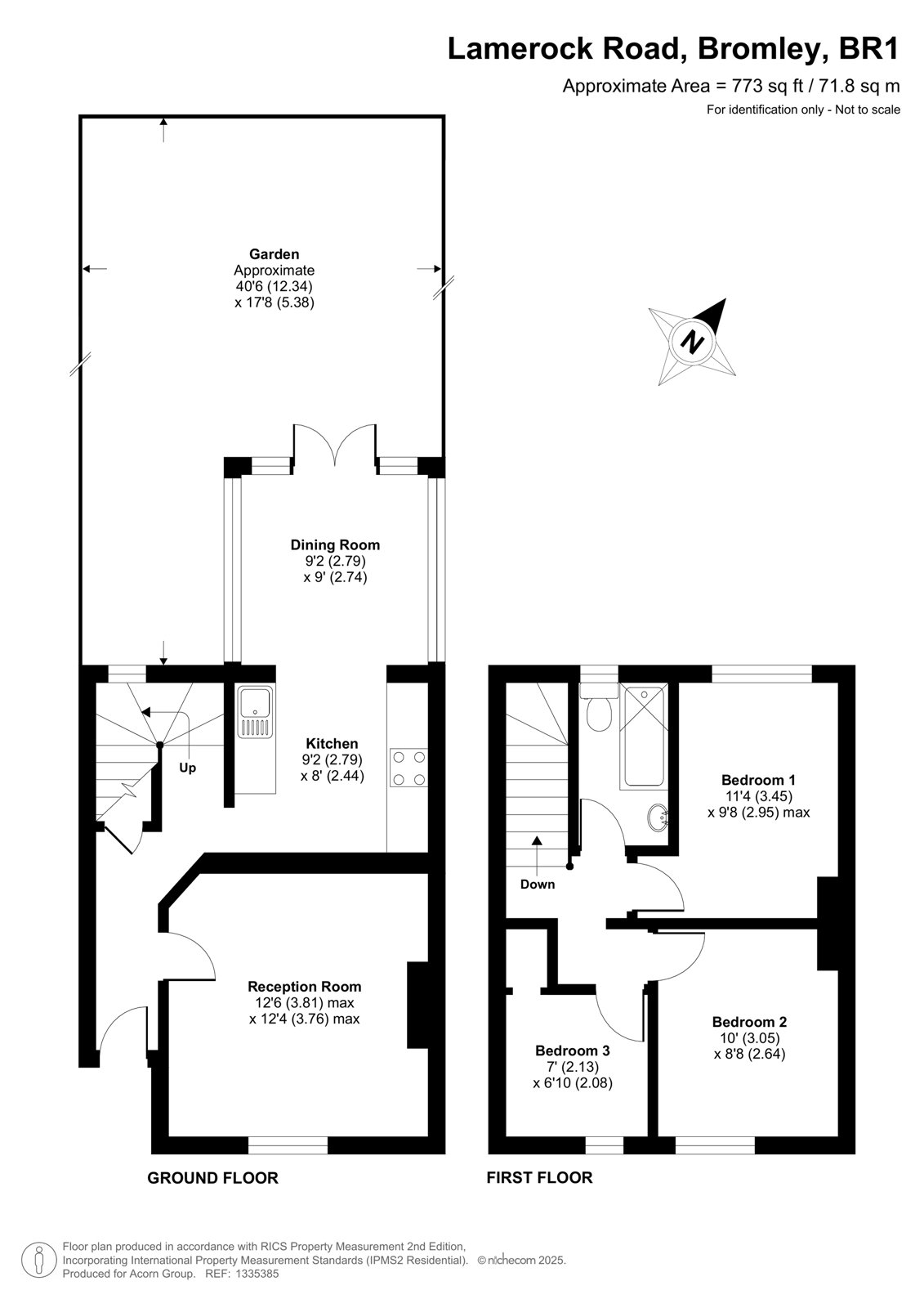
Asking price £430,000 freehold

Terraced House - Lamerock Road, BR1

Acorn are pleased to welcome to the market this well maintained three bedroom mid-terrace home located in the ever popular area of Grove Park.

This lovely home offers the perfect combination of space, comfort, and potential. The ground floor comprises of a good-sized reception room filled with natural light, a sperate fitted modern kitchen leading through to the dining room which has been extended. On first floor you will find two double bedrooms and the third bedroom which is currently being used as a walk in wardrobe but can be used as a child’s room/study.

Externally, the property enjoys a well-kept rear garden featuring a paved patio—perfect for outdoor entertaining—and freshly laid artificial lawn, with a storage shed at the far end. To the front, the home also benefits from off-street parking with a driveway accommodating two cars.
The location is very ideal for amenities and transport as the centre of Grove Park is just a 0.6 mile walk away. Grove Park Station is one of the more convenient locally with regular and fast links in to London Bridge (13 mins), Waterloo East (19 mins), Cannon Street (21 mins) and Charing Cross (25 mins).

Perfect for families or first-time buyers, this well-maintained property offers a blend of modern convenience and traditional appeal!

Tenure – Freehold
Energy Efficiency Rating C
Council Tax Band C

Talk to Jake Blackman from Acorn (Estate agents in Grove Park)

 

Use our calculator to work out potential mortgage repayments and stamp duty costs. Please note, these calculators are for general interest only and must not be relied on. Speak to our Mortgage Scout team for further information and advice. 

Powered by

Total Mortgage

£

Estimated Monthly Mortgage Payment

£

  • Powered by

Grove Park Area Guide

Explore the areas we serve – from parks, entertainment and transport links, to shopping, eating and drinking.

Dive into property knowledge

Visit the AcornIntel knowledge-base, our library of articles to help you make sense of all things property, or send your questions to our panel of property experts.

Get your property valued

Looking to sell or let your property? Get a free property valuation from one of our experts.

Top