The Acorn Group is London’s largest multi-brand estate agency. We offer our clients the best brands, with the best people, in the best locations.

 

Close

Asking price £2,800,000 freehold

Terraced House for sale - Gloucester Circus, SE10

We are truly delighted to present for sale this beautifully restored and exceptionally spacious Grade II listed Georgian residence, an elegant four-bedroom family home of outstanding character and distinction. Originally designed in the 1790s by the renowned architect Michael Searles, this remarkable property forms part of an iconic sweeping crescent—one of Greenwich’s architectural landmarks—gracefully overlooking a tranquil, private residents’ garden from its distinguished front elevation.


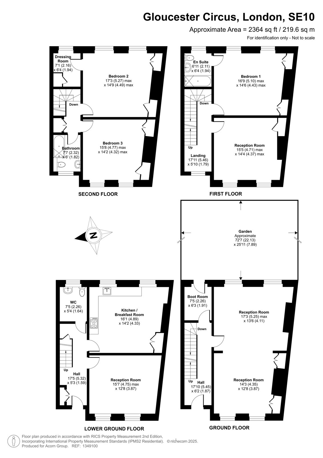
Arranged across four generous floors, the home seamlessly blends period charm with modern family living. The property retains a wealth of original features, including grand sash windows, intricate cornicing, and striking feature fireplaces in most rooms. The principal through-lounge, bathed in natural light, offers a magnificent space for both relaxed living and formal entertaining.

The lower ground floor has been thoughtfully designed to serve as the heart of the home, featuring a large, inviting eat-in kitchen perfectly suited for family gatherings, complemented by a separate utility room with WC. A further reception room on this level provides an ideal formal dining area or versatile additional living space.

The upper floors house four impressively proportioned bedrooms, each exuding elegance and light. The principal suite is particularly noteworthy, enjoying the luxury of a private en suite bathroom. A well-appointed family bathroom is situated on the second floor, designed to accommodate the needs of modern living while maintaining the home’s period refinement.

Externally, the property boasts a beautifully maintained 70-foot, east-facing rear sunny garden, a rare and tranquil retreat offering mature planting, privacy, and ample space for outdoor entertaining.

Set within one of the most coveted and exclusive locations in West Greenwich, Gloucester Circus offers its residents private access to exquisitely landscaped gardens, plentiful residents’ parking, and the security of a no-through road. The setting combines peaceful seclusion with immediate proximity to the vibrant heart of Greenwich.

Just moments away lie the open expanses of Greenwich Park and the charming amenities of Royal Hill, including artisan shops, cafés, and delicatessens. The cultural delights of Greenwich Picturehouse, Greenwich Theatre, and the bustling Greenwich Market are all within easy reach, along with a wide array of restaurants, pubs, and riverside bars.

For commuters, the property is ideally positioned with Greenwich DLR, Cutty Sark DLR, Greenwich Mainline Station, and the Thames Clipper all just a short stroll away, ensuring swift and convenient access into The City, Canary Wharf, and the West End.

This is a rare opportunity to acquire a truly distinguished Georgian home, combining architectural significance, historic charm, and modern comfort, all within one of London’s most desirable neighbourhoods.

The Royal Borough of Greenwich - Council Tax Band - H
Energy Efficiency Rating - D

Talk to Matthew Wright from John Payne (Estate agents in Greenwich West)

 

Use our calculator to work out potential mortgage repayments and stamp duty costs. Please note, these calculators are for general interest only and must not be relied on. Speak to our Mortgage Scout team for further information and advice. 

Powered by

Total Mortgage

£

Estimated Monthly Mortgage Payment

£

  • Powered by

Area Guide

Explore the areas we serve – from parks, entertainment and transport links, to shopping, eating and drinking.

Dive into property knowledge

Visit the AcornIntel knowledge-base, our library of articles to help you make sense of all things property, or send your questions to our panel of property experts.

Get your property valued

Looking to sell or let your property? Get a free property valuation from one of our experts.

Top