The Acorn Group is London’s largest multi-brand estate agency. We offer our clients the best brands, with the best people, in the best locations.

 

Close

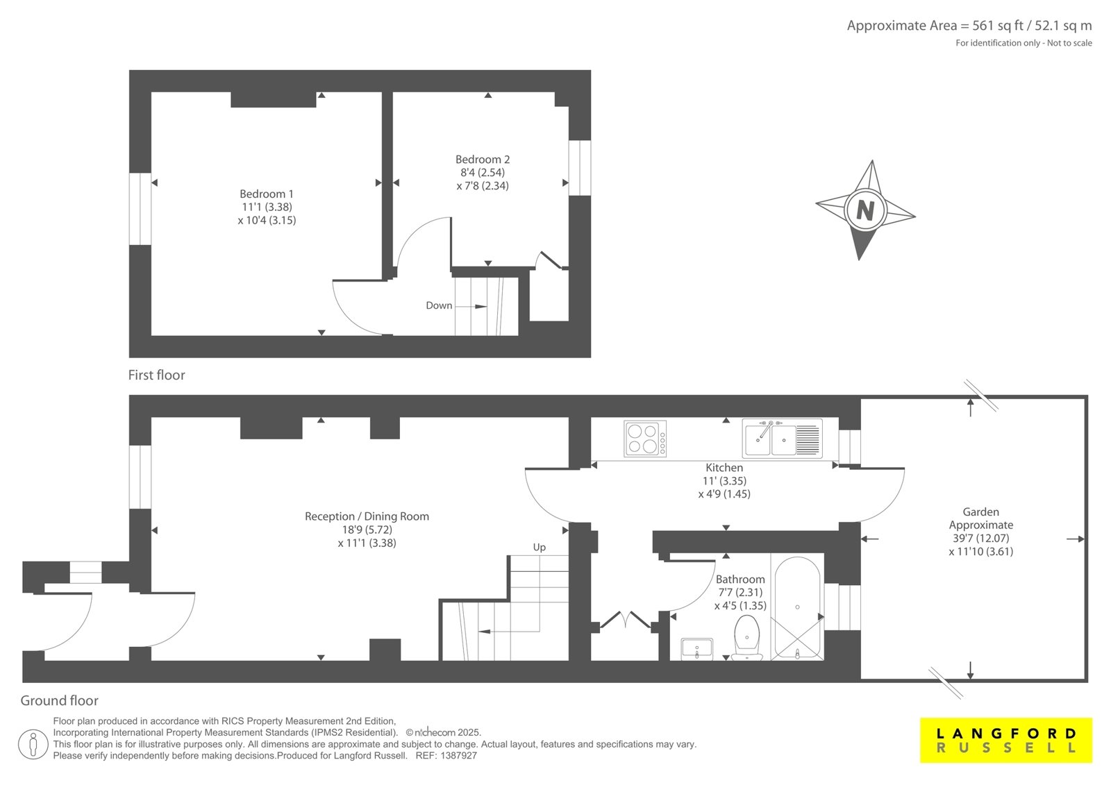
Asking price £415,000 freehold

Terraced House for sale - Eden Road, BR3

Nestled on one of Beckenham’s most sought-after residential roads, this charming two bedroom Victorian cottage seamlessly blends period character with stylish modern touches. Immaculately presented throughout, the home offers a warm and inviting atmosphere, featuring elegant original details complemented by contemporary finishes.

Inside, you’ll find a beautifully light and airy living space, a thoughtfully designed kitchen with modern fittings, and well-proportioned bedrooms that provide comfort and tranquillity. The property also benefits from a private garden—perfect for outdoor dining, relaxation, or cultivating a touch of greenery in the heart of the suburbs.

Located within a residential road with easy access from Beckenham’s vibrant high street, local cafés, independent shops, and excellent transport links, this cottage offers convenience as well as charm. With no onward chain, it presents an ideal opportunity for buyers seeking a smooth and stress-free purchase.

This is a rare chance to secure a picture-perfect Victorian cottage in a highly desirable location—ready to move into and enjoy from day one.

* Charming Victorian façade with modern interior upgrades
* Bright and airy living space with tasteful décor
* Contemporary kitchen with quality fittings and appliances
* Well-proportioned bedrooms offering comfort and privacy
* Stylish bathroom with modern finishes
* Private rear garden ideal for relaxing or entertaining
* Offered chain-free for a smooth, hassle-free purchase
* Street parking

Freehold | Energy Efficiency Rating C | London Borough Of Bromley Tax Band C

Talk to Eddie Youds from Langford Russell (Estate agents in Beckenham)

 

Use our calculator to work out potential mortgage repayments and stamp duty costs. Please note, these calculators are for general interest only and must not be relied on. Speak to our Mortgage Scout team for further information and advice. 

Powered by

Total Mortgage

£

Estimated Monthly Mortgage Payment

£

  • Powered by

Beckenham Area Guide

Explore the areas we serve – from parks, entertainment and transport links, to shopping, eating and drinking.

Dive into property knowledge

Visit the AcornIntel knowledge-base, our library of articles to help you make sense of all things property, or send your questions to our panel of property experts.

Get your property valued

Looking to sell or let your property? Get a free property valuation from one of our experts.

Top