The Acorn Group is London’s largest multi-brand estate agency. We offer our clients the best brands, with the best people, in the best locations.

 

Close

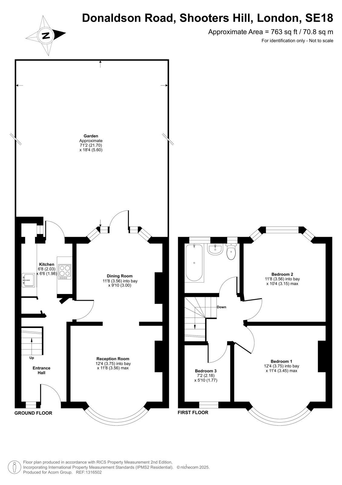
Guide price £475,000 freehold

Terraced House - Donaldson Road, SE18

*GUIDE PRICE £475,000-£500,000* A well presented three bedroom 1930's style family home located on the Shooters Hill Slopes. Much improved by the current vendors, we recommend internal viewings to appreciate the accommodation on offer.

On entering the property you are welcomed to the spacious entrance hall with understairs storage and carpet as fitted. There is an 24ft through lounge/dining room with picture rail, feature radiators, solid wood flooring, double glazed bay window to the front and double glazed door leading to the rear garden. The kitchen is fitted with a range of wall and base units with complimentary work surfaces. Integrated oven, hob and filter hood. Space for further appliances and a double glazed stable door leading to the rear garden.

To the first floor you will find the master bedroom, 12ft x 11ft, has carpet as fitted and a double glazed bay window to the front. Bedroom two is 11ft x 10ft with carpet as fitted and double glazed bay window overlooking the garden. Bedroom three is 7ft x 5ft with carpet as fitted, picture rail, high level storage and double glazed window to the front. The family bathroom is fitted with a white three piece suite comprising a low level WC, pedestal wash hand basin and a panelled bath with shower attachment.

Externally there is a 70ft rear garden with decked patio area, lawn area, flower borders, raised decked patio to the rear and shed to remain. To the front there is a driveway providing off street parking for up to two cars.

The Royal Borough of Greenwich - Council Tax Band - C
Energy Efficiency Rating - D

Talk to William Chidley from John Payne (Estate agents in Plumstead Common)

 

Use our calculator to work out potential mortgage repayments and stamp duty costs. Please note, these calculators are for general interest only and must not be relied on. Speak to our Mortgage Scout team for further information and advice. 

Powered by

Total Mortgage

£

Estimated Monthly Mortgage Payment

£

  • Powered by

Area Guide

Explore the areas we serve – from parks, entertainment and transport links, to shopping, eating and drinking.

Dive into property knowledge

Visit the AcornIntel knowledge-base, our library of articles to help you make sense of all things property, or send your questions to our panel of property experts.

Get your property valued

Looking to sell or let your property? Get a free property valuation from one of our experts.

Top