The Acorn Group is London’s largest multi-brand estate agency. We offer our clients the best brands, with the best people, in the best locations.

 

Close

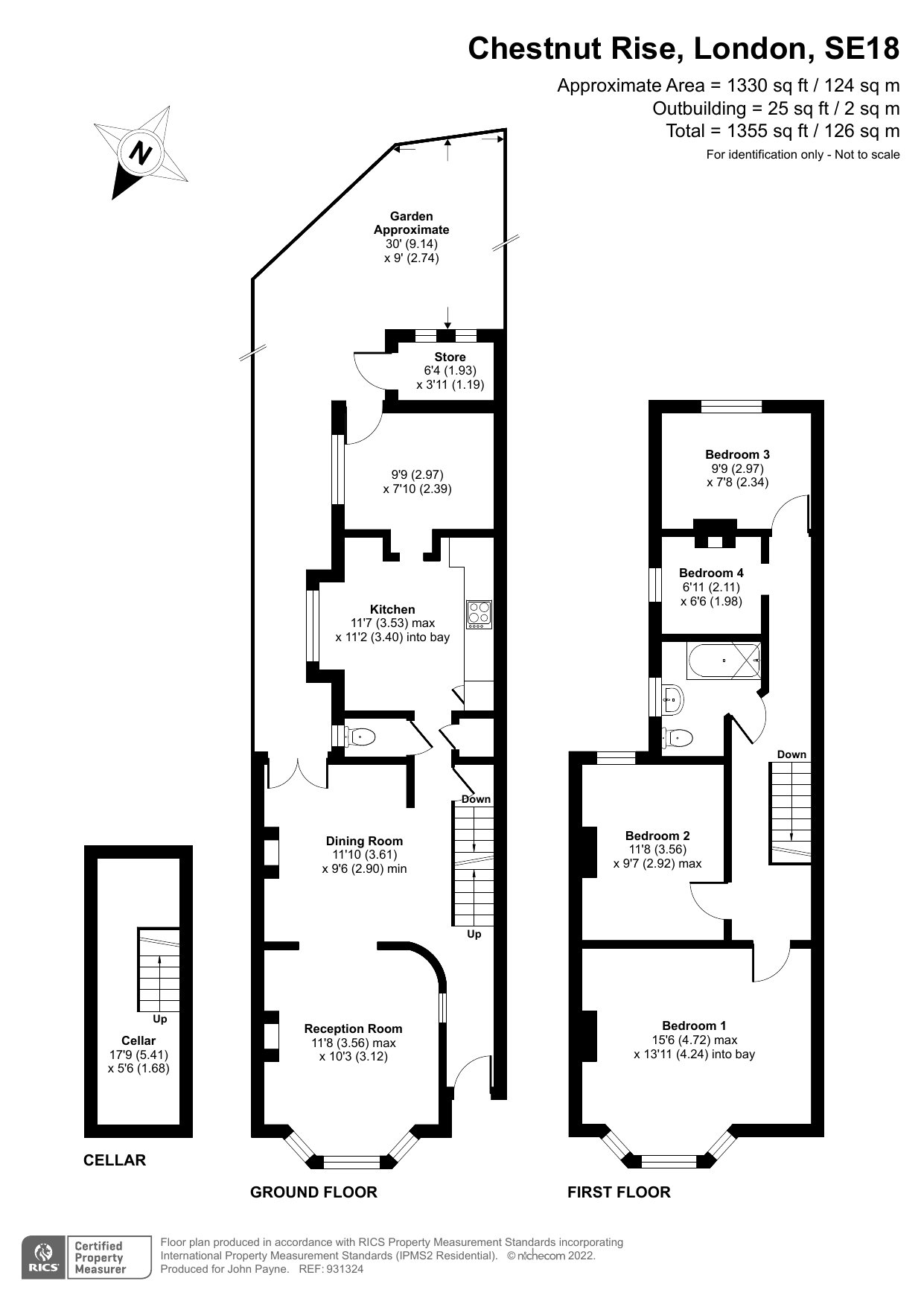
Guide price £575,000 freehold

Terraced House for sale - Chestnut Rise, SE18

*GUIDE PRICE £575,000-£600,000* John Payne would like to present to the SE18 market this truly beautiful four bedroom Victorian terrace house. Conveniently located for local shops, schools, bus routes, Plumstead Common and Plumstead mainline station.

Internally this bright and airy property which boasts many original features comprises 26ft through lounge with bay window with shutter blinds, original style coving, high skirting boards, picture rails and patio doors leading to the garden. A beautiful fitted modern kitchen with a range of wall and base units with complimentary work surfaces. Integrated oven, hob and filter hood and a square arch leading to a further dining area with door to rear garden.

Upstairs you will find four bedrooms. Bedroom one, 15ft x13ft with double glazed bay window to front and original style coving. Bedroom two, 11ft x 9ft, with wood laminate flooring and double glazed window to the rear. Bedroom three, 9ft x 7ft, and bedroom four (currently used as a walk in wardrobe) 6ft x 6ft. The family bathroom is fitted with a modern three piece suite comprising a low level WC, Vanity wash hand basin with storage under and a panelled bath with shower over and glass shower screen.

Additional benefits includes double glazed windows, gas central heating, downstairs w.c, cellar for extra storage space and a 31ft landscaped rear garden with patio area and lawn.

Located in popular surroundings just a short walk away from Plumstead Common, this delightful house is positioned within close proximity of the shopping amenities of Plumstead High Street and Woolwich town centre offering a wide range of supermarkets, shops, restaurants and bars as well as excellent primary and secondary schools. Transport facilities are fantastic with ample buses, Woolwich Arsenal Rail Station, Woolwich Arsenal DLR and Elizabeth Line.

To fully appreciate this stunning family home, an internal viewing is highly recommended.

Energy Efficiency Rating D

Talk to William Chidley from John Payne (Estate agents in Plumstead Common)

 

Use our calculator to work out potential mortgage repayments and stamp duty costs. Please note, these calculators are for general interest only and must not be relied on. Speak to our Mortgage Scout team for further information and advice. 

Powered by

Total Mortgage

£

Estimated Monthly Mortgage Payment

£

  • Powered by

Area Guide

Explore the areas we serve – from parks, entertainment and transport links, to shopping, eating and drinking.

Dive into property knowledge

Visit the AcornIntel knowledge-base, our library of articles to help you make sense of all things property, or send your questions to our panel of property experts.

Get your property valued

Looking to sell or let your property? Get a free property valuation from one of our experts.

Top