The Acorn Group is London’s largest multi-brand estate agency. We offer our clients the best brands, with the best people, in the best locations.

 

Close

OIEO £425,000 freehold

Terraced House for sale - Cheshunt Road, DA17

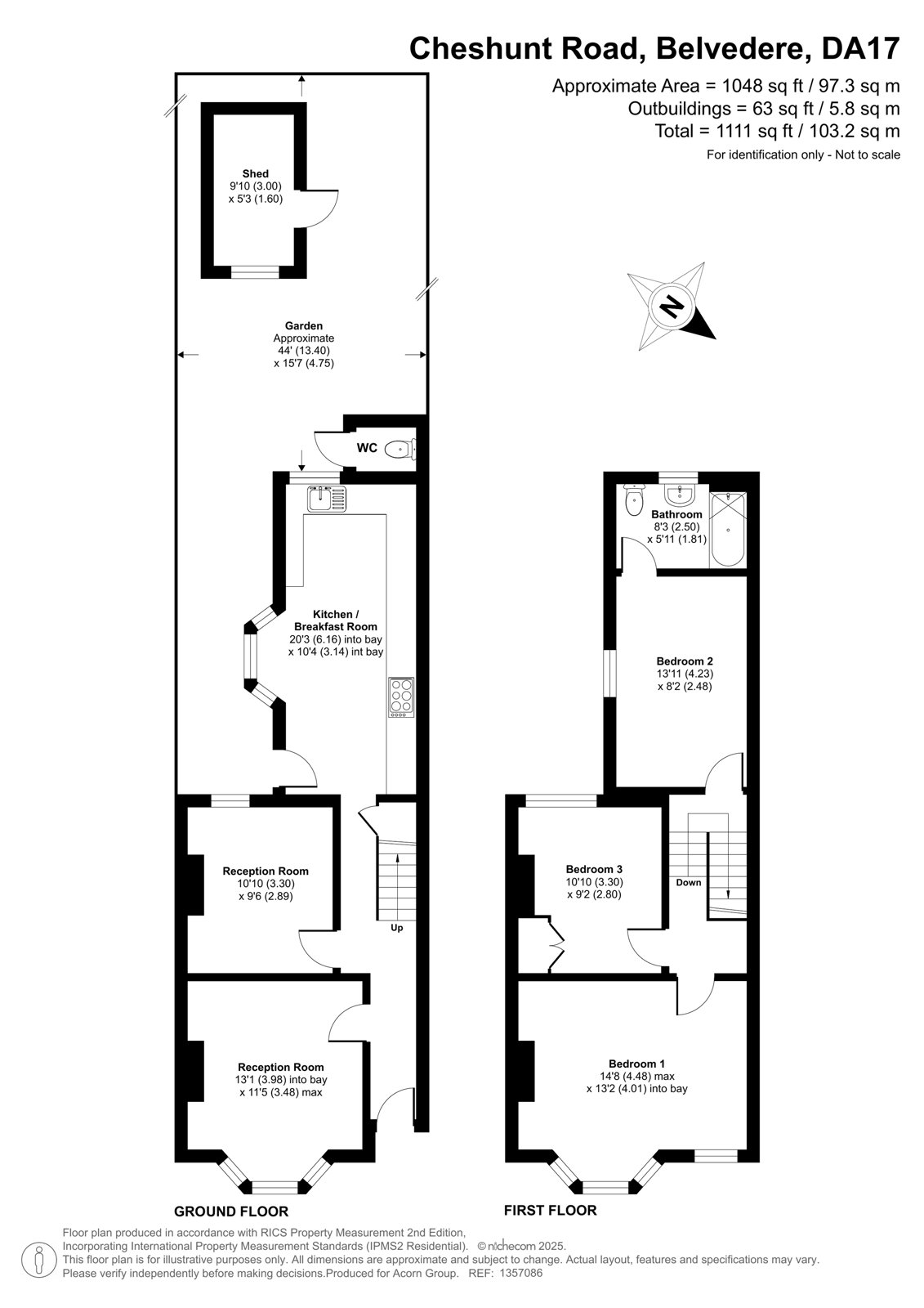
This well-presented family home is located in the heart of Nuxley Village, the accommodation offers an impressive 1048sqft of floorspace internally with access to plenty of local amenities along the high street.

As you enter, you’ll find a front cosy reception room which has a charming cast iron fireplace with a large bay-window oozing natural light in. Alongside is the dining room which has potential be knocked through and create a huge through lounge, or alternatively could form as part of a rear extension into the kitchen to create an open-plan living space.

The kitchen is larger than most (due to the bathroom being upstairs) and newly fitted being just over one year old, fitted with some integrated appliances and plenty of worktop space. Upstairs comprises three double bedrooms and the smart family bathroom suite. The master bedroom is a huge measuring to 14’8x13’2sqft also with a lovely bay window maintaining the character of this period home. The smart bathroom is currently accessed via the second bedroom but could easily be reconfigured towards the front of the bedroom to have it’s own private entrance.

You’ll be pleased to know the garden is South West facing and a sun trap throughout the day, beautifully landscaped with a patio area (ideal for some garden furniture) and a section of lawn with a garden shed. There’s an additional outside w/c accessed from the rear garden. Additional benefits includes gas central heating, updated electrics, double glazing, parking along the road and further potential to extend into the loft and rear (STPP).

Chestnut Road is well located with Nuxley Village being a stone’s throw away offering a range of shops, cafes, takeaways, local Co-Op/Sainsburys. For families, there is a selection of schools nearby, and plenty of parks to enjoy with Lesnes Abbey Woods 0.4m which hosts events and has interesting history of being an important site for early Tertiary fossil. Very handy for commuting too with a variety of bus routes, Belvedere Station 0.8m away which heads into Abbey Wood Railway which has the new Elizabeth Line with even more routes into the city, fast and frequently. Bexleyheath Shopping centre is also within a short commute which has even more choice of entertainment with a cinema, bowling alley and a variety of nightlight entertainment with restaurants, bars, clubs, and pubs to enjoy.

We’re expect this property to be a popular choice, please call our office to arrange a viewing or ask any questions!

Tenure – Freehold
Energy Efficiency Rating D
Local Authority Bexley Council Tax Band D

Talk to Arikson Franco from Acorn (Estate agents in Belvedere)

 

Use our calculator to work out potential mortgage repayments and stamp duty costs. Please note, these calculators are for general interest only and must not be relied on. Speak to our Mortgage Scout team for further information and advice. 

Powered by

Total Mortgage

£

Estimated Monthly Mortgage Payment

£

  • Powered by

Belvedere Area Guide

Explore the areas we serve – from parks, entertainment and transport links, to shopping, eating and drinking.

Dive into property knowledge

Visit the AcornIntel knowledge-base, our library of articles to help you make sense of all things property, or send your questions to our panel of property experts.

Get your property valued

Looking to sell or let your property? Get a free property valuation from one of our experts.

Top