The Acorn Group is London’s largest multi-brand estate agency. We offer our clients the best brands, with the best people, in the best locations.

 

Close

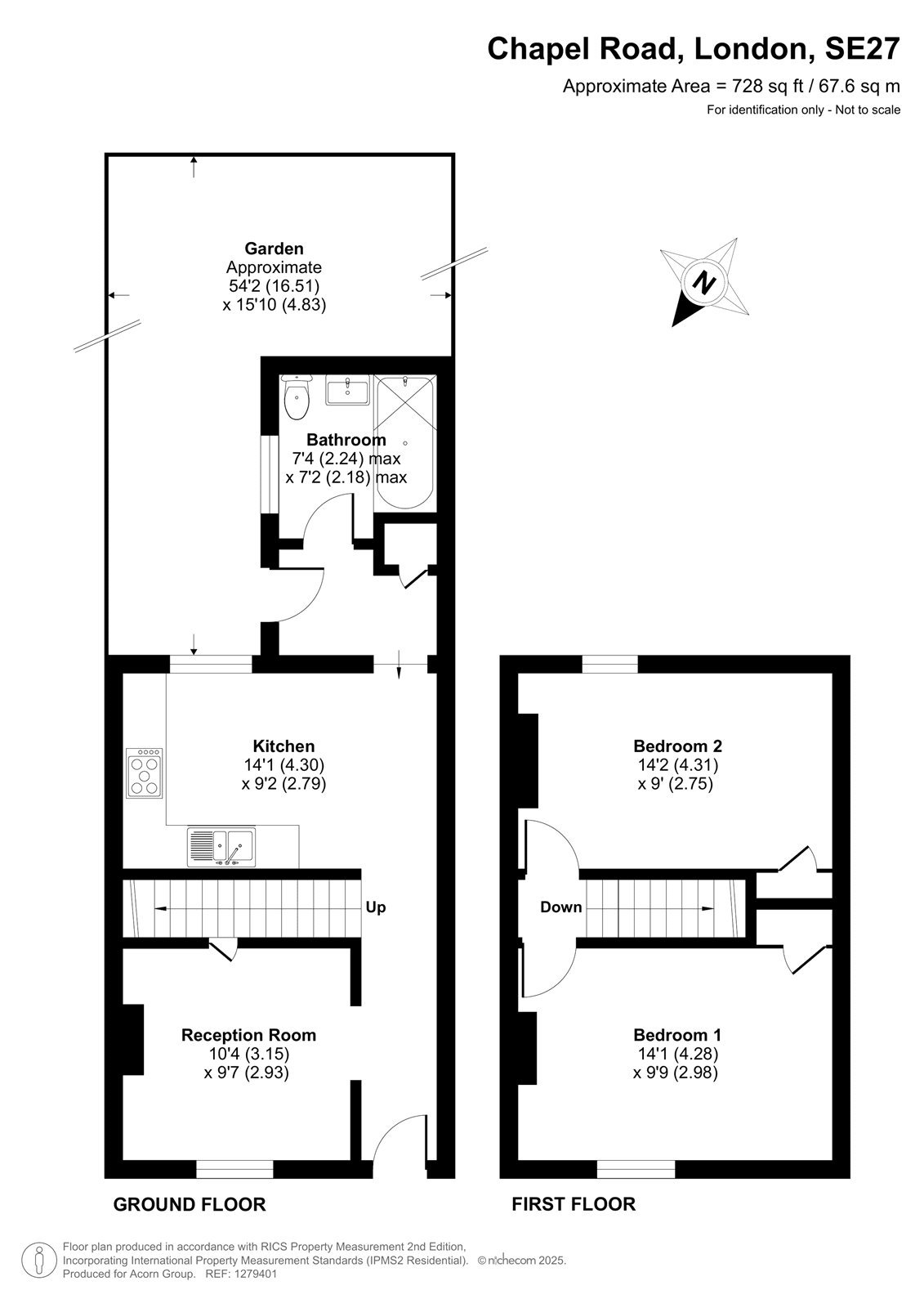
Guide price £525,000 freehold

Terraced House for sale - Chapel Road, SE27

Guide Price £525,000 - £550,000

Tucked away just off Knights Hill and only a short walk from West Norwood mainline station, this delightful two-bedroom Victorian terraced cottage offers the perfect blend of period charm and modern comfort.

This rare freehold property on Chapel Road features a secluded south-facing garden, spacious interiors, and a wealth of character throughout. Original elements such as stripped wood floorboards and a feature fireplace are beautifully complemented by contemporary fixtures, including a stylish kitchen/breakfast room.

The cottage offers two generously sized double bedrooms, ideal for relaxing or working from home. The standout feature is the impressive 45ft (approx) rear garden — a sun-drenched oasis with a patio area perfect for entertaining, surrounded by mature trees and shrubs. A quaint front garden with a classic picket fence adds to the home’s welcoming appeal.

Additional highlights include ample storage throughout, including a useful insulated loft and under-stairs space. The home is well-suited for those seeking a unique period property with practicality in mind.

Located just a seven-minute walk from West Norwood Station and twenty minutes from Gipsy Hill Station, the property offers excellent transport links to central, south, and southeast London. The area is also rich in local amenities, green spaces, independent shops, and historic landmarks.

This is a rare opportunity to own a characterful home in a vibrant and convenient South London neighbourhood.

Freehold House
Council Tax Band D
EPC D

Talk to George Liney from Acorn (Estate agents in Crystal Palace)

 

Use our calculator to work out potential mortgage repayments and stamp duty costs. Please note, these calculators are for general interest only and must not be relied on. Speak to our Mortgage Scout team for further information and advice. 

Powered by

Total Mortgage

£

Estimated Monthly Mortgage Payment

£

  • Powered by

Crystal Palace Area Guide

Explore the areas we serve – from parks, entertainment and transport links, to shopping, eating and drinking.

Dive into property knowledge

Visit the AcornIntel knowledge-base, our library of articles to help you make sense of all things property, or send your questions to our panel of property experts.

Get your property valued

Looking to sell or let your property? Get a free property valuation from one of our experts.

Top