The Acorn Group is London’s largest multi-brand estate agency. We offer our clients the best brands, with the best people, in the best locations.

 

Close

Asking price £650,000 freehold

Terraced House for sale - Burrage Road, SE18

Offered to the market chain free is this extended five bedroom period home currently converted to a licensed five bedroom HMO generating in the region of £62,000 per annum. Located moments from Woolwich town centre for local shops, bus routes, mainline station, DLR and Elizabeth Line.

The property, however, would be easily adapted to return it to a good sized family home by making a few tweaks.

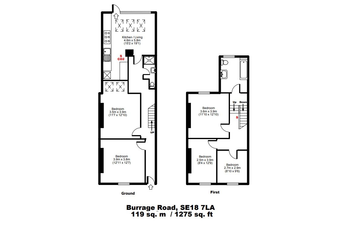
On entering the property the ground floor accommodation comprises two reception/bedrooms. The front room measuring 12ft x 12ft with carpet as fitted and double glazed sash windows to the front. The second room is 12ft x 11ft with carpet as fitted and Velux windows. To the rear of the property you will find the19ft x 15ft, extended kitchen with a range of wall and base units with complimentary work surfaces, four Velux windows allowing light to stream into the room and French doors overlooking the rear garden. On the ground floor you will also find a three piece shower room comprising of a walk in shower, WC and wash hand basin.

To the first floor you will find three bedrooms and a family bathroom. Bedroom one, 12ft x 11ft. Bedroom two, 12ft x 8ft and bedroom three 9ft x 8ft. All bedrooms with carpet as fitted and double glazed sash windows. The family bathroom is fitted with a white three piece suite comprising a wash hand basin, low level WC, tiled sided bath with shower over and glass shower screen.

Externally there is a good sized rear garden mainly laid to lawn with large decked patio.

This property would make an ideal investment or could become a beautiful family home. Internal viewings are highly recommended.

The Royal Borough of Greenwich - Council Tax Band - C
Energy Efficiency Rating - C

Talk to William Chidley from John Payne (Estate agents in Plumstead Common)

 

Use our calculator to work out potential mortgage repayments and stamp duty costs. Please note, these calculators are for general interest only and must not be relied on. Speak to our Mortgage Scout team for further information and advice. 

Powered by

Total Mortgage

£

Estimated Monthly Mortgage Payment

£

  • Powered by

Area Guide

Explore the areas we serve – from parks, entertainment and transport links, to shopping, eating and drinking.

Dive into property knowledge

Visit the AcornIntel knowledge-base, our library of articles to help you make sense of all things property, or send your questions to our panel of property experts.

Get your property valued

Looking to sell or let your property? Get a free property valuation from one of our experts.

Top