The Acorn Group is London’s largest multi-brand estate agency. We offer our clients the best brands, with the best people, in the best locations.

 

Close

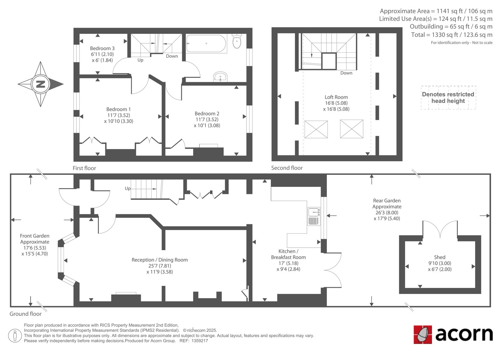
Asking price £675,000 freehold

Terraced House for sale - Braidwood Road, SE6

Acorn are thrilled to welcome to the market this light and charming Period family home, located on a highly sought after road in SE6.

Offering ample living and entertaining space, the house is offered to the market in turn key condition with contemporary decor.

Arranged over three floors, the ground floor accommodation comprises bright entrance hall, spacious through lounge with front bay window and feature fire place, and to the rear an extended kitchen diner, well laid out for modern living, with ample units and double doors leading onto the rear garden. The first floor comprises three bedrooms and family bathroom, with the second floor housing the fourth bedroom.

Externally the house offers both front and rear gardens, with the rear garden offering a good size decked area and lawn space.

Enviably located for access to ample transport links and amenities, this really is a fantastic family home.

Talk to Jake Blackman from Acorn (Estate agents in Catford)

 

Use our calculator to work out potential mortgage repayments and stamp duty costs. Please note, these calculators are for general interest only and must not be relied on. Speak to our Mortgage Scout team for further information and advice. 

Powered by

Total Mortgage

£

Estimated Monthly Mortgage Payment

£

  • Powered by

Catford Area Guide

Explore the areas we serve – from parks, entertainment and transport links, to shopping, eating and drinking.

Dive into property knowledge

Visit the AcornIntel knowledge-base, our library of articles to help you make sense of all things property, or send your questions to our panel of property experts.

Get your property valued

Looking to sell or let your property? Get a free property valuation from one of our experts.

Top