The Acorn Group is London’s largest multi-brand estate agency. We offer our clients the best brands, with the best people, in the best locations.

 

Close

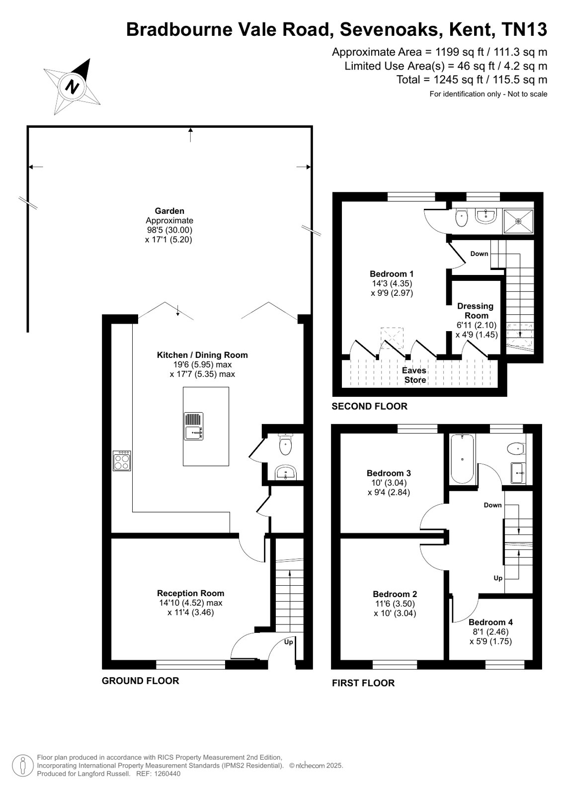
Asking price £595,000 freehold

Terraced House for sale - Bradbourne Vale Road, Kent, TN13

This immaculate four-bedroom end of terrace house is ideally located just a short walk from Bat & Ball Station, offering a convenient commute to central London.

Arranged over three spacious floors, the property features a bright and airy reception room, and a stylish open-plan kitchen/diner complete with a central island and bi-folding doors that open onto a private rear garden with lawn & terrace.

The first and second floors house a family bathroom and four generously sized double bedrooms. The master suite is a standout, offering a walk-in wardrobe and a luxurious en-suite shower room.

Notable features include a convenient downstairs WC, contemporary glass balustrades, designer feature radiators, and the added benefit of no onward chain.

Located just 0.3 miles from Bat & Ball Station, this home offers easy access to regular services to London Victoria, Blackfriars, and Charing Cross. The property is also well-served by bus routes, with the historic town of Sevenoaks just a 10-minute journey away, offering a wider range of shops, cafes, and restaurants.

Energy Efficiency Rating D | Council Tax Sevenoaks Council Band D

Talk to Robert Keeble from Langford Russell (Estate agents in Sevenoaks)

 

Use our calculator to work out potential mortgage repayments and stamp duty costs. Please note, these calculators are for general interest only and must not be relied on. Speak to our Mortgage Scout team for further information and advice. 

Powered by

Total Mortgage

£

Estimated Monthly Mortgage Payment

£

  • Powered by

Sevenoaks Area Guide

Explore the areas we serve – from parks, entertainment and transport links, to shopping, eating and drinking.

Dive into property knowledge

Visit the AcornIntel knowledge-base, our library of articles to help you make sense of all things property, or send your questions to our panel of property experts.

Get your property valued

Looking to sell or let your property? Get a free property valuation from one of our experts.

Top