The Acorn Group is London’s largest multi-brand estate agency. We offer our clients the best brands, with the best people, in the best locations.

 

Close

Guide price £400,000 freehold

Terraced House for sale - Barth Road, SE18

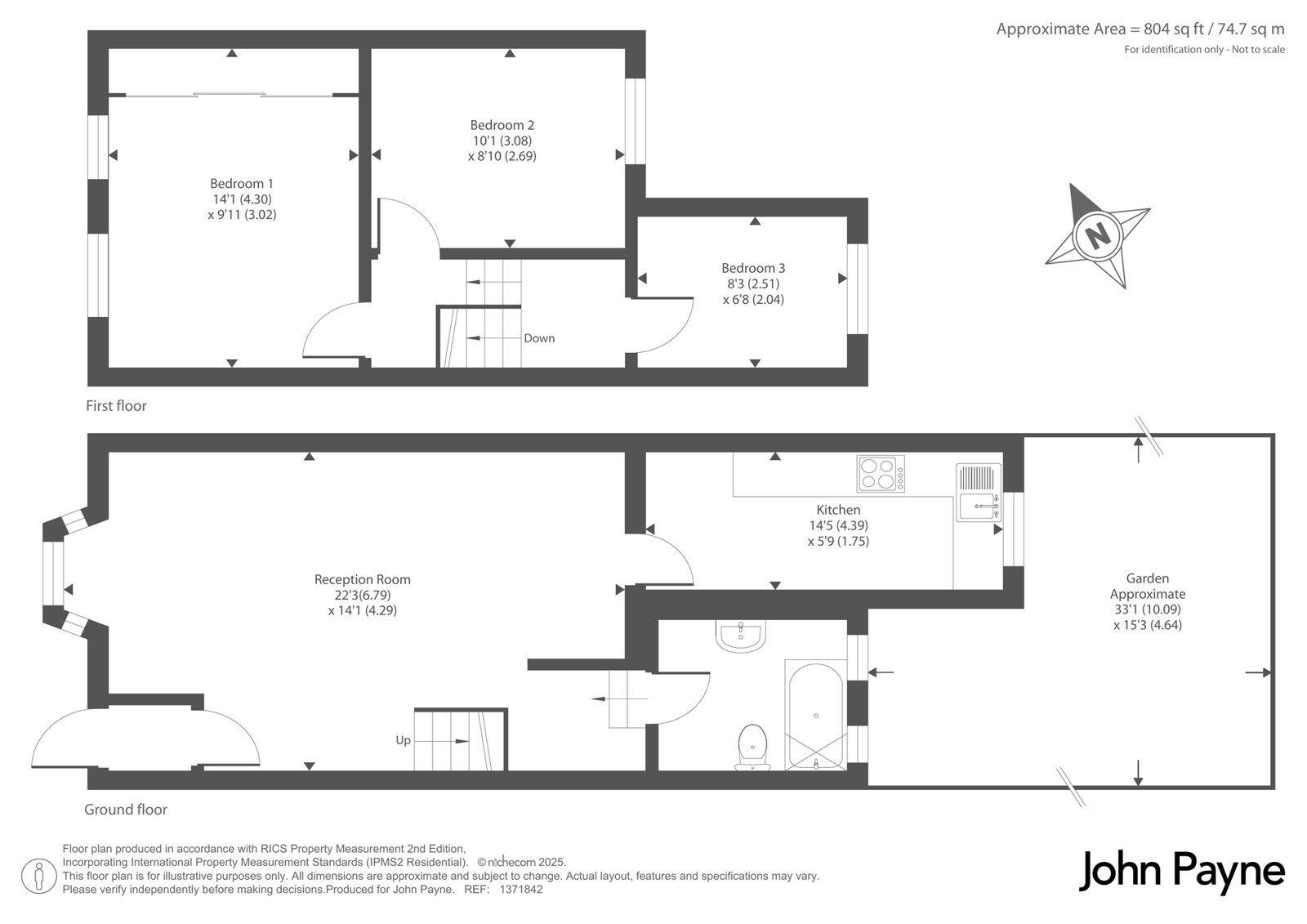
*GUIDE PRICE £400,000-£425,000* This three-bedroom Victorian terraced house offers the perfect opportunity for buyers looking to take on a project and add value. Though modest in size, the home is full of potential and retains period charm throughout.

The ground floor features a traditional front reception room, a kitchen to the rear, and a ground floor bathroom. Upstairs, you’ll find three compact bedrooms — ideal for a small family, first-time buyer, or those looking to reconfigure the layout to suit modern living.

The property encourages some refurbishment throughout, making it a fantastic blank canvas for those keen to create a home tailored to their taste. Subject to planning, there may also be potential to rework the layout or extend.

Located on a quiet residential street, the home is within easy reach of local amenities, schools, transport links, and green spaces.

The Royal Borough of Greenwich - Council Tax Band - C
Energy Efficiency Rating - D

Talk to William Chidley from John Payne (Estate agents in Plumstead Common)

 

Use our calculator to work out potential mortgage repayments and stamp duty costs. Please note, these calculators are for general interest only and must not be relied on. Speak to our Mortgage Scout team for further information and advice. 

Powered by

Total Mortgage

£

Estimated Monthly Mortgage Payment

£

  • Powered by

Area Guide

Explore the areas we serve – from parks, entertainment and transport links, to shopping, eating and drinking.

Dive into property knowledge

Visit the AcornIntel knowledge-base, our library of articles to help you make sense of all things property, or send your questions to our panel of property experts.

Get your property valued

Looking to sell or let your property? Get a free property valuation from one of our experts.

Top