The Acorn Group is London’s largest multi-brand estate agency. We offer our clients the best brands, with the best people, in the best locations.

 

Close

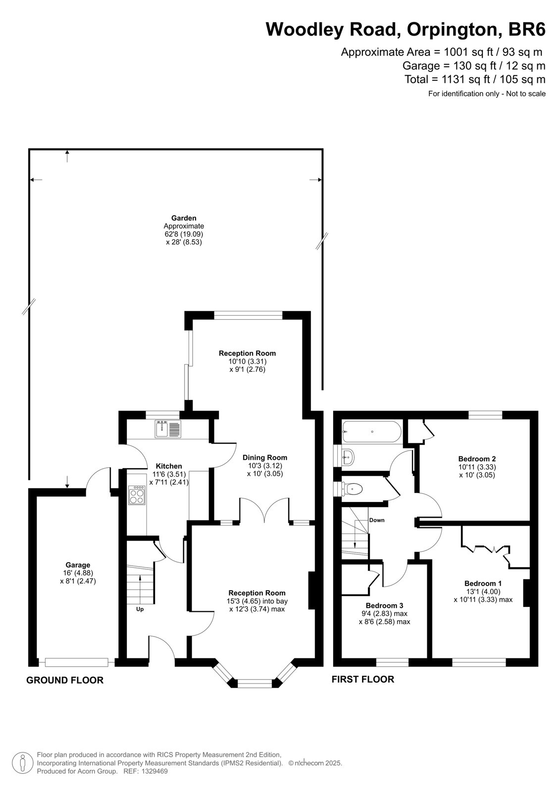
Asking price £525,000 freehold

Semi-detached House for sale - Woodley Road, BR6

Langford Russell are delighted to offer this three-bedroom semi-detached home, bursting with potential and ideally situated in a highly sought-after area of Orpington.

On the ground floor, you'll find a welcoming reception room featuring a characterful fireplace, a formal dining room perfect for entertaining and an additional reception currently used as a home office ideal for hybrid or remote working. The kitchen is well-equipped with fitted wall and base units and integrated appliances including a gas cooker and oven.

Upstairs, there are three generously sized double bedrooms, each benefiting from built-in storage. A modern three-piece family bathroom completes the first-floor accommodation.

The garden is a stunning feature of this home, measuring 60ft long with a patio area allowing a good view over the mature shrubs bordering the garden, a shed is also located to the rear for convenient storage. Additional benefits include off-street parking to the front and a garage, providing further convenience.

Located near Orpington Town Centre, the location provides good access to transport links to central London with both Orpington and Chelsfield stations being just over a mile away. Orpington town centre provides an array of local amenities with a comprehensive range of shops and facilities including the Walnuts leisure centre and Odeon cinema. Local schools with good Ofsted ratings include Blenheim Primary, Harris Primary Academy, Bromley Beacon Academy, St. Olaves Secondary School and Newstead Wood Secondary School.

Tenure - Freehold
Council Tax London Borough Of Bromley Band - E | Energy Efficiency Rating - D

Talk to Oliver Pettman from Langford Russell (Estate agents in Orpington)

 

Use our calculator to work out potential mortgage repayments and stamp duty costs. Please note, these calculators are for general interest only and must not be relied on. Speak to our Mortgage Scout team for further information and advice. 

Powered by

Total Mortgage

£

Estimated Monthly Mortgage Payment

£

  • Powered by

Orpington Area Guide

Explore the areas we serve – from parks, entertainment and transport links, to shopping, eating and drinking.

Dive into property knowledge

Visit the AcornIntel knowledge-base, our library of articles to help you make sense of all things property, or send your questions to our panel of property experts.

Get your property valued

Looking to sell or let your property? Get a free property valuation from one of our experts.

Top